MANIAK SAM NA DARVODELSTVOTO
KACHVAI TE SNIMCHICI ,PLANOVE,VASHI IZDELIA ..............DA OBMENIAME OPIT.
Прикачен файл
bd_1_b.jpg (24.65 KиБ) Видяна 16141 пъти
Прикачен файл
chicken.jpg (21.81 KиБ) Видяна 16141 пъти
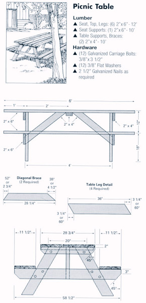
Прикачен файл
11_22.jpg (199.44 KиБ) Видяна 16141 пъти
Прикачен файл
woodstore_1885_6064746.jpg (50.68 KиБ) Видяна 16143 пъти

