Аз сега разгледах бъдещата архитектура, че сутринта нямах време. А защо се налагат тия чупки, кривки? Съгласна съм с мнението на @resistbody, да бъде като допълващо застрояване и да излезе от площта на къщата.
Благодаря за коментарите.
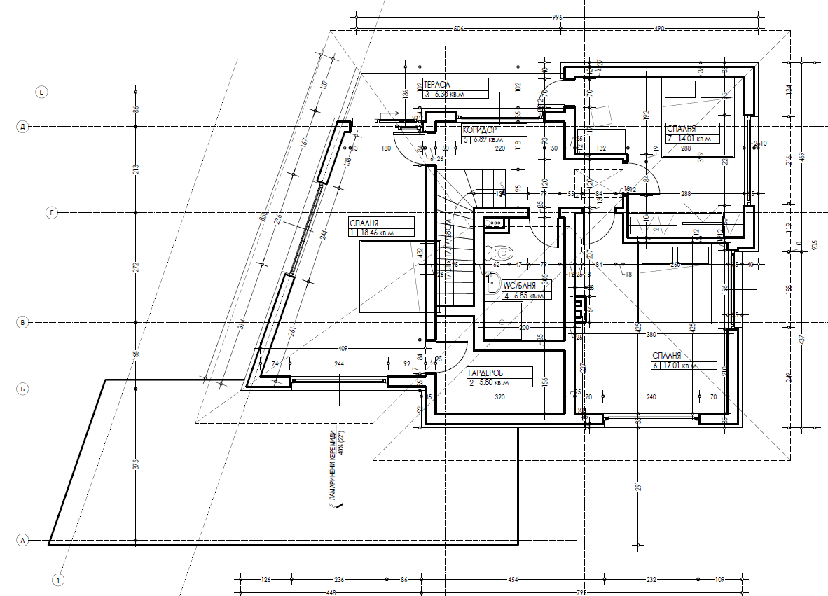
@resistbody При такова разпределение, като че ли няма да се обособи дворно прстранство (това е причината винаги да се опитвам да позиционираме сградата максимално в ъглите - парцела е малък за мое съжаление).
@iliya_i в v3.1 съм съгласен че гаража няма да е удобен за влизане, но това е компромис който изглежда трябва да направя в този вариант ако не искам да удвоя квадратурата на коридора - целя максимална практичност в разпределението на помещенията.
@Kalin1983 при всички варианти (3.1 и 3.2), гаража задължително е допълнително застрояване и попада/използва 3-те м. сервитут максимално.
@Пеш за сега архитекта не ни е давал повод за притенение. Млад е, работи с желанние и мисля че с наша помощ ще се справи чудесно, но вонаги едно на ум.
@Dessie стремежа ни е да използваме максимално петното за застрояване, както и сервитутите (за гаража). Както писах вече парцелите са на минимума 444 кв.м. и като сложиш една къща в средата - край. По тази причина се стремим да изтеглим сградата максимално в ъглите за да освободим въздух както на себе се така и на останалите парцели. Това е и причината да клоним към 3.2, тъй като този вариант дава най-много простраство и парцела/сградата над мен.
v3.2 e по-незавършения вариант и мисля че вашия поглед би ми помогнал за да го финализирам. Това което ме дразни е:
1. входовете на сградата са от различни страни (входна врата и гараж).
2. стълбите имат нужда от преработване.




