Предимства, недостатъци, цени, материали, планове, пасивни къщи и т.н.
Dessie - специалист
Аз сега разгледах бъдещата архитектура, че сутринта нямах време. А защо се налагат тия чупки, кривки? Съгласна съм с мнението на @resistbody, да бъде като допълващо застрояване и да излезе от площта на къщата.
bonevn - помощник
Благодаря за коментарите.

@resistbody При такова разпределение, като че ли няма да се обособи дворно прстранство (това е причината винаги да се опитвам да позиционираме сградата максимално в ъглите - парцела е малък за мое съжаление).

@iliya_i в v3.1 съм съгласен че гаража няма да е удобен за влизане, но това е компромис който изглежда трябва да направя в този вариант ако не искам да удвоя квадратурата на коридора - целя максимална практичност в разпределението на помещенията.

@Kalin1983 при всички варианти (3.1 и 3.2), гаража задължително е допълнително застрояване и попада/използва 3-те м. сервитут максимално.

@Пеш за сега архитекта не ни е давал повод за притенение. Млад е, работи с желанние и мисля че с наша помощ ще се справи чудесно, но вонаги едно на ум.

@Dessie стремежа ни е да използваме максимално петното за застрояване, както и сервитутите (за гаража). Както писах вече парцелите са на минимума 444 кв.м. и като сложиш една къща в средата - край. По тази причина се стремим да изтеглим сградата максимално в ъглите за да освободим въздух както на себе се така и на останалите парцели. Това е и причината да клоним към 3.2, тъй като този вариант дава най-много простраство и парцела/сградата над мен.

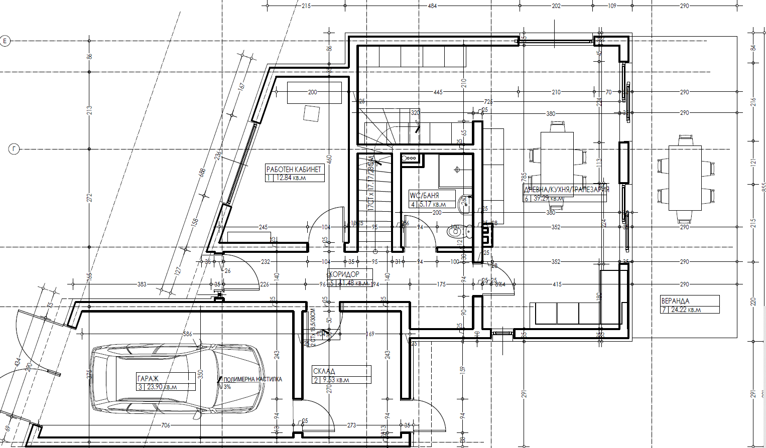
v3.2 e по-незавършения вариант и мисля че вашия поглед би ми помогнал за да го финализирам. Това което ме дразни е:
1. входовете на сградата са от различни страни (входна врата и гараж).
2. стълбите имат нужда от преработване.

Прикачен файл

v3.2.jpg
resistbody - майстор
Аз съм ви предложил правоъгълници, ако се решите на ъглите ще спечелите квадратура, която мисля няма да е използваема практично.. да имаш гараж в който за да вкараш колата са необходими 5 маневри не е ОК.. и държите ли да си прибирате колата в гараж ? Аз никога не съм го правил и проектирах къщата си без такъв..
Dessie - специалист
@resistbody - на същото мнение съм за гаражите. Точно онзи ден обсъждах с архитекта, че не държа гаража да е в конструкцията на къщата, а може да е просто навес. Ако имота е голям - ок, даже двоен гараж е ок да се проектира, ама на 400-500 м2 си е загуба

@bonevn - тая врата на гаража не може да се случи конструктивно така май, сам виж че дяснатс и релса за прибиране идиотски излиза от стената. За да избегнеш входовете от различни страни - аз лично бих завъртяла стълбището успоредно на гаража ( в стаята 13.62 м2) и бих увеличила североизточната стая 6 м2 ( предполагам текущо баня) с оставащата площ, а бъдещата баня бих сложила между дневната и гаража.

Парцела при мен е много малко по-голям - 500 м2, така, че да - прав си, че е криво за проектиране хем да е хубава къщата, хем да не сте сбутани като в цигански катун :-D
ZEDYCUS - майстор
Dessie
@bonevn - тая врата на гаража не може да се случи конструктивно така май, сам виж че дяснатс и релса за прибиране идиотски излиза от стената.
Ako вратата е ролетна ще стане и така на криво, няма релси а кутия, само трябва да се пусне максимално дълга за да влиза лесно колата. Със секционна врата с и релси няма да се получи, за това си права.
А сутрин да излизаш без да чистиш сняг и лед зимата, си е голямо предимство. :)
Dessie - специалист
чет дек 16, 2021 2:56 pmZEDYCUS написа:
Dessie
@bonevn - тая врата на гаража не може да се случи конструктивно така май, сам виж че дяснатс и релса за прибиране идиотски излиза от стената.
Ako вратата е ролетна ще стане и така на криво, няма релси а кутия, само трябва да се пусне максимално дълга за да влиза лесно колата. Със секционна врата с и релси няма да се получи, за това си права.
А сутрин да излизаш без да чистиш сняг и лед зимата, си е голямо предимство. :)
предимство е, спор няма. Така съм в момента, нищо, че гаража ми е на 200 метра от къщата. Обаче по-важно ми се струва жилищните площи да са адекватни и ергономични. В малък имот по-добре да имам къща и навес за кола, от колкото голям гараж и неудобни помещения за живеене
Пеш - специалист
Още нещо, което се сетих от моя проект.
Реши с какви материали ще строиш главно Тухлите и Гредите за покрива (ако ще е дърво). - Направете височините на зида кратен на тухлите, на ширина и дължима ( при мен се получи, така че накрав добавяхме 12см тухли 4ки.. вместо да беше с още 12см по-високо и да ги направят със енерго блоковете. При гредите също - гледай да нямаш над 4м греди, цените ще са доста по-високи и трудно ще ги намериш.
Предвидете повдигането на пода спрямо стълбите - аз вдигнах първото стъпало с 8см мисля, въпреки, че трябваше с повече.. но поне ще ги изравнявам по-малко см.
bonevn - помощник
Продължаваме напред ....

2. Път до парцелите.
Всъщност тук "дявола не се оказа толкова черен колкото си мислех" Няколко машиносмени и 40 самосвала по-късно имаме път. Сметката ни е около 3 хил. лв. много грубо (тепърва ще чакълираме). Спрели сме се на 63 мм чакъл за основа и след това по-дребен отгоре. Накакви съвети тук?

3. Относно проектирането - напредваме и тук - идейния проект е готов. Спряхме се на вариант, в който гаражът е 'под' къщата (юг-запад). Плюсът, е че е максимално отдалечена от останалите къщи, т.е. максимално въздух между тях.
  • планираме покрив от ламаринени керемиди (съвет тук също би бил полезен). Негативите може би за нас са цена и шум при дъжд
Прикачен файл:
1.png
Прикачен файл:
2.png
Прикачен файл:
3.png

Тук следващите ни стъпки са в посока разрешение за строеж и избор на строителна фирма. Ако имате препоръки в Пернишко, ще ги включим в процеса.

4.ЕЛ и ВиК
Пробихме и при ВиК. Решението е ОСВ което ВИК ще направи след съгласуването на проекта за улично водоснабдяване (наша грижа). Реално главния водопровод само се поддържа от ВиК, но е с неясна собственост. Изпълнението е подсигурено (планирано за следващата седмица). Канализаця няма така че решението ще е в посока пречиствателна станция.

Поздрави и успех на всички начинаещи и утвърдени строители.
nelina_london - специалист
Ако имате достатъчно изолация , шум от керемидите няма.Ние сме с 35 см вата и нямаме плоча. Спалните на втори етаж са по наклона на ската и никога не съм чула шум от дъжд.
Малко ми се виждат тези 14см EPS на вашият таван.
bonevn - помощник
Бавно, но славно напредваме, за разлика от темпото на растеж на СМР цените - плашещо е :axe:

2. Пътя до парцелите още не е приключен - изчакваме избор на строителна фирма за да се съгласуваме и с нея самото изпълнение.
3.Проекта е готов, и е в общината за 3ти път (имаме тяхното уверение че тази седмица ще получим и РС).
4. Ел и ВиК
4.1 Ел - чакаме РС за да склювим предварителен договор
4.2 ВиК - тук имаме предписание за изграждане на противопожарни кранове извън парцелите - това беше и една от причините да ни върнат от общината.
:x Между другото , това е жива форма на рекет от страна на общината - ако не изградим инфраструктура, която е така или иначе тяхно задължение, няма РС и/или в последствие Акт16.
5. Стоителни фирми и надзор
5.1 Ако имате препоръки за надзор (гр. София/ гр. Перник) ще съм ви признателен?
5.2 Относно избора на строителна фирма сме на финалната права - лимитирахме първоначалния списък до 2.
Прилагам КС за грубия строеж (на една от 2те фирми - 225 000 лв.), за съвет - мисля че има къде да се оптимизира (в жълто):
- доставката и монтаж на XPS 8 cm - 40 лв/м2
- доставка и подмазване на хидро - 30 лв/м2
- дренажна мембрана и XPS - 55лв./м2
- ВИК основи - 1800 лв.
- дървена конструкция покрив 220 м2 - 31 000лв
Изображение
Изображение
Изображение
Изображение
Решението ни на този етап е да разделим строителството на два етапа - груб строеж и довършителни работи.
6. Решение за отпадни води - тук ми предстой да взема решение, но добрата новина е че във форума има достатъчно информация.

Лека вечер.

Прикачен файл

4.png
4.png (72.77 KиБ) Видяна 1728 пъти

Прикачен файл

3.png
3.png (77.86 KиБ) Видяна 1728 пъти

Прикачен файл

2.png
2.png (88.73 KиБ) Видяна 1728 пъти

Прикачен файл

1.png
1.png (50.28 KиБ) Видяна 1728 пъти

Тема "Да построиш къща и да засадиш дърво..." | Включи се в дискусията:


Сподели форума:

Бъди информиран. Следвай "Направи сам" във Facebook:

Намери изпълнител и вдъхновения за дома. Следвай MaistorPlus във Facebook: