Здравейте,
Ще съм много благодарна за мнения и съвети на съфоруци.
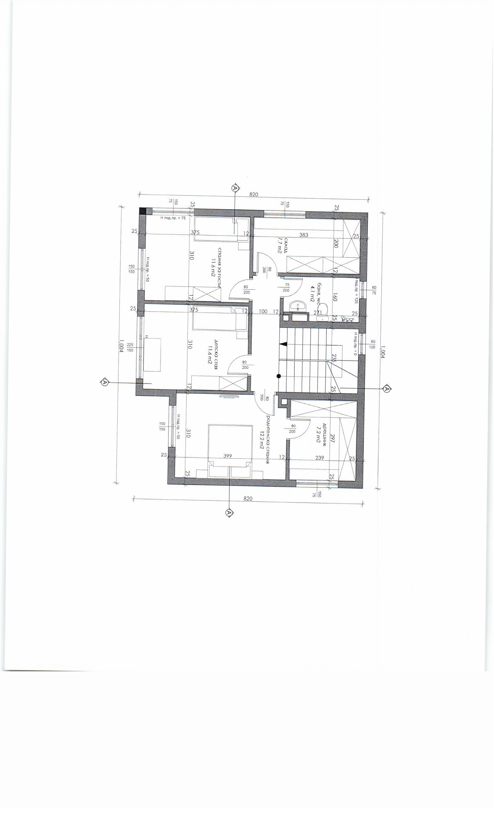
Заели сме се да правим реконструкция на стара къща, имаме проект от архитект и ми се струва, че всичко сме натъманили, обаче нали съм "Тома не верни", та може ли да помоля да хвърлите едно око и ако сме пропуснали нещо да може да го добавим докато е време.
Много благодаря предварително, ето и проектите
Ще съм много благодарна за мнения и съвети на съфоруци.
Заели сме се да правим реконструкция на стара къща, имаме проект от архитект и ми се струва, че всичко сме натъманили, обаче нали съм "Тома не верни", та може ли да помоля да хвърлите едно око и ако сме пропуснали нещо да може да го добавим докато е време.
Много благодаря предварително, ето и проектите
