Здравейте! След дълго четене на форума, реших и аз да се включа с една тема за нова къща, която в момента е на ниво проект.
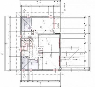
Желанието ми е които с каквото може да помогне, за да направя от този проект на които ще се опитам да кача малко чертежи, добра ниско енергийна къща. Къщата за сега съм решил че ще се строи по стандартния начин с бетон и тухли. Отоплението ще бъде с термопомпа Вода/Вода или Вода/Земя, къщата е на 2 етажа по 95 кв. м. на етаж
Ще оставя в началото всеки да си каже мнението според чертежите, а аз ще допълвам...
Благодаря предварително за мненията!
Желанието ми е които с каквото може да помогне, за да направя от този проект на които ще се опитам да кача малко чертежи, добра ниско енергийна къща. Къщата за сега съм решил че ще се строи по стандартния начин с бетон и тухли. Отоплението ще бъде с термопомпа Вода/Вода или Вода/Земя, къщата е на 2 етажа по 95 кв. м. на етаж
Ще оставя в началото всеки да си каже мнението според чертежите, а аз ще допълвам...
Благодаря предварително за мненията!
