• 1
  • 2
  • 3
  • 4
  • 5
  • 7
Всичко за този вид строителство.
Dinev77 - напреднал
Здравейте! След дълго четене на форума, реших и аз да се включа с една тема за нова къща, която в момента е на ниво проект.
Желанието ми е които с каквото може да помогне, за да направя от този проект на които ще се опитам да кача малко чертежи, добра ниско енергийна къща. Къщата за сега съм решил че ще се строи по стандартния начин с бетон и тухли. Отоплението ще бъде с термопомпа Вода/Вода или Вода/Земя, къщата е на 2 етажа по 95 кв. м. на етаж
Ще оставя в началото всеки да си каже мнението според чертежите, а аз ще допълвам...
Благодаря предварително за мненията!

Прикачен файл

Изглед Юг.jpg Изглед Юг

Прикачен файл

Изглед Изток.jpg изглед Изток

Прикачен файл

Изглед Запад.jpg изглед Запад

Прикачен файл

Изглед Север.jpg изглед Север
Dinev77 - напреднал
Още чертежи

Прикачен файл

Разрез.jpg Разрез А2

Прикачен файл

Разпределение 2 етаж.jpg 2-ри етаж

Прикачен файл

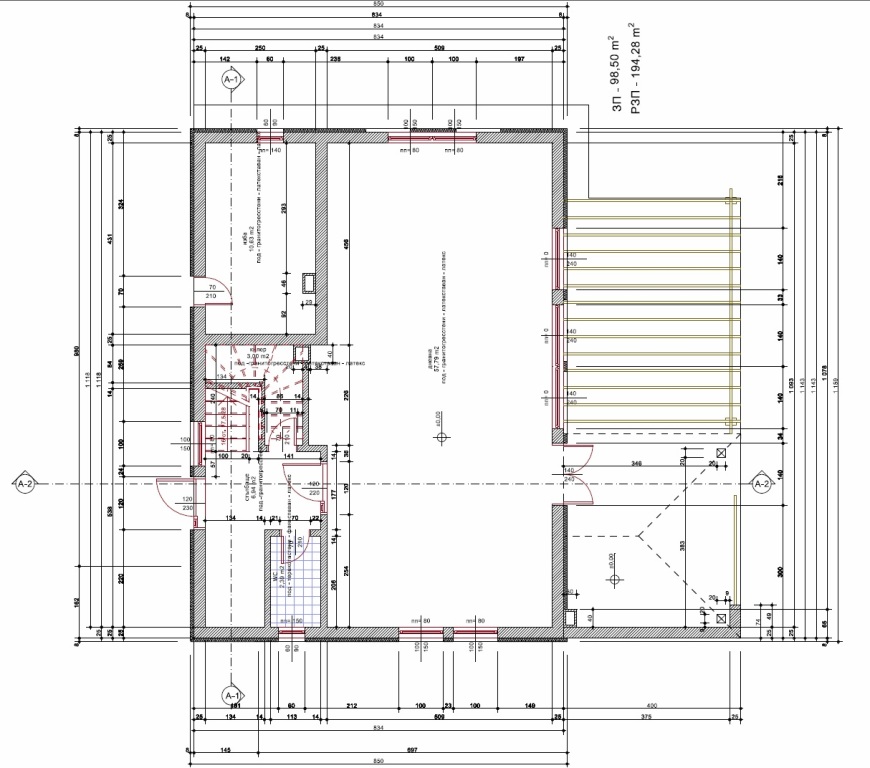
Разпределение 1 етаж.jpg 1-ви етаж

Прикачен файл

Покрив.jpg
Покрив
Покрив.jpg (68.68 KиБ) Видяна 9610 пъти
Tsilkov - майстор
Аз поне от чертежите нищо "нискоенергийно" не виждам в проекта ти - съвсем стандартна сграда каквито се строяха и се строят масово. Кажи малко повече как смяташ да постигнеш ниската консумация на енергия и какви стойности гониш?
Dinev77 - напреднал
Tsilkov написа:
Аз поне от чертежите нищо "нискоенергийно" не виждам в проекта ти - съвсем стандартна сграда каквито се строяха и се строят масово. Кажи малко повече как смяташ да постигнеш ниската консумация на енергия и какви стойности гониш?
Здравей, благодаря за точното попадение. Архитекта които ми направи проекта, не работи в областта на нискоенергийните сгради, но след като му платих да ми прави проекта започнах да се замислям за отопление и такива неща. Надявам се тук да ми помогнете със съвети, как да постигна максимален ефект като изолация на основи, стени, покрив и т.н. За жалост областта в която работя не е свързана със строителството и затова чета тук за да се образовам. Решил съм да изолирам с каменна вата стените мин 15 - 20 см . Под първа плоча чух от мой познат за насипване на перлит към 30 - 50 см, изолиране на основите с XPS и нагоре с каменната вата. Интересно ми е как да изолирам терасата при такива дебелини на ватата какво да сложа на пода... Как да се направи покрива дали да се изолира под керемидите или върху плочата (бетонна ли да бъде или гредоред) или и двете. Покрива при този начин както е на проекта незнам дали е най-добрия вариант за максимална изолация. Иначе няма да ми трябва под покривното пространство...
Да добавя само че верандата, която я има на чертежа няма да се свързва с къщата заради термомоста.
Pasko - специалист
Терасата можеш да я направиш с прекъснат термомост анкери и няма да има нужда да я изолираш ако е изнесена напред.
hristo_qn - специалист
Проектанта ти е сложил на чертежа си много по-малко сантиметри, отколкото ти посочваш (15 до 20 см вата). Ако изолираш стените с 15-20 см вата, то фасадата ти трябва да е вентилируема. Не че не е възможно каменна облицовка на първия етаж, ако трябва да я изпълниш правилно със самостоятелна носеща конструкция, ще ти легне много скъпо. Фирма "Мегамат" във Варна имат опит с облицоване на нискоенергийна сграда с каменна облицовка, но доколкото съм запознат те правиха специална конструкция, а и самата облицовка не беше точно каменна, а керамични плочи.
Що се отнася до изолацията на покрива това което ти е начертал архитекта е много по-евтин вариант, а и ти самия казваш, че няма да ползваш подпокривното пространство.
Tsilkov - майстор
hristo_qn написа:
Що се отнася до изолацията на покрива това което ти е начертал архитекта е много по-евтин
И по енергоефективен понеже топлоотдаващата площ намалява :wink:
Последна промяна от Tsilkov на вт яну 14, 2014 9:10 am, променено общо 1 път.
Dinev77 - напреднал
hristo_qn написа:
Проектанта ти е сложил на чертежа си много по-малко сантиметри, отколкото ти посочваш (15 до 20 см вата). Ако изолираш стените с 15-20 см вата, то фасадата ти трябва да е вентилируема.
Здравей Христо, както вече споменах, когато взех да мисля за изолацията и споделих това с архитекта... не срещнах кой знае какво разбиране и затова в проекта изолацията е колкото да се спази законът и доколкото разбирам "Наредба 7". Според него после мога да слагам колкото искам но това нямало да има ефект... изобщо не срещам много разбиране, затова пробвам в този форум в които има толкова много различни хора и мнения.
Иначе и на мен ми предложиха вентилирурма фасада за каменната вата.
Dinev77 - напреднал
Pasko написа:
Терасата можеш да я направиш с прекъснат термомост анкери и няма да има нужда да я изолираш ако е изнесена напред.
Това как ще стане в моят случай, когато терасата е върху 2-рата плоча... може ли някаква картинка все пак строителството не ми е занаята
hristo_qn - специалист
Това как ще стане в моят случай, когато терасата е върху 2-рата плоча... може ли някаква картинка все пак строителството не ми е занаята
Аз реших прекъсването на термо моста по този начин, терасата е на външния пояс, плочата на вътрешния и това което ги свързва е само арматурата.

Прикачен файл

DSC_1893.JPG
  • 1
  • 2
  • 3
  • 4
  • 5
  • 7

Тема "Нискоенергийна къща в проект" | Включи се в дискусията:


Сподели форума:

Бъди информиран. Следвай "Направи сам" във Facebook:

Намери изпълнител и вдъхновения за дома. Следвай MaistorPlus във Facebook: