Благодаря за коментарите ви!
Не съм сигурен как да променим покривите.
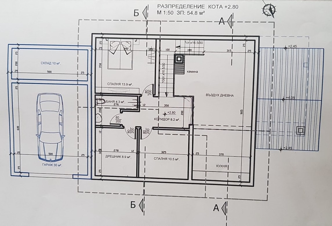
Основата на къщата сиреч без гаража и верандата, е максимално оптимизирана, като направихме баланс между това което искаме и това което може да си позволим. Все пак държим на всекидневната да е с висок таван и да има нещо специално там. В тази част на къщата най-много ми харесва как се получи!
Сервизирането на покрива ще се реши от 3 прозорчета на тавана (в 2 от стаите само това е варианта за прозорци, горе малката спалня и дрешника).
Верандата- първоначално ще е само плочата към къщата, в последствие ще я вдигнем нагоре. Гаража изцяло ще си остане, като втора постройка.
Лошото, е че проекта по-думите на архитекта, няма да може да "Мине" за под 100кв. понеже явно се вижда захода за горните етажи и ползването им не за таван. Така или иначе, това не ме притеснява много понеже фирмата, с която ще строя дали ще е под или над 100кв(по проект) цената им е еднаква, разликата е надзора.
П.с. отностно Архитектите в гр.Троян, доста е сложна ситуацията дето се вика "изградили са си комунизма" - с тези, може да се работи само с 2ма, като при единия като бях, не можахме да се разберем и се спрях на другия
Не съм сигурен как да променим покривите.
Основата на къщата сиреч без гаража и верандата, е максимално оптимизирана, като направихме баланс между това което искаме и това което може да си позволим. Все пак държим на всекидневната да е с висок таван и да има нещо специално там. В тази част на къщата най-много ми харесва как се получи!
Сервизирането на покрива ще се реши от 3 прозорчета на тавана (в 2 от стаите само това е варианта за прозорци, горе малката спалня и дрешника).
Верандата- първоначално ще е само плочата към къщата, в последствие ще я вдигнем нагоре. Гаража изцяло ще си остане, като втора постройка.
Лошото, е че проекта по-думите на архитекта, няма да може да "Мине" за под 100кв. понеже явно се вижда захода за горните етажи и ползването им не за таван. Така или иначе, това не ме притеснява много понеже фирмата, с която ще строя дали ще е под или над 100кв(по проект) цената им е еднаква, разликата е надзора.
П.с. отностно Архитектите в гр.Троян, доста е сложна ситуацията дето се вика "изградили са си комунизма" - с тези, може да се работи само с 2ма, като при единия като бях, не можахме да се разберем и се спрях на другия