Здравейте на всички, започвам строителството на малка къща/вила 63м2.Всички документи са на лице т. е. имам раз. за строеж. Идеята ми е освен основите, фундамента другото да изграждам сам с помощта на  приятели. Попитах няколко човека занимаващи се с изграждането на основите но като погледнат проекта повечето ми казват че е много презастрахован, и почват едни предложения това да намалим другото да отстраним и почвам да се притеснявам. Прилагам проекта на основите. Само да кажа за почвата на парцела е около 30 см хумос след това ми казаха че е изветрял гранит, била здрава почва, не разбирам. Само да отбележа че няма да има втора плоча а ще е градоред между  покрива и етажа.
								
																	
									
															
																															
																								
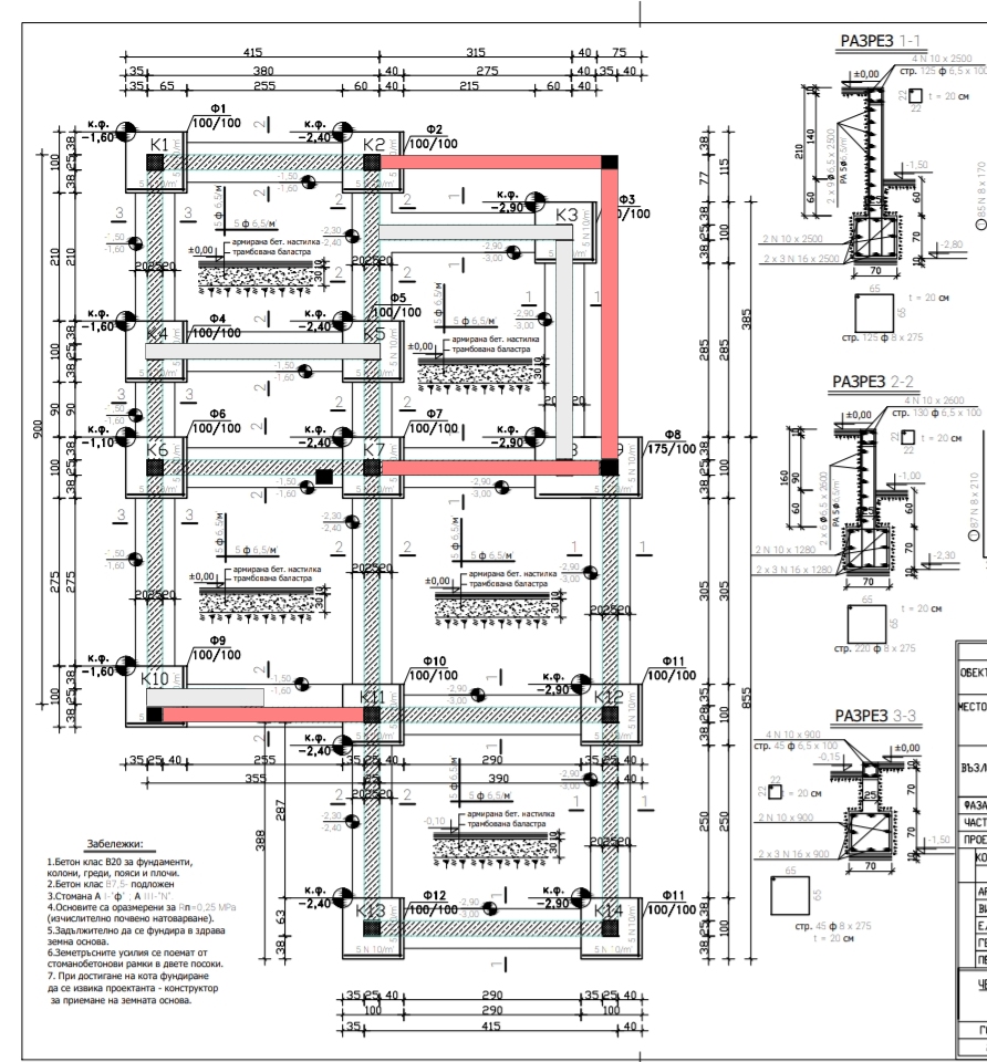
															Ако имаш количествана сметка за килограмите арматура в цялата конструкция мога да ти кажа, че 40кг желязо на м2 застроена площ е максимума в масовия случай с бетонна плоча на тавана.. Колко ти е денивелацията на терена и на колко ще е над терена основата на кота 0?
П.П.Видях ги вдясно в разреза..
Малко дебели са ти стъпките за колоните и тези чупки не знам защо сте ги искали.. Ако е проектирано по Еврокод става дебело, но с колоните 25х25 ме съмнява да е така. Все пак конструктора се подписва..
								
															
																															
																								
															

 
   Може би е можело да се изтегли вдясно поне  стената да бъде в линия или цялата къща да се позиционира така, че да се съобрази с нея.. За чупката доло в ляво, нямам обяснение..
 Може би е можело да се изтегли вдясно поне  стената да бъде в линия или цялата къща да се позиционира така, че да се съобрази с нея.. За чупката доло в ляво, нямам обяснение..
