Здравейте
Моля за мнение и съвет, относно полагане на ламинат върху неравни теракотни плочки с разминавания в нивата на плочките.
Пода е на коридор и две стаи, налепени с еднакви плочки.
Проблема е, че изравнителна замазка не може да се направи според мен, тъй като коридора и стаите са гипсокартон и към момента са шпакловани и боядисани. Вратите също са монтирани като е смятано да се положи 3мм подложка и 8мм ламинат.
Може ли да се махат неравните плочки и да се изравнява с лепило за плочки или саморазливна замазка на тези места, а другите неравности да се запълват с различни размери подложки?
Мисля да сложа подложка с алуминиево фолио XPS 3мм, да се избегне проникване на влага от пода към ламината, тъй като е на приземен етаж, и как се полага тая подложка с алуминиевото фолио към плочките ли? Ще се получава ли конденз между плочките и подложката с алуминиево фолио?
Ламината е еднакъв за коридора и стаите, дали е по добре реденето да е без прекъсване от коридора към стаите или да има преходни лайсни?
Без име.png (5.96 KиБ) Видяна 1080 пъти
Ако е без преходни лайсни си мислех да започне да се реди по дължината на коридора и от там да влиза в стаите без прекъсване или греша?
Или как е по добре да се нареди?
Благодаря предварително!
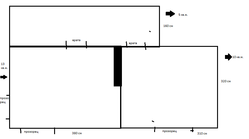
Моля за мнение и съвет, относно полагане на ламинат върху неравни теракотни плочки с разминавания в нивата на плочките.
Пода е на коридор и две стаи, налепени с еднакви плочки.
Проблема е, че изравнителна замазка не може да се направи според мен, тъй като коридора и стаите са гипсокартон и към момента са шпакловани и боядисани. Вратите също са монтирани като е смятано да се положи 3мм подложка и 8мм ламинат.
Може ли да се махат неравните плочки и да се изравнява с лепило за плочки или саморазливна замазка на тези места, а другите неравности да се запълват с различни размери подложки?
Мисля да сложа подложка с алуминиево фолио XPS 3мм, да се избегне проникване на влага от пода към ламината, тъй като е на приземен етаж, и как се полага тая подложка с алуминиевото фолио към плочките ли? Ще се получава ли конденз между плочките и подложката с алуминиево фолио?
Ламината е еднакъв за коридора и стаите, дали е по добре реденето да е без прекъсване от коридора към стаите или да има преходни лайсни?
Прикачен файл:
Без име.png (5.96 KиБ) Видяна 1080 пъти
Или как е по добре да се нареди?
Благодаря предварително!