10ка арматура добре ли е? Също така гледах, че арматурата за 2ра плоча се правиш по различен начин от тази на първа. Някой може ли да ме опъти къде и каквото да прочета? Гледах огъвания на арматурата преди средата на стаята от 2 страни, но си нямам на идея как и защо... Помощ? 
- 1
- 2
Предимства, недостатъци, цени, материали, планове, пасивни къщи и т.н.
Croin
- напреднал
11 мнения в "Арматура за 2ра плоча."
kozl
- майстор
- Мнения: 11268
ср дек 08, 2021 10:20 pmCroin написа: 10ка арматура добре ли е? Също така гледах, че арматурата за 2ра плоча се правиш по различен начин от тази на първа. Някой може ли да ме опъти къде и каквото да прочета? Гледах огъвания на арматурата преди средата на стаята от 2 страни, но си нямам на идея как и защо... Помощ?Примерно почни от УАСГ![]()
Croin
- напреднал
- Мнения: 29
чет дек 09, 2021 8:33 amkozl написа:Ако имах толкова време щях, уви бързам.ср дек 08, 2021 10:20 pmCroin написа: 10ка арматура добре ли е? Също така гледах, че арматурата за 2ра плоча се правиш по различен начин от тази на първа. Някой може ли да ме опъти къде и каквото да прочета? Гледах огъвания на арматурата преди средата на стаята от 2 страни, но си нямам на идея как и защо... Помощ?Примерно почни от УАСГ![]()
![]()
kozl
- майстор
- Мнения: 11268
чет дек 09, 2021 8:36 amCroin написа:Защо някои си мислят, че бързането е с предимствочет дек 09, 2021 8:33 amkozl написа:Ако имах толкова време щях, уви бързам.ср дек 08, 2021 10:20 pmCroin написа: 10ка арматура добре ли е? Също така гледах, че арматурата за 2ра плоча се правиш по различен начин от тази на първа. Някой може ли да ме опъти къде и каквото да прочета? Гледах огъвания на арматурата преди средата на стаята от 2 страни, но си нямам на идея как и защо... Помощ?Примерно почни от УАСГ![]()
![]()
Дори немат и време да поровят в търсачката.
Има неква поговорка, че времето е пари. И верно и тука е така оти и време нема и пари нема...... да се плати на проектант да сметне, да направи чертежи.
Иначе с 10-ка стаа ли
А ква е разликата м-у първа и втора плоча
mrsch66
- специалист
- Мнения: 169
Хайде взимай молива и почвай да смятяш https://bul.gillmanbuilders.com/skolko- ... ube-betona
BLUEPUPIL
- майстор
- Мнения: 2157
За двупосочно армирана плоча с греди:
Армиране на гредите
https://www.youtube.com/watch?v=86tVNuoITm4
Забележка:
1..Биглите на колоната на нивото
на гредите и поне 20см под тях
са през 5-7см. И всички са N8;
2..Биглите на гредите са мин. Ф6.5
по-гъсто или N8.
Плоча:
https://www.youtube.com/watch?v=nS9THeDSMw0
Забележка:
1..За отвори (тясна страна) до 3.5м
армировка N8; нагоре N10
2..Горната армировка стигаща над
гредите- колко да е дълга горната
част?- като опреш до нея.
3..Дебелина на плочата без проект-
при светъл отвор (тясна страна) L/20.
350/20=17.5 (17-18см)
400/20=20см.
Армиране на гредите
https://www.youtube.com/watch?v=86tVNuoITm4
Забележка:
1..Биглите на колоната на нивото
на гредите и поне 20см под тях
са през 5-7см. И всички са N8;
2..Биглите на гредите са мин. Ф6.5
по-гъсто или N8.
Плоча:
https://www.youtube.com/watch?v=nS9THeDSMw0
Забележка:
1..За отвори (тясна страна) до 3.5м
армировка N8; нагоре N10
2..Горната армировка стигаща над
гредите- колко да е дълга горната
част?- като опреш до нея.
3..Дебелина на плочата без проект-
при светъл отвор (тясна страна) L/20.
350/20=17.5 (17-18см)
400/20=20см.
resistbody
- майстор
- Мнения: 1429
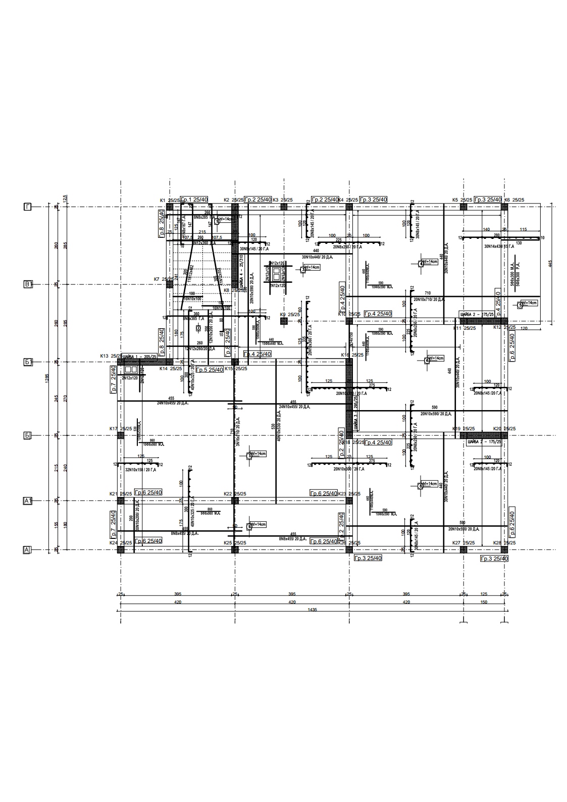
Какво ще носи тая плоча, моята е с 10ка плетена, + усилители пак 10ка.. това е масивна плоча за многоетажна сграда с големи светли отвори минимум 4м. на поле в силно сеизмичен район.. Мога да ти пратя част армировка ако ти е интересно..

BLUEPUPIL
- майстор
- Мнения: 2157
Прати ми ги.
Слагам по 2х2.5см бет. покритие, за да
пази арм. от корозия и пожар.
Остават „чисто“ 13+2=15см (17.5-2.5), което
(13см) си е ОК за светъл отвор от 3.5м, ако иска да
държи провисването и вибрациите за
30-40год. на ниски нива.
И да не забравяве, че човека работи без
проект, което за безопасност добавя 2см
към дебелината на плочата 13+2=15см.
Което за 100м2 е само още 2м3 бетон.
Така плочата става общо 13+2
+2.5=17.5см
при светъл отвор от 3.5м.
И второ важно съображение, което
много хора не могат да разберат.
Винаги е по-добре да се прави по-дебела
плоча с арм. N8, отколкото по-тънка с N10
за отвори в диапазона на жил. строителство,
т.е. светло 3.5-4м.
Не съветвам никого да прави тънки плочи.
Икономията е минимална. Няколко кубика бетон
и няколко см по-ниски страници по периферията.
Да не говорим, че някои се опитват да компенсират
с армировка и резултата е същата цена, но с
по-голямо провисване.
Слагам по 2х2.5см бет. покритие, за да
пази арм. от корозия и пожар.
Остават „чисто“ 13+2=15см (17.5-2.5), което
(13см) си е ОК за светъл отвор от 3.5м, ако иска да
държи провисването и вибрациите за
30-40год. на ниски нива.
И да не забравяве, че човека работи без
проект, което за безопасност добавя 2см
към дебелината на плочата 13+2=15см.
Което за 100м2 е само още 2м3 бетон.
Така плочата става общо 13+2
+2.5=17.5см
при светъл отвор от 3.5м.
И второ важно съображение, което
много хора не могат да разберат.
Винаги е по-добре да се прави по-дебела
плоча с арм. N8, отколкото по-тънка с N10
за отвори в диапазона на жил. строителство,
т.е. светло 3.5-4м.
Не съветвам никого да прави тънки плочи.
Икономията е минимална. Няколко кубика бетон
и няколко см по-ниски страници по периферията.
Да не говорим, че някои се опитват да компенсират
с армировка и резултата е същата цена, но с
по-голямо провисване.
resistbody
- майстор
- Мнения: 1429
Моята е по-дебела от по план, че баща ми объркал нещо като пускали лазера за нивата... 2.5 дистанциал предпочетох вместо проектното 1.5.. и всичко вибрирано яко, вече 36-ти ден седи подпряна и май цяла зима ще остане подпряна
после ще кача армировката.. имам и едни изхвърляния терасата е фигурно 30N14 за 4м ширина... е там не успях да ги средя и останаха няколко пръчки..
Идеята ми е автора на темата да види какво представлява един подобен проект...
после ще кача армировката.. имам и едни изхвърляния терасата е фигурно 30N14 за 4м ширина... е там не успях да ги средя и останаха няколко пръчки..
Идеята ми е автора на темата да види какво представлява един подобен проект...
- 1
- 2
Тема "Арматура за 2ра плоча." | Включи се в дискусията:
Сподели форума:
Бъди информиран. Следвай "Направи сам" във Facebook:
Намери изпълнител и вдъхновения за дома. Следвай MaistorPlus във Facebook:
Имаш нужда от подходящ професионалист за дома?
- Преустройство, ремонт и реновиране
- ↳ Вашите ремонти
- ↳ Кухня
- ↳ Баня
- ↳ Дневна
- ↳ Спалня
- ↳ Детска
- ↳ Градина
- ↳ Коридор
- ↳ Тераса и балкон
- Направи сам
- ↳ Направи сам
- ↳ Ремонтирай сам
- ↳ Къде е по-евтино?
- ↳ Дърводелство
- ↳ Ел. инструменти
- ↳ Металообработване
- ↳ Конкурс "Направи сам 2012"
- Строителство
- ↳ Всичко за вилата
- ↳ Къщи
- ↳ Саниране
- ↳ Хидроизолация
- ↳ Пасивни и нискоенергийни сгради
- Сухо строителство
- ↳ Окачени тавани
- ↳ Преградни стени и предстенни обшивки
- ↳ Сухи и повдигнати подове
- ↳ Декоративни елементи - колони, трегери, сводове и др.
- ↳ Всичко за гипскартона и гипсфазера
- Въпроси и Отговори
- ↳ Полезни съвети
- ↳ Автомобили
- ↳ Партньори
- ↳ Боядисване и Декориране
- ↳ Вентилация, климатици и термопомпи
- ↳ Водоснабдяване и канализация.
- ↳ Всичко за ремонта
- ↳ Електротехника
- ↳ Отопление
- ↳ Газификация
- ↳ Електроника и Схеми
- ↳ Газобетон
- ↳ От всичко по малко
- ↳ Компютри и периферия
- ↳ Уеб дизайн, PHP, MySQL, JavaScript, HTML..
- ↳ Мобилни устройства, GSM-и
- ↳ Нека се запознаем
- ↳ Recycle Bin
- Статии
- ↳ Практични решения
- ↳ Качване на снимки
- ↳ Какви статии искате?
- ↳ Готварство, туршии и зимнина
- ↳ Отмора и шеги
- ↳ От нищо нещо
- ↳ Не е за вярване
- ↳ Литература
- ↳ Връзки към Интересни сайтове
- Магазин
- ↳ Препоръки и Мнения за он-лайн магазина
- ↳ Крадeни инструменти !!!
