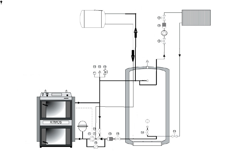
Колега, може да се опрости малко схемата. Трябва ти да следиш температурата в буфера и да си палиш редовно котела, когато тя падне. Помпата на радиаторите се командва от стаен термостат, и според мен трябва да заложиш на поне 1000 л буфер. Ако нямаш възможност за купешки, то тогава и направи сам е вариант. Ето я и опростената схема :

_kotel, boiler, bufer i radiatori.jpg (58.63 KиБ) Видяна 679 пъти
Като просто при теб няма да се изгражда линията за бойлера.
Прикачен файл:
_kotel, boiler, bufer i radiatori.jpg (58.63 KиБ) Видяна 679 пъти
Като просто при теб няма да се изгражда линията за бойлера.