Подкрепям Илия. Включваш аспирацията в 15/20, не в двойното тяло. То е смукателен комин. Самостоятелното е аспирация.
чет фев 03, 2022 2:20 pmkozl написа: Я да видим чертежи от под петия етаж![]()
И оти си лепнал чертежи по част Електро. Нема ли по ОВК?
Нямам чертежи под петия етаж.
Нямам и за ОВК.
пон яну 10, 2022 3:50 pmkozl написа: Комбинираните ком.тела се ползват до 5 етажа. После продължава тяло с размер на голямото сечение, а до него се започва следващата комбинация малко/голямо тяло и т.н.Не е така. Чета. И не забравям.
Да ама некой не сака да чете или заборавя![]()
Ама като четох - още предния път Ви казах че не разбрах какво ми казвате.
Моля, вижта началото на постинга ми от
пон яну 17, 2022 3:12 pm
чет фев 03, 2022 2:20 pmkozl написа: И какво не разбра от схемите в предишните постовеОК. Разбрах.![]()
В малкия отвор се зауства от етажа, големия е транспортен за всички включени в този КОМБИНИРАН комин етажи до горе (покрива). На последния етаж малкия отвор е възможно се извежда до горе самостоятелно.
чет фев 03, 2022 2:20 pmkozl написа: Ако покажеш всички чертежи може би да стане ясно. Сградата на ТЕЦ ли е или на газ?Ами нямам повече чертежи.
ТЕЦ. В апартамента влизат тръби за парно. Ама от къде идват - не се знае.
А пък розови правоъгълници има само на две места на етажната схема.
В едното място проверих - никакви комуникации не се виждат вътре.
Интернетът е на друго място, знам къде е. Не е около розовите правоъгълници.
Нямам други чертежи.
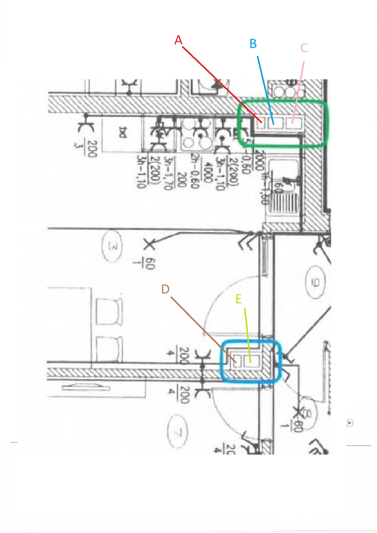
Kozl, ясно е, че до зеленото са готварските печки, ама още ли не е ясно, че сифонът ми е затапен отгоре с плоча. а средният отвор е затапен на 90%. Кое не е ясно?!
Верно зеления правоъгълник удобно място е за аспирация. Ама е затапено от горната плоча.
А въпроси меткам, за да потърся решение как да реша проблема със затапването на сифона и на средната вертикална дупка.
Въпрос: За какво служи третият отвор. Дори и да сте ми отговорили - не съм разбрал за какво служи.
Много моля, пояснете за какво служи третата дупка на тройния комин. Нищо друго не ми остава освен да заустя аспиратора директно там. Как ще стане - не знам. Но такива намерения имам. Колко е законно това? Намеренията ми протовоправни ли са?
