Предимства, недостатъци, цени, материали, планове, пасивни къщи и т.н.
Димитър Димов - специалист
пон ное 21, 2022 10:07 amkozl написа:
пон ное 21, 2022 9:49 amДимитър Димов написа:
Човешко мислене.На едни им е достатъчна телена ограда за да се знае границата на имота,други вдигат берлинската стена за да не ги гледат съседите и страх от крадци,но не знаят че от крадец и завистлив съсед спасение няма.
Пак некъв "компетентен" отговор.
Благодаря за компетентното пояснение,но както писах вече ''мислене''.Винаги че се намери някой, който да ти обясни колко си невеж по темата,без да знае какви са ти познанията в сферата.Не съм искал да обидя автора на темата защото сам каза че не разбира от тези неща.Още веднъж ''мерси-благодарим'' на КОЗЛ за това че ми обясни неща които вече знаех.schuldiner е написал изискването за такава ограда.
radius - майстор
пон ное 21, 2022 12:14 pmschuldiner написа:
Не се изисква разрешение за строеж на леки прозирни огради и плътни огради до 2.20 м. с височина на плътната част до 0,6 м в рамките на поземления имот съгласно чл. 147, ал. 1, т. 7 от ЗУТ.
Да, това е така и не противоречи на моето изказване, защото ал.2 на същия член:
"За строежите по ал. 1, т. 1, 3, 4, 5, 6, 7 и 17 се представя становище на инженер-конструктор с указания за изпълнението им".
schuldiner - майстор
пон ное 21, 2022 2:26 pmradius написа:
пон ное 21, 2022 12:14 pmschuldiner написа:
Не се изисква разрешение за строеж на леки прозирни огради и плътни огради до 2.20 м. с височина на плътната част до 0,6 м в рамките на поземления имот съгласно чл. 147, ал. 1, т. 7 от ЗУТ.
Да, това е така и не противоречи на моето изказване, защото ал.2 на същия член:
"За строежите по ал. 1, т. 1, 3, 4, 5, 6, 7 и 17 се представя становище на инженер-конструктор с указания за изпълнението им".
Така е, не противоречи, обаче не ми е ясно на кого се представя това становище. Сигурно на някакви проверяващи при сигнал от доброжелатели. На вече построена ограда кой и кога ще го иска и има ли задължение да се съхранява от собственика не знам

Конструктивното становище е съставено от :
– копие от документа за дееспособност на инженер-конструктора от КИИП и застраховка Професионална отговорност на проектант
– графична част – включва чертежите на предвижданите изменения
– снимков материал, направен на място, който да документира текущото състояние на обекта и подкрепи становището
– проучвателна част – за периода на издигане на постройката, конструктивна схема, изучаване на референтни обекти и т.н.
– указания и становище на инженер-конструктора
kvsandro - напреднал
По моя въпрос - консултирах се с човек, който се занимава със строителство и според него от снимките няма как да има толкова арматура заложена. Това, което се сетих, е че реално тази заварена мрежа е по-скъпа на килограм, тъй като е "готов продукт" и излиза в диапазона 3-5 лева на килограм, та може количествата да са надути, за да се докара общата цена, предвид че арматурата е изписана на една цена на килограм. Естествено пак не се вързва сумата, тъй като разминаването е повече от два пъти и ще се консултирам с още някой, преди да конфронтирам строителя.
nikolov333 - майстор
При мен беше подобен проекта.. Две огради-подпорни стени 25 + 32м с височина към 1,5м 2019г излязоха 13000лв. с труда и материялите.. Сега не помня точните количества арматура и бетон, но прилагам снимки как сме ги правили..

Прикачен файл

4-1.jpg

Прикачен файл

4.jpg

Прикачен файл

3.jpg

Прикачен файл

2.jpg

Прикачен файл

1.jpg
nikolov333 - майстор
Прилагам проекта и снимки на втората част 32м..

Прикачен файл

IMG_20190522_173908.jpg
IMG_20190522_173908.jpg (59.96 KиБ) Видяна 2355 пъти

Прикачен файл

7.jpg

Прикачен файл

6.jpg

Прикачен файл

5.jpg
kvsandro - напреднал
Благодаря за споделената информация.

При теб има доста повече арматура видно. При мен в проекта са заложени N8 на 20х20, като и височината е по-малка. Тук таме имам боднат по един прът N12, който да поддържа заварената мрежа. Правих си нови сметки днес и то супер щедри, че предишните ми бяха доста грешни. Закръглях нагоре навсякъде и ги докарах до малко над 2 тона и то с много уговорки, ама 3 тона не мога да ги изкарам, така че има 1 тон (даже може би повече, предвид че бях щедър) разминаване със сигурност.
kozl - майстор
пет ное 25, 2022 10:31 pmkvsandro написа:
Благодаря за споделената информация.

При теб има доста повече арматура видно. При мен в проекта са заложени N8 на 20х20, като и височината е по-малка. Тук таме имам боднат по един прът N12, който да поддържа заварената мрежа. Правих си нови сметки днес и то супер щедри, че предишните ми бяха доста грешни. Закръглях нагоре навсякъде и ги докарах до малко над 2 тона и то с много уговорки, ама 3 тона не мога да ги изкарам, така че има 1 тон (даже може би повече, предвид че бях щедър) разминаване със сигурност.
Е къде ти е проекта, че го не видох :?
Ако чертежчето го мислиш за проект #-o
nikolov333 е показал как трябва да изглежда чертежа. На твоите снимки се вижда само една мрежа Ф8, центрирана в средата на стената, а това е тъпотия. Мрежите требе да са 2 от двете страни на стената минус бетоновото покритие. Двете мрежи се хващат с есове. Стъпката на фундамента липсва на снимките и т.н........
kvsandro - напреднал
съб ное 26, 2022 9:32 amkozl написа:
пет ное 25, 2022 10:31 pmkvsandro написа:
Благодаря за споделената информация.

При теб има доста повече арматура видно. При мен в проекта са заложени N8 на 20х20, като и височината е по-малка. Тук таме имам боднат по един прът N12, който да поддържа заварената мрежа. Правих си нови сметки днес и то супер щедри, че предишните ми бяха доста грешни. Закръглях нагоре навсякъде и ги докарах до малко над 2 тона и то с много уговорки, ама 3 тона не мога да ги изкарам, така че има 1 тон (даже може би повече, предвид че бях щедър) разминаване със сигурност.
Е къде ти е проекта, че го не видох :?
Ако чертежчето го мислиш за проект #-o
nikolov333 е показал как трябва да изглежда чертежа. На твоите снимки се вижда само една мрежа Ф8, центрирана в средата на стената, а това е тъпотия. Мрежите требе да са 2 от двете страни на стената минус бетоновото покритие. Двете мрежи се хващат с есове. Стъпката на фундамента липсва на снимките и т.н........
Здравей,

Не съм твърдял никъде, че чертежчето е проект, схема е, която дори не е изпълнена според простите ми знания :))

Точно затова питах тук да се допитам до опитни хора, защото според мен има разминавания.

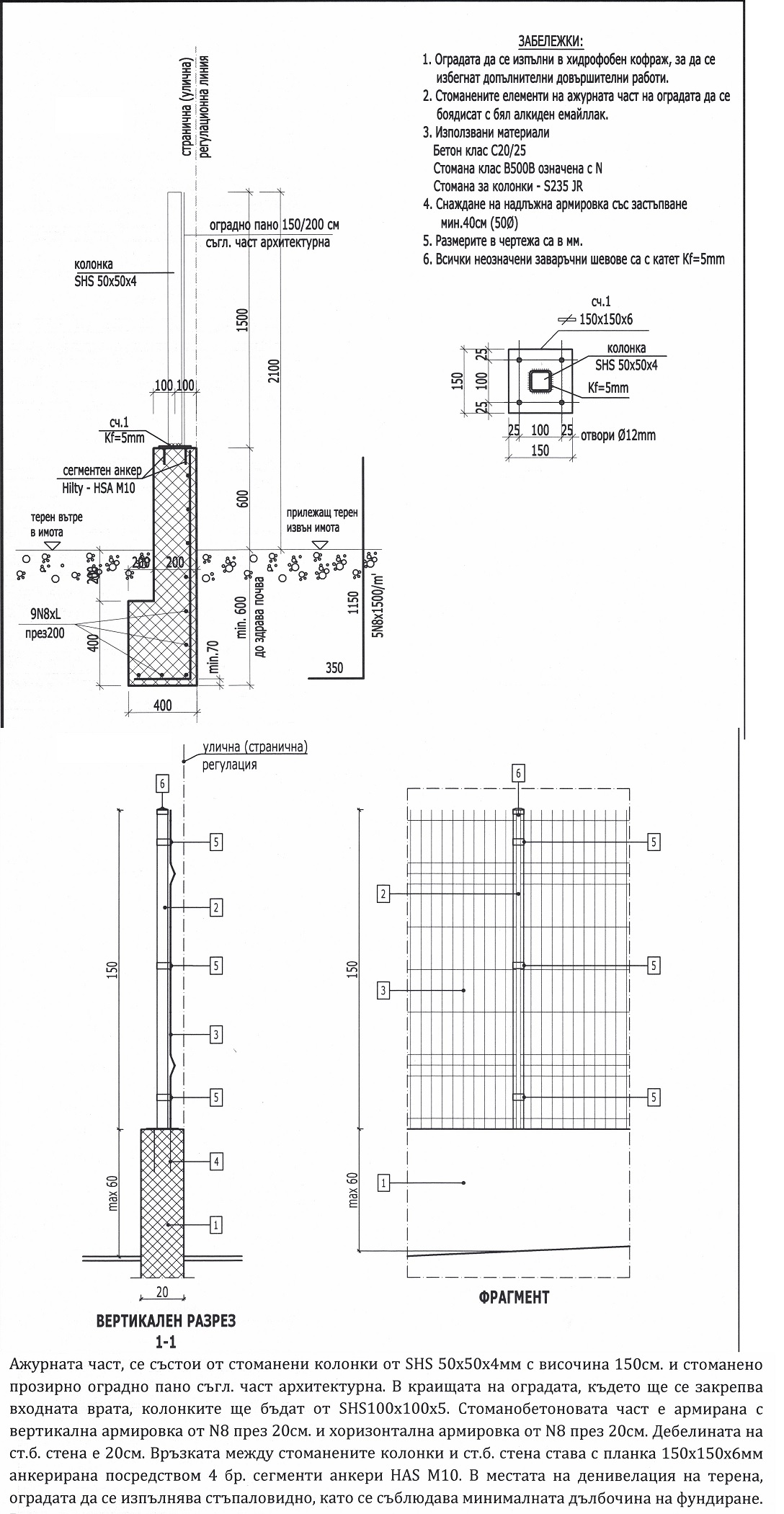
Иначе имам проект, правен от конструктор, но проблемът беше, че паната са със стандартна дължина 2.5м, а проекта беше направен за 2м. Стъпката е направена на 20см. в момента. Прикачам релевантната част от проекта, който имам, но очевидно не е спазен:

1. Основата трябва да е Г образна, а не е.
2. Арматура в основата не видях да се слага, само мрежата.
3. Има вложена и N12 арматура, в проекта такава няма.

Последно това, което ми казаха, е че са спазили проекта, но само са изменили стъпките, тъй като трябваше да са на 2.5м дължини, като също така в проекта имаше различни височини при стъпките - някъде 35см, някъде 25см. а така са го уеднаквили всички стъпки да са с еднаква височина.
Прикачен файл:
ograda.jpg
radius - майстор
Направо са го спазили :axe:

Тема "Цена на бетонова ограда" | Включи се в дискусията:


Сподели форума:

Бъди информиран. Следвай "Направи сам" във Facebook:

Намери изпълнител и вдъхновения за дома. Следвай MaistorPlus във Facebook: