LazarGanev написа:Едно буферче.filmatoplo написа:Само да попитам -кога пелетен котел или горелка би изгорила повече за едно и също време работа , но единия път да работи и спира по често .Отговарям - когато спира по-рядко. И веднага питам - кое ще накара горелката да спира по-рядко?
Най - вълнуващия въпрос зимно време.
nikisv
- специалист
45 мнения в "Съвет за свързване на котел, бойлер, локално парно"
LazarGanev
- "Велик майстор"
- Мнения: 15019
С буфер - да, но сравняваме 2 системи с автоматични горелки (да речем на пелети, но може и на друго) - едната е с четирипътен вентил, другата е с термоглави на радиаторите - кога и защо горелката ще спира по-рядко?
filmatoplo
- майстор
- Мнения: 17842
Дали се разбрахме
-кога последно ще гори повече -1. когато работи 3 часа без да спре , и 2.когато работи 3 часа (разсрочени във времето) но с 10 пъти стоп и пуск на горелката по време на работа
.
Чаро
- Акълия
- Мнения: 1546
filmatoplo написа:Дали се разбрахмеВсяка система (било то и отоплителна) трябва да е балансирана. Не е ли постигнат баланс , това по-скоро не е система. Кога според теб нещата са плавни и спокойни- при често щракане на релета и палене или когато се установи добър и продължителен горивен процес ?-кога последно ще гори повече -1. когато работи 3 часа без да спре , и 2.когато работи 3 часа (разсрочени във времето) но с 10 пъти стоп и пуск на горелката по време на работа
.
При термопомпите първите 5 до 7 минути след старт на компресора (говоря за истински, сериозни машини, не за хоби-климатико-термопомпи) са влизане в режим със странни показатели. Едва след установяването на работни налягания, температури и дебити говорим за режим, КОП и т.н...
involve
- помощник
- Мнения: 13
Здравейте,майстори,разбирачи и потребители на форума.
Дойде време и аз да измайсторя локалното "парно" на дома ми,но имам доста въпроси.
Разгледах доста от темите във форума,но не успях да разбера някой неща.
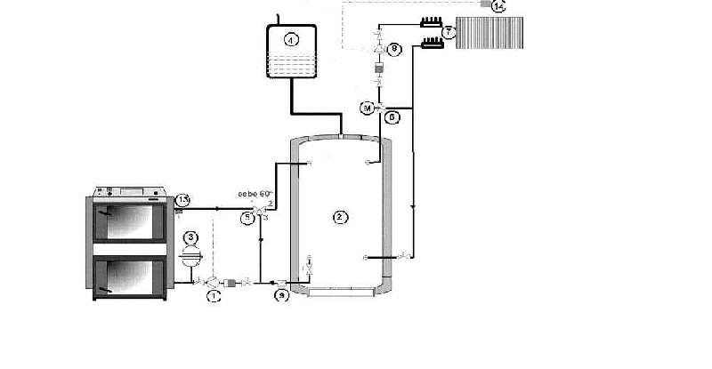
Използвал съм схема от "Atmos.cz",като съм изтрил ненужните за мен части от нея(бойлера и третата помпа) и леко съм я променил.
Ето схемата
схема.jpg (16.33 KиБ) Видяна 9533 пъти
1.Помпа на малкия кръг.
2.Буферен съд със серпентина.
3.Затворен Р.С.
4.Отворен Р.С.
5.ESBE 60* или TERMOVAR
6.Трипътен вентил на големия кръг.
7.Колектори.
8.Помпа на големия кръг.
9.Възвратен клапан.
13.Потопяем капилярен термостат за пускане и спиране на помпата на котела.
14.Стаен термостат.
Термометри и манометри не са изобразени.
Помпите (1) и (8) ще са GrundfosUP Basic 25-6 180.Мисля,че ще са достатъчни да качат водата до втория етаж.
Отворения разширителен съд го имам и е 30 литров.
ESBE-то така ли да го поставя,или да е както на (14) схема от "Atmos.cz"?Така да се каже...Да освободя ли пътя на топлата вода към буфера.а не да минава през "ESBE"?
На схема 13 и 14 на "Atmos.cz" има байпас под помпата и трипътния.Разбрах,че се слага,за да се използва и водата в котела,но мисля да мина без него?
От(9) има ли нужда или да го премахна?
Помпа (8) да се пуска от стаен термостат (14)или от термостат на буфера? Какво си мисля...Ако схемата остане в този вид,то тогава втория трипътен (6) трябва да е съвсем обикновен и с ръчна настройка да смесва потоците?Ако (6) е със задвижка(М) ще трябва и контролер,а жиците и електричеството не са ми сила.
Възможно ли е смесителя(6) да не се постави сега а по-късно и да има термовентили на радиаторите?Гледам,че има комплект вентил и глава за 25-30 лв.което ме устройва.
Когато в стаята е студено и термостата включи помпата,всеки термовентил сам да решава,колко да отвори и да използва топлото от буфера,докато в него температурата спадне.
Ако някога се монтира смесителен вентил и контролер,термоглавите на радиаторите ще пречат ли на работата на системата?
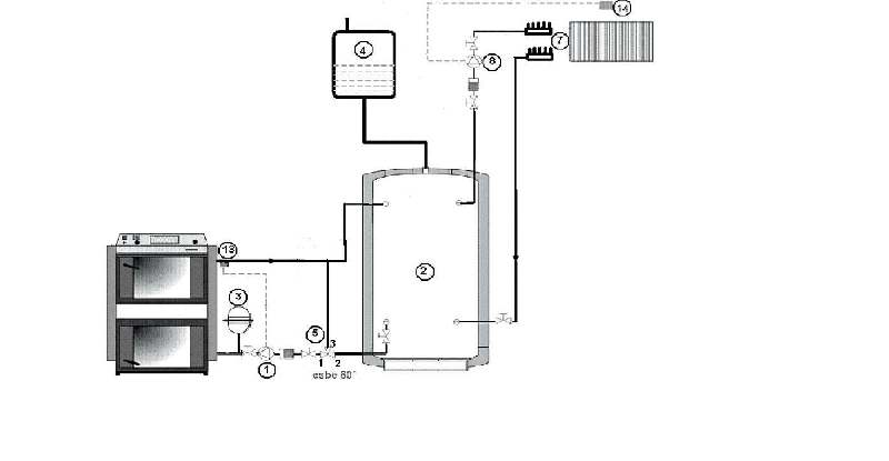
Още една схема
алтернативна схема.jpg (15.96 KиБ) Видяна 9533 пъти
Схемите излязоха доста малки и неразбираеми.
Приемам всякакви мнения и препоръки.Благодаря.
Дойде време и аз да измайсторя локалното "парно" на дома ми,но имам доста въпроси.
Разгледах доста от темите във форума,но не успях да разбера някой неща.
Използвал съм схема от "Atmos.cz",като съм изтрил ненужните за мен части от нея(бойлера и третата помпа) и леко съм я променил.
Прикачен файл:
Ето схемата
схема.jpg (16.33 KиБ) Видяна 9533 пъти
2.Буферен съд със серпентина.
3.Затворен Р.С.
4.Отворен Р.С.
5.ESBE 60* или TERMOVAR
6.Трипътен вентил на големия кръг.
7.Колектори.
8.Помпа на големия кръг.
9.Възвратен клапан.
13.Потопяем капилярен термостат за пускане и спиране на помпата на котела.
14.Стаен термостат.
Термометри и манометри не са изобразени.
Помпите (1) и (8) ще са GrundfosUP Basic 25-6 180.Мисля,че ще са достатъчни да качат водата до втория етаж.
Отворения разширителен съд го имам и е 30 литров.
ESBE-то така ли да го поставя,или да е както на (14) схема от "Atmos.cz"?Така да се каже...Да освободя ли пътя на топлата вода към буфера.а не да минава през "ESBE"?
На схема 13 и 14 на "Atmos.cz" има байпас под помпата и трипътния.Разбрах,че се слага,за да се използва и водата в котела,но мисля да мина без него?
От(9) има ли нужда или да го премахна?
Помпа (8) да се пуска от стаен термостат (14)или от термостат на буфера? Какво си мисля...Ако схемата остане в този вид,то тогава втория трипътен (6) трябва да е съвсем обикновен и с ръчна настройка да смесва потоците?Ако (6) е със задвижка(М) ще трябва и контролер,а жиците и електричеството не са ми сила.
Възможно ли е смесителя(6) да не се постави сега а по-късно и да има термовентили на радиаторите?Гледам,че има комплект вентил и глава за 25-30 лв.което ме устройва.
Когато в стаята е студено и термостата включи помпата,всеки термовентил сам да решава,колко да отвори и да използва топлото от буфера,докато в него температурата спадне.
Ако някога се монтира смесителен вентил и контролер,термоглавите на радиаторите ще пречат ли на работата на системата?
Прикачен файл:
Още една схема
алтернативна схема.jpg (15.96 KиБ) Видяна 9533 пъти
Приемам всякакви мнения и препоръки.Благодаря.
filmatoplo
- майстор
- Мнения: 17842
Котела Атмос ли ще е , или въобще котел на твърдо гориво
Освен термовентил Есбе виж модел -Термовар , погледни в Термоикономик .Най добре го монтирай на долната линия там му е мястото , не монтирай клапан 9 , ако си с отворен съд -мембранния е излишен .Най комфортно се получава ако имаш смесителен вентил с задвижка и контролер за отоплителен кръг , може и в комбинация с термоглави ,но не е задължително .Контролера визирам Интиелски , ще следи външната или вътрешната температура и ще наглася чрез задвижката на смесителния вентил такава температура на водата пращана към радиаторите -каквато е нужна
.
involve
- помощник
- Мнения: 13
Котела ще е на твърдо гориво Burnit или Bosch.За момента предпочитам червения
,но ще видим.
Буфера ще е със серпентина,затова и на самия буфер съм сложил Р.С.
Целта ми е системата от колекторите към радиаторите да не е под налягането на затворената система.
Тръбите са Pex-Al фи 20 от колекторите до радиаторите.
Тръбите около котела,буфера и до колекторите 1 цол.
Контролера на Интиел е..."Динамичен контролер за отоплителни системи с котли" ?Разглеждах го.С 4 или 5 датчика е?Намирам го в "Китайска техника" за 564 лв.Има ли го някъде на по-добра цена?
Смесителния и задвижката какви да са?Производител,модел?Предложете.Гледах един на Buderus.
Дали ще е ЕСБЕ или ТЕРМОВАР като се сложи долу на влизащата в котела вода ще работи 3-1,а не 1-3 както,ако е на горната линия.Предполагам,че няма да е никакъв проблем.
Утре ще драсна още една схема.Дано този път е по-четлива.Благодаря отново.
Буфера ще е със серпентина,затова и на самия буфер съм сложил Р.С.
Целта ми е системата от колекторите към радиаторите да не е под налягането на затворената система.
Тръбите са Pex-Al фи 20 от колекторите до радиаторите.
Тръбите около котела,буфера и до колекторите 1 цол.
Контролера на Интиел е..."Динамичен контролер за отоплителни системи с котли" ?Разглеждах го.С 4 или 5 датчика е?Намирам го в "Китайска техника" за 564 лв.Има ли го някъде на по-добра цена?
Смесителния и задвижката какви да са?Производител,модел?Предложете.Гледах един на Buderus.
Дали ще е ЕСБЕ или ТЕРМОВАР като се сложи долу на влизащата в котела вода ще работи 3-1,а не 1-3 както,ако е на горната линия.Предполагам,че няма да е никакъв проблем.
Утре ще драсна още една схема.Дано този път е по-четлива.Благодаря отново.
filmatoplo
- майстор
- Мнения: 17842
Динамичния е скъп , казах -за отоплителни кръгове http://www.intiel.com/heating-circuits- ... ler_bg.htm.
задвижка и вентил марка Хонивил
.
filmatoplo
- майстор
- Мнения: 17842
Датчика който си го сложил да мери връщащата вода преди котела се монтира в горния край на буфера 20-30 санта от върха -вкаран в медна гилза 10-15 санта дължина .След радиаторната помпа монтирай възвратен клапан .
Тема "Съвет за свързване на котел, бойлер, локално парно" | Включи се в дискусията:
Сподели форума:
Бъди информиран. Следвай "Направи сам" във Facebook:
Намери изпълнител и вдъхновения за дома. Следвай MaistorPlus във Facebook:
Имаш нужда от подходящ професионалист за дома?
- Преустройство, ремонт и реновиране
- ↳ Вашите ремонти
- ↳ Кухня
- ↳ Баня
- ↳ Дневна
- ↳ Спалня
- ↳ Детска
- ↳ Градина
- ↳ Коридор
- ↳ Тераса и балкон
- Направи сам
- ↳ Направи сам
- ↳ Ремонтирай сам
- ↳ Къде е по-евтино?
- ↳ Дърводелство
- ↳ Ел. инструменти
- ↳ Металообработване
- ↳ Конкурс "Направи сам 2012"
- Строителство
- ↳ Всичко за вилата
- ↳ Къщи
- ↳ Саниране
- ↳ Хидроизолация
- ↳ Пасивни и нискоенергийни сгради
- Сухо строителство
- ↳ Окачени тавани
- ↳ Преградни стени и предстенни обшивки
- ↳ Сухи и повдигнати подове
- ↳ Декоративни елементи - колони, трегери, сводове и др.
- ↳ Всичко за гипскартона и гипсфазера
- Въпроси и Отговори
- ↳ Полезни съвети
- ↳ Автомобили
- ↳ Партньори
- ↳ Боядисване и Декориране
- ↳ Вентилация, климатици и термопомпи
- ↳ Водоснабдяване и канализация.
- ↳ Всичко за ремонта
- ↳ Електротехника
- ↳ Отопление
- ↳ Газификация
- ↳ Електроника и Схеми
- ↳ Газобетон
- ↳ От всичко по малко
- ↳ Компютри и периферия
- ↳ Уеб дизайн, PHP, MySQL, JavaScript, HTML..
- ↳ Мобилни устройства, GSM-и
- ↳ Нека се запознаем
- ↳ Recycle Bin
- Статии
- ↳ Практични решения
- ↳ Качване на снимки
- ↳ Какви статии искате?
- ↳ Готварство, туршии и зимнина
- ↳ Отмора и шеги
- ↳ От нищо нещо
- ↳ Не е за вярване
- ↳ Литература
- ↳ Връзки към Интересни сайтове
- Магазин
- ↳ Препоръки и Мнения за он-лайн магазина
- ↳ Крадeни инструменти !!!

