Здравейте!
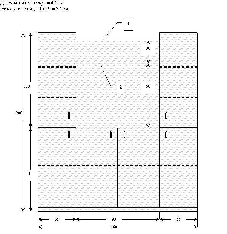
Най-напред искам да споделя, че с помощта на всички Вас, които давате съвети и напътствия успях да си направя този шкаф:
Плоскостите и разкроя го поръчах на фирма, а от мен /т.е. до голяма степен от Вас/ беше останалото, за което Ви Благодаря!
Между другото, успях да си спестя около 40% от разходите.
SHKAF.JPG (104.57 KиБ) Видяна 5093 пъти
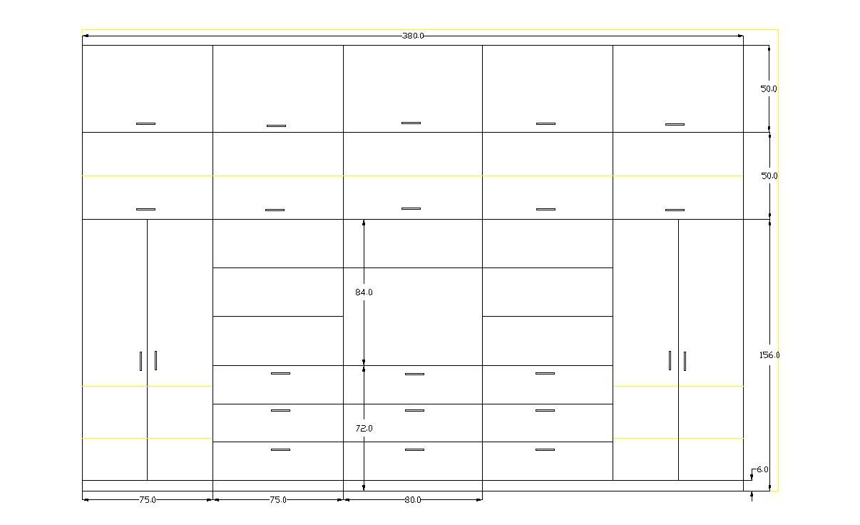
А се га на въпроса, мисля да си сглобя тази секция, на която крайните модули ще са дълбоки 500 мм, а останалите – 400 мм:
Sekzia.JPG (54.39 KиБ) Видяна 5093 пъти
И имам няколко въпроса.
1/ Чекмеджетата с какви водачи да ги направя.
2/ Гледам мебелните фирми дъната на чекмеджетата ги правят от 2.5-3 мм фазер, и ги коват с пирончета. При моя размер няма ли да провиснат или направо фазера да се откове?
3/ Бихте ли ми дали съвет, как да предотвратя провисване на хоризонталните плоскости на средния модул!
4/ Модулите на крачета ли да са, и ако „да” – какви?
5/ За горните редове, какви амортисьори на вратичките?
Към тази секция ще има и две нощни шкафчета и легло, които още не са ми се избистрили, като идеи.
За леглото само знам, че искам да е с амортисьори и матрака /който вече е купен – еднолицев – 164х200/ искам да ляга върху, а не да влиза в кутията.
Та, ако някой се сеща нещо, примерно каква да е конструкцията и какъв повдигащ механизъм да предвидя?
За сега само това, че стана много дълго. Сигурно ще има още въпроси.
Блогодаря, предварително!
Най-напред искам да споделя, че с помощта на всички Вас, които давате съвети и напътствия успях да си направя този шкаф:
Плоскостите и разкроя го поръчах на фирма, а от мен /т.е. до голяма степен от Вас/ беше останалото, за което Ви Благодаря!
Между другото, успях да си спестя около 40% от разходите.
Прикачен файл:
SHKAF.JPG (104.57 KиБ) Видяна 5093 пъти
Прикачен файл:
Sekzia.JPG (54.39 KиБ) Видяна 5093 пъти
1/ Чекмеджетата с какви водачи да ги направя.
2/ Гледам мебелните фирми дъната на чекмеджетата ги правят от 2.5-3 мм фазер, и ги коват с пирончета. При моя размер няма ли да провиснат или направо фазера да се откове?
3/ Бихте ли ми дали съвет, как да предотвратя провисване на хоризонталните плоскости на средния модул!
4/ Модулите на крачета ли да са, и ако „да” – какви?
5/ За горните редове, какви амортисьори на вратичките?
Към тази секция ще има и две нощни шкафчета и легло, които още не са ми се избистрили, като идеи.
За леглото само знам, че искам да е с амортисьори и матрака /който вече е купен – еднолицев – 164х200/ искам да ляга върху, а не да влиза в кутията.
Та, ако някой се сеща нещо, примерно каква да е конструкцията и какъв повдигащ механизъм да предвидя?
За сега само това, че стана много дълго. Сигурно ще има още въпроси.
Блогодаря, предварително!