Най - вълнуващия въпрос зимно време.
dimitar.z - специалист
Ето това нещо струва 76лв без ДДС!

Прикачен файл

P1070121.JPG
MamaMy - майстор
Прилича на някой от първите :wink:
http://www.plumbworld.co.uk/pressure-re ... s-231-0000

пп не 76, а 7,6. Объркали са само запетайката :lol:
LazarGanev - "Велик майстор"
Какво не ти харесва в програматорите на Теси?
filmatoplo - майстор
Стария ти предпазен клапан е модел -Watts , и струва 11,40 лв .Но може да се намери подобна марка за 7-10 лв. :wink:
dimitar.z - специалист
LazarGanev написа:
Какво не ти харесва в програматорите на Теси?
Ами не че не ми харесват, просто незнам дали стават за този котел и как се свързват? Дали има стандартен оставен куплунг примерно в управляващия блок на котела ? Не искам да ги викам пак онези....
LazarGanev - "Велик майстор"
Трябва да има едно мостче на платката, което се маха и на негово място се връзва термостата. Сензорния и безжичния на Теси са добър избор. Гледай схемата
dimitar.z - специалист
LazarGanev написа:
Трябва да има едно мостче на платката, което се маха и на негово място се връзва термостата. Сензорния и безжичния на Теси са добър избор. Гледай схемата
Модела Модел BEL 3888-TS на TESY Мога да си позволя финансово на този етап, струва 69лв. Ако имаш някаква схема на монтаж, че не мога да намеря в нета, би ли м я пратил на dimitar.z@abv.bg?
dimitar.z - специалист
filmatoplo написа:
Стария ти предпазен клапан е модел -Watts , и струва 11,40 лв .Но може да се намери подобна марка за 7-10 лв. :wink:
Всъщност бяха ми издали фактура на 15.10.2012, със срок на плащане 13.10.2012. Споменах им че с тази фактура ще отида в КЗП, ако ми спрат захранването и се оказа, че има малка грешка в дата и че няма срок за плащане, мога да я платя когато си искам.
Последна промяна от dimitar.z на пон окт 22, 2012 9:21 pm, променено общо 1 път.
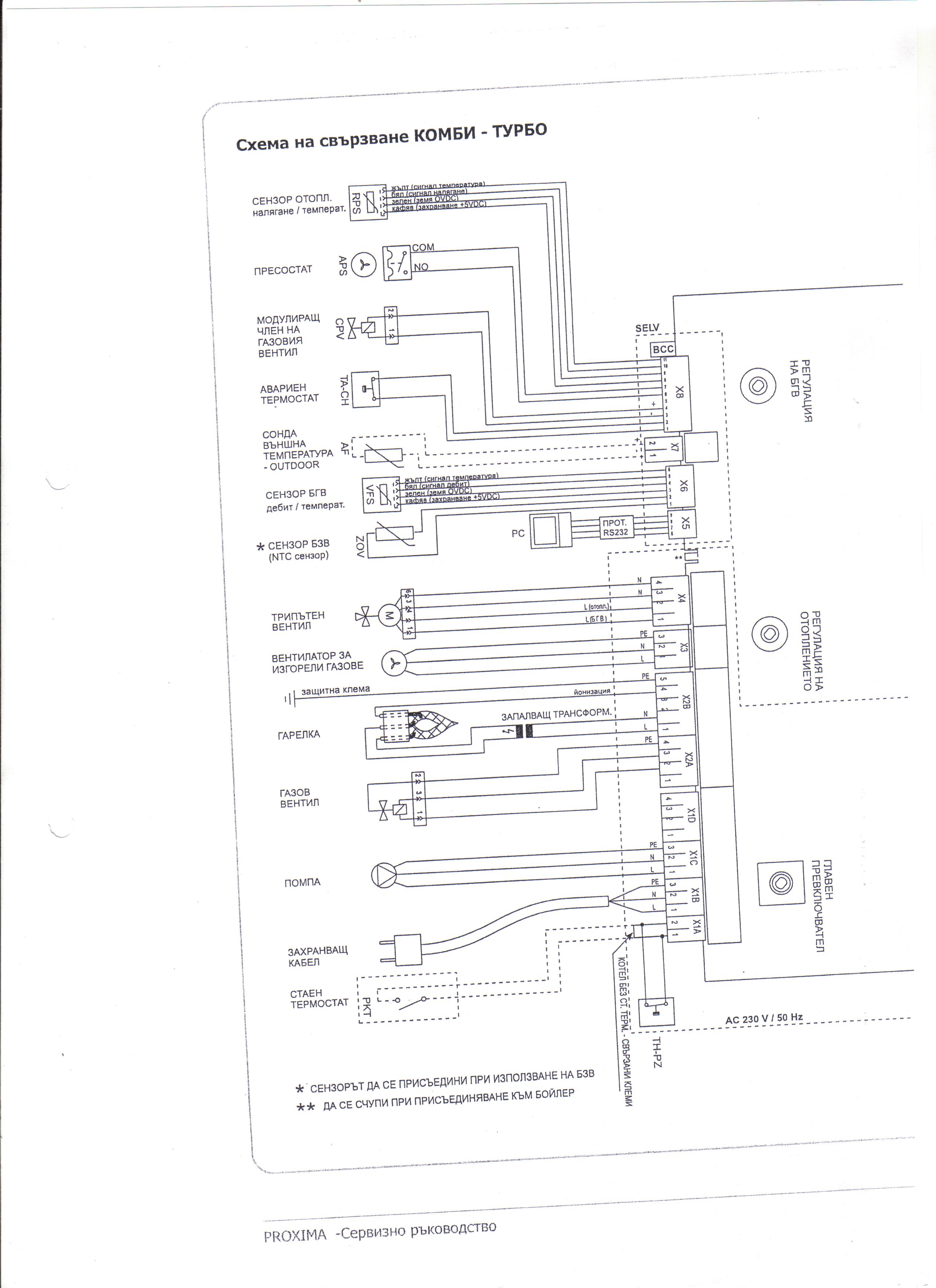
LazarGanev - "Велик майстор"
Заповядай:

Прикачен файл

Схема Мора.jpg

Тема "Отворена система на инсталация с газов котел" | Включи се в дискусията:


Сподели форума:

Бъди информиран. Следвай "Направи сам" във Facebook:

Намери изпълнител и вдъхновения за дома. Следвай MaistorPlus във Facebook: