да вдигна темата отгоре защото от тук се почва всичко.
за съжаление нямам какво да кажа.
мога само да помоля ако има някой да пусне детайли за основи и как да прескочим термомостовете.
Всичко за този вид строителство.
Тани
- модератор
237 мнения в "Изолация на основите"
Tsilkov
- майстор
- Мнения: 2175
Детайлите в сутерена зависят от това което е отгоре.
Ето няколко основни варианта за къщи с които съм се сблъсквал:
1.Сграда със стени от дървен скелет (framework) и пълнеж от вата.При тях се разчита на това че дървото има сравнително ниска ламбда около 0,15 (варира в зависимост от вида дървесина и разположението на жилите) и конструкцията няма да предава голямо количество топлина към основите. Ако искаме бетонов под вместо гредоред върху плочата(има вариант и направо върху терена) се поставят няколко листа екструдиран пенополистирол (10-30 см.) и тогава се прави армирана замазка за плаващ под. Хубавото в този случай е ,че плаващата в изолация замазка е чудесен топлинен акумулатор обиращ дневните/седмични разлики в температурата и греенето.
Същата схема важи и при стоманен скелет, но тук има значение начина на стъпване на емтала.
2.Монолитна сграда от стоманобетон и зидария със стъпване на основите директно върху носещия земен пласт. При този вариант термомоста е неизбежен и целта е намаляване на топлинните загуби от него. Първата стъпка е да се редуцира площта на колоните и шайбите до колкото може (леки конструкции, без излишни подпори, корави и добре поставени шайби). След това отново се прави "плаващ под" както и при дървения скелет и изчезва основната част от загубите (около 70-80% от площа). Остават 15-20% площ от стъпване на зидарията. Ако сте с газобетон или полистирол-бетонни блокчета се приема ,че всичко е ОК ако има плаващ под отделящ замазката от основите на 15-30 см. Ако зидарията е от кухи тухли (те имат голяма топлопроводност в посоката на кухините) се псотавя първи ред от газобетон/полистирол-бетонни блокчета.Ето и картинка:

Този вариант работи доста добре при сравнително "леки" сгради без сутерен , или поне без отопляем сутерен. При проекти за къщи стъпките на колоните и шайбите са няколко процента от площа на етажа и въпреки голямата проводимост на стоманобетона няма как през тях да избягат фрапиращи количества топлина. В допълнение земята под сградата е доста по-топла от външния въздух което намалява загубите с около 50%.
3.Монолитна сграда от стоманобетон и зидария със стъпване на основите върху топлоизолационен материал.Това е варианта които се обсъждаше в миналата тема - най често екструдиран пенополистирол под фундаментна плоча. При него термомоста се прекъсва на 100%. За съжаление това е най-трудния и скъп начин. При някои специфични теренни условия и използваем сутерен/полусутерен няма как без него а може да се окаже и че е най-изгоден (заради избора между скъпо и по-скъпо).
Ето няколко основни варианта за къщи с които съм се сблъсквал:
1.Сграда със стени от дървен скелет (framework) и пълнеж от вата.При тях се разчита на това че дървото има сравнително ниска ламбда около 0,15 (варира в зависимост от вида дървесина и разположението на жилите) и конструкцията няма да предава голямо количество топлина към основите. Ако искаме бетонов под вместо гредоред върху плочата(има вариант и направо върху терена) се поставят няколко листа екструдиран пенополистирол (10-30 см.) и тогава се прави армирана замазка за плаващ под. Хубавото в този случай е ,че плаващата в изолация замазка е чудесен топлинен акумулатор обиращ дневните/седмични разлики в температурата и греенето.
Същата схема важи и при стоманен скелет, но тук има значение начина на стъпване на емтала.
2.Монолитна сграда от стоманобетон и зидария със стъпване на основите директно върху носещия земен пласт. При този вариант термомоста е неизбежен и целта е намаляване на топлинните загуби от него. Първата стъпка е да се редуцира площта на колоните и шайбите до колкото може (леки конструкции, без излишни подпори, корави и добре поставени шайби). След това отново се прави "плаващ под" както и при дървения скелет и изчезва основната част от загубите (около 70-80% от площа). Остават 15-20% площ от стъпване на зидарията. Ако сте с газобетон или полистирол-бетонни блокчета се приема ,че всичко е ОК ако има плаващ под отделящ замазката от основите на 15-30 см. Ако зидарията е от кухи тухли (те имат голяма топлопроводност в посоката на кухините) се псотавя първи ред от газобетон/полистирол-бетонни блокчета.Ето и картинка:

Този вариант работи доста добре при сравнително "леки" сгради без сутерен , или поне без отопляем сутерен. При проекти за къщи стъпките на колоните и шайбите са няколко процента от площа на етажа и въпреки голямата проводимост на стоманобетона няма как през тях да избягат фрапиращи количества топлина. В допълнение земята под сградата е доста по-топла от външния въздух което намалява загубите с около 50%.
3.Монолитна сграда от стоманобетон и зидария със стъпване на основите върху топлоизолационен материал.Това е варианта които се обсъждаше в миналата тема - най често екструдиран пенополистирол под фундаментна плоча. При него термомоста се прекъсва на 100%. За съжаление това е най-трудния и скъп начин. При някои специфични теренни условия и използваем сутерен/полусутерен няма как без него а може да се окаже и че е най-изгоден (заради избора между скъпо и по-скъпо).
Последна промяна от Tsilkov на пет дек 14, 2012 4:42 pm, променено общо 3 пъти.
mindless
- специалист
- Мнения: 207
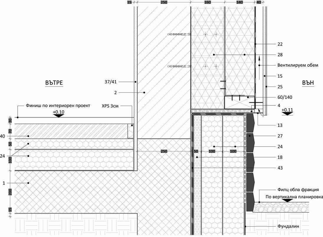
Ето още един детайл за намаляване на термомоста в основата на зидарията от Виенербергер. Реално препоръчват запълването на кухините на първия ред тухли с перлит и твърдят, че по този начин топлопреминаването по вертикалата на тухлата влиза в границите на U= 0.20-0.25.
Като цяло на този линк има доста интересна информация за термомостовете и решения за тях при пасивни и нискоенергийни къщи. Документите са на немски език, но информацията е така предоставена, че без особени проблеми и с малко помощ от гугъл преводача всичко се разбира.
Като цяло на този линк има доста интересна информация за термомостовете и решения за тях при пасивни и нискоенергийни къщи. Документите са на немски език, но информацията е така предоставена, че без особени проблеми и с малко помощ от гугъл преводача всичко се разбира.
schuldiner
- майстор
- Мнения: 2398
Червеното ще да е дренажна мембрана.
На мен ми е чудно защо всеки път трябва да се напомня, че топлоизолацията е ефикасна когато е защитена от влага. Та къде е хидроизолацията?
На мен ми е чудно защо всеки път трябва да се напомня, че топлоизолацията е ефикасна когато е защитена от влага. Та къде е хидроизолацията?
mikeangel
- специалист
- Мнения: 81
Картинката е много интересна. Но колко често се изпълнява?
В една от референтните пасивни къщи не мога да видя този принцип: вижда ми се че няма отделяне на основат от вътрешната стена, но може да не разчитам правилно схемата. Но изследването с термична камера показва, че резултатите са отлични.
Втори въпрос, с някоко варианта за отговор
2. Дървото традиционно има много добри топлоизолационни показатели. Има ли тогава смисъл да се направи едно ниво от дървени талпи или греди и да се зида върху тях?
3. XPS материалът позволява ли директно върху него да се зида? В сайта на един от производителите има няколко вида области на приложение, например ТОП 70, който го дават за особено високи натоварвания: Якост на натиск: ≥ 700 kPa (≥70 t/m2). Интересно какво става когато материалът започне да губи тези си свойства и стените започват да слягат...

В една от референтните пасивни къщи не мога да видя този принцип: вижда ми се че няма отделяне на основат от вътрешната стена, но може да не разчитам правилно схемата. Но изследването с термична камера показва, че резултатите са отлични.
Втори въпрос, с някоко варианта за отговор
Ако зидарията е от кухи тухли (те имат голяма топлопроводност в посоката на кухините) се псотавя първи ред от газобетон/полистирол-бетонни блокчета1. Ако тези блокчета са толкова добри, защо не се строи цялата стена от такива? Такива блокчета от типа итонг ли са или подобни термоизолационни зидарски блокчета (тухли) от ТИВИТ ?
2. Дървото традиционно има много добри топлоизолационни показатели. Има ли тогава смисъл да се направи едно ниво от дървени талпи или греди и да се зида върху тях?
3. XPS материалът позволява ли директно върху него да се зида? В сайта на един от производителите има няколко вида области на приложение, например ТОП 70, който го дават за особено високи натоварвания: Якост на натиск: ≥ 700 kPa (≥70 t/m2). Интересно какво става когато материалът започне да губи тези си свойства и стените започват да слягат...

Tsilkov
- майстор
- Мнения: 2175
mindless написа:Ето още един детайл за намаляване на термомоста в основата на зидарията от Виенербергер.Не се бях сещал че може да се запълнят тухлите, а съм я гледал тази картинка
schuldiner написа: Та къде е хидроизолацията?Не е показана - детайла е принципен и показва топлоизолацията. Според мен червеното оказва допълнителен пласт лепило - ако беше дренажна мембрана щеше да върви на долу и да е подвита
mikeangel написа: 1. Ако тези блокчета са толкова добри, защо не се строи цялата стена от такива?Обикновенно хората предпочитат зидарията им да е от познати и естествени материали - керамика (тухлите) и гипс(мазилката). Нищо не пречи да иззидаш стената от Итонг(газобетон) , Тивит(полистирол бетон) или ICF(стиропорен кофраж).
mikeangel написа: 2. Дървото традиционно има много добри топлоизолационни показатели. Има ли тогава смисъл да се направи едно ниво от дървени талпи или греди и да се зида върху тях?Първо няма да е стабилно! Второ дървото със доста усилия може да докара ламбда около и малко под 0,15W/mK което в сравнение с другите конструктивни материали (бетон, стомана) е страхотен резултат , но спрямо топлоизолационните е "нищо особенно". Даже при дървените скелетни стени дървената конструкция се счита за термомост и се пресмята(8180 беше пускал една интересна статия за оптимизация на скелетните стени)
mikeangel написа: 3. XPS материалът позволява ли директно върху него да се зида?Не!XPS-а ще издържи теглото, но няма как да залепиш стабилно зидарията за него.
Детайла които си показал е много неудачен от към стъпване на зида - освен ,че не са прекъснали термомоста на зидарията в зоната на "плаващия под" ами и са го подсилили като са си играли да излеят бетонно прагче
Тема "Изолация на основите" | Включи се в дискусията:
Сподели форума:
Бъди информиран. Следвай "Направи сам" във Facebook:
Намери изпълнител и вдъхновения за дома. Следвай MaistorPlus във Facebook:
Имаш нужда от подходящ професионалист за дома?
- Преустройство, ремонт и реновиране
- ↳ Вашите ремонти
- ↳ Кухня
- ↳ Баня
- ↳ Дневна
- ↳ Спалня
- ↳ Детска
- ↳ Градина
- ↳ Коридор
- ↳ Тераса и балкон
- Направи сам
- ↳ Направи сам
- ↳ Ремонтирай сам
- ↳ Къде е по-евтино?
- ↳ Дърводелство
- ↳ Ел. инструменти
- ↳ Металообработване
- ↳ Конкурс "Направи сам 2012"
- Строителство
- ↳ Всичко за вилата
- ↳ Къщи
- ↳ Саниране
- ↳ Хидроизолация
- ↳ Пасивни и нискоенергийни сгради
- Сухо строителство
- ↳ Окачени тавани
- ↳ Преградни стени и предстенни обшивки
- ↳ Сухи и повдигнати подове
- ↳ Декоративни елементи - колони, трегери, сводове и др.
- ↳ Всичко за гипскартона и гипсфазера
- Въпроси и Отговори
- ↳ Полезни съвети
- ↳ Автомобили
- ↳ Партньори
- ↳ Боядисване и Декориране
- ↳ Вентилация, климатици и термопомпи
- ↳ Водоснабдяване и канализация.
- ↳ Всичко за ремонта
- ↳ Електротехника
- ↳ Отопление
- ↳ Газификация
- ↳ Електроника и Схеми
- ↳ Газобетон
- ↳ От всичко по малко
- ↳ Компютри и периферия
- ↳ Уеб дизайн, PHP, MySQL, JavaScript, HTML..
- ↳ Мобилни устройства, GSM-и
- ↳ Нека се запознаем
- ↳ Recycle Bin
- Статии
- ↳ Практични решения
- ↳ Качване на снимки
- ↳ Какви статии искате?
- ↳ Готварство, туршии и зимнина
- ↳ Отмора и шеги
- ↳ От нищо нещо
- ↳ Не е за вярване
- ↳ Литература
- ↳ Връзки към Интересни сайтове
- Магазин
- ↳ Препоръки и Мнения за он-лайн магазина
- ↳ Крадeни инструменти !!!
