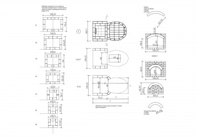
Под ББК-юто трябва да имаш добра основа, ако трябва поразкопай до здраво и после камъни, арматура и бетон. На мен височината на плота е един метър заедно с горната плоча и първия ред огнеупорни тухли. Ето схемата, по която съм го правил

shema.jpg (19.91 KиБ) Видяна 9137 пъти
ако не се увеличава с кликване върху нея погледни 3-та стр. от моята тема. Частта с пещта я игнорирай щом няма да си правиш пещ. За шамота- на 5 кг торба слагах 300-400 гр. сол
и разбърквам като теракол. Не се притеснявай ако на другия ден на пипане шамота е мек, съхне и втвърдява бавно. За сега това, ако има нещо пак питай, но една забележка
- моята тема е 20 стр. и трябва да я четеш страница по страница и да отделяш нужното.... щото има и печени мръвки,и варене на ракия, веселби и.... те така 
Прикачен файл:
shema.jpg (19.91 KиБ) Видяна 9137 пъти






