Здравейте! От няколко месеца се опитвам да изчета всичко във форума, за да придобия поне бегли познания по...строителната терминология...
.
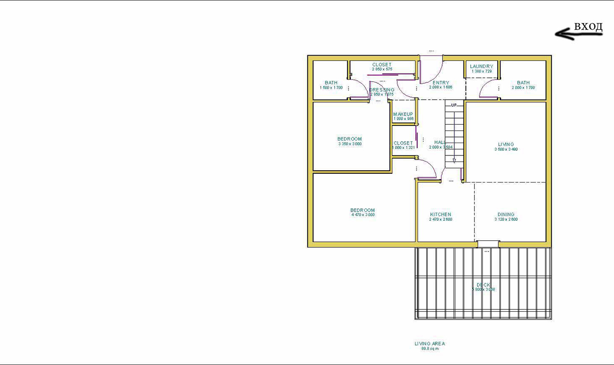
Парцелът е 450кв.м и къщата се опитах да я позиционирам в парцела, така както е посочено на снимката. Посоките са като на карта, парцелът е вътрешен - достъпът е "път" с широчина 3.3м (идващ от изток), дълъг около 20м и се ползва само за достъп до този парцел.
Искам един етаж и подпокривно със 140см надзид и двускатен покрив. Знам, че се получи "трафопост", но целта ми е функционалност и максимално евтино/лесно строителство.
Не съм се консултирал с архитект (то навярно и се вижда) и приемам всякакви критики, препоръки, мнения
.
P.S. Севрната страна на парцела граничи с висока 3м тухлена ограда и смятах там да направя навес, отворен на изток и запад, който да ползвам като гараж.
Чудя се и къде да сложа камината - не толкова за отопление, колкото за уют, но не планирах място за нея...
Парцелът е 450кв.м и къщата се опитах да я позиционирам в парцела, така както е посочено на снимката. Посоките са като на карта, парцелът е вътрешен - достъпът е "път" с широчина 3.3м (идващ от изток), дълъг около 20м и се ползва само за достъп до този парцел.
Искам един етаж и подпокривно със 140см надзид и двускатен покрив. Знам, че се получи "трафопост", но целта ми е функционалност и максимално евтино/лесно строителство.
Не съм се консултирал с архитект (то навярно и се вижда) и приемам всякакви критики, препоръки, мнения
P.S. Севрната страна на парцела граничи с висока 3м тухлена ограда и смятах там да направя навес, отворен на изток и запад, който да ползвам като гараж.
Чудя се и къде да сложа камината - не толкова за отопление, колкото за уют, но не планирах място за нея...
