Започна да си правя изолация с вата и гипсокартон на една външна стена и тавана, но се появиха няколко въпроса.
1. От едната страна на предстенната ми обшивка е комина. Вътрешния ъгъл между гипсокартона и комина с какво да го запълня? Кой вариант да избера хартиена лента и фугенфюлер или акрилен уплътнител
2. С какво да реализирам финишната шпакловка? Досега съм шпакловал само с колор кит, но незнам дали може да се използва при гипсокартон и дали изобщо се произвежда, защото не съм го срещал.
Някаде четох че за финишно покритие се ползва сатен гипс, но не съм работил с него и се опасявам да не стяга много бързо.
Стените ще се боядисват, ако е от значение. Какво финишно покритие ще ми препоръчате?
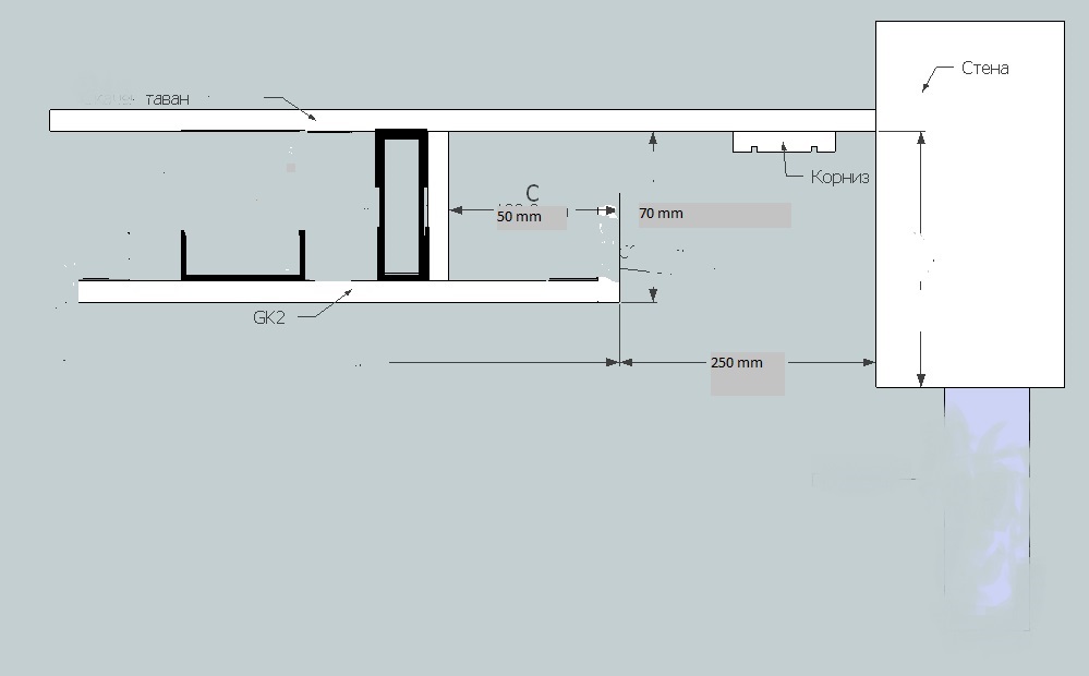
3. Окачения таван който ще е на едно ниво. От три страни ще е залепен за стената, а от към прозореца мисля да реализирам следното нещо
shema.jpg (39.78 KиБ) Видяна 4032 пъти
сглобката в края ще я реализирам с два UD профила единият захванат за тавана с анкери, а другият ще се захване за първият с копчета и къси CD-та които ще влизат в двата UD профила.
На какво разстояние трябва да поставя най близкото CD до тази конструкцийка? 50 см ще са много ли?
И при такава конструкция ще има ли опасност от провисване?
1. От едната страна на предстенната ми обшивка е комина. Вътрешния ъгъл между гипсокартона и комина с какво да го запълня? Кой вариант да избера хартиена лента и фугенфюлер или акрилен уплътнител
2. С какво да реализирам финишната шпакловка? Досега съм шпакловал само с колор кит, но незнам дали може да се използва при гипсокартон и дали изобщо се произвежда, защото не съм го срещал.
Някаде четох че за финишно покритие се ползва сатен гипс, но не съм работил с него и се опасявам да не стяга много бързо.
Стените ще се боядисват, ако е от значение. Какво финишно покритие ще ми препоръчате?
3. Окачения таван който ще е на едно ниво. От три страни ще е залепен за стената, а от към прозореца мисля да реализирам следното нещо
Прикачен файл:
shema.jpg (39.78 KиБ) Видяна 4032 пъти
На какво разстояние трябва да поставя най близкото CD до тази конструкцийка? 50 см ще са много ли?
И при такава конструкция ще има ли опасност от провисване?
