Здравейте,
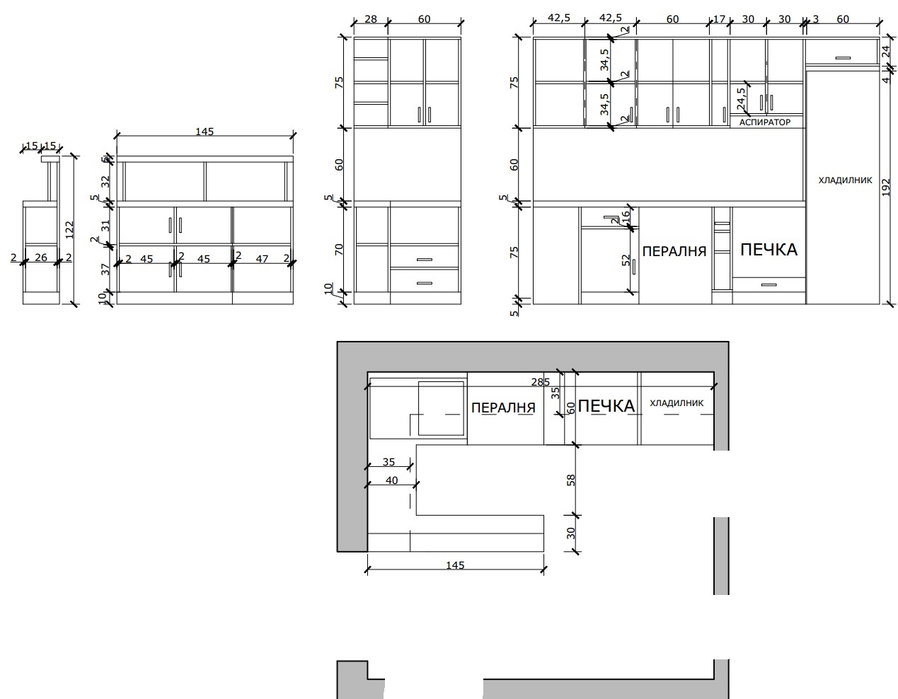
предстои ми да създам първата си кухня, за което се надявам да ударите едно рамо. Направих малко аматьорски проект в архикад, за да стане ясно г/д за какво става въпрос. Вратичките няма да са стъклени, а плътни, но сложих тези, че ми бяха под ръка. Фурната и плота са вградени, а пералнята няма да се вгражда. Отвора срещу пътеката на долния ред шкафове съм го оставил за микровълнова. На последната схема където съм писал 2, реално си е 18мм или евентуално 16, но не знам дали си заслужава да е по-малкия размер... С този проект смятам да посетя фирма като Съливер, където да ми разкроят, нарежат, кантират и разпробият плоскостите. Тук също имам няколко въпроса свързани с подобни фирми. Този проект може ли да послужи за размери или те си правят нов проект в друга програма за което се заплаща допълнително? Плота и гърба от там ли да ги взема /качествени ли са?/ или от др място? Вратичките при тях ли да ги правя или да ги взимам готови от магазини като Модекс /разлика в цените?/ ? Кухнята е правя за майка ми, затова и се хванах, че там, ако има критика ще е временно, а и мога да използвам по-бюджетни материали, а не масив или МДФ
)) Механизми ще взема сигурно на Хефеле. Пералнята и хладилника ги имам, както и доста добра печка със стъклокерамични котлони, но видиш ли тя не е вградена и не ставало ... Като цена не знам какво ще ми излезне, може и да е по-скъпа от модулните по големите магазини, ама като съм се хванал ще играя хорото до края

5.jpg (102.74 KиБ) Видяна 5839 пъти
предстои ми да създам първата си кухня, за което се надявам да ударите едно рамо. Направих малко аматьорски проект в архикад, за да стане ясно г/д за какво става въпрос. Вратичките няма да са стъклени, а плътни, но сложих тези, че ми бяха под ръка. Фурната и плота са вградени, а пералнята няма да се вгражда. Отвора срещу пътеката на долния ред шкафове съм го оставил за микровълнова. На последната схема където съм писал 2, реално си е 18мм или евентуално 16, но не знам дали си заслужава да е по-малкия размер... С този проект смятам да посетя фирма като Съливер, където да ми разкроят, нарежат, кантират и разпробият плоскостите. Тук също имам няколко въпроса свързани с подобни фирми. Този проект може ли да послужи за размери или те си правят нов проект в друга програма за което се заплаща допълнително? Плота и гърба от там ли да ги взема /качествени ли са?/ или от др място? Вратичките при тях ли да ги правя или да ги взимам готови от магазини като Модекс /разлика в цените?/ ? Кухнята е правя за майка ми, затова и се хванах, че там, ако има критика ще е временно, а и мога да използвам по-бюджетни материали, а не масив или МДФ
Прикачен файл:
5.jpg (102.74 KиБ) Видяна 5839 пъти
