Здравейте!
Да се представя, казвам се Николай и искам да започна с благодарност за всичко изписано във форума.
От доста време го чета, понеже съм от мераклиите, които искат да се научат на всичко и да си направят всичко. С доста неща се справих в апартамента си, но се развивваме и вече сме на идея КЪЩА.
Изчетах всички теми до тук и много ми хареса, че има доста зевзеци, които пораждат сериозни спорове. Аз съм твърдо на мнение, че в спора (аргументирания спор) излиза истината, така че искам и аз да се подложа на това. Пък да видим какво ще стане
Купихме си парцел във Варна, изложения ЮГ, лека денивелация около 2 метра за 30 метра дължина на парцела.
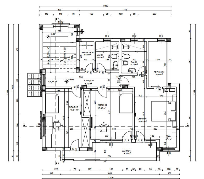
Качвам снимки на идейния проект. Дано стане ясно, първия етаж е на две нива. така се избягва вкопаването на задната част на къщата + по-висок хол/кухня/трапезария за да не се получи като тунел. отбелязани са и колоните(вече има становище от конструктор).
Ще бъде на ивични основи, вкопани 1 метър. Покрива ще е плосък, използваем. Гледка към града и морето, идеална за барбекю и лятна тераса / банкетна. Като гледам какви пари се дават за скатни покриви, смятам, че ще успея да я изолирам достатъчно добре, да нямам проблеми (известно време).
Искам да се утоплявам с термопомпа и подово, защото във Варна вали сняг на 2 години - веднъж. Температурите са си височки....абе всички предпоставки за термопомпа
Очаквам най-жестоките ви критики, от които да извлека полза
Поздрави и респект към всички споделящи опита и знанията си!
Да се представя, казвам се Николай и искам да започна с благодарност за всичко изписано във форума.
От доста време го чета, понеже съм от мераклиите, които искат да се научат на всичко и да си направят всичко. С доста неща се справих в апартамента си, но се развивваме и вече сме на идея КЪЩА.
Изчетах всички теми до тук и много ми хареса, че има доста зевзеци, които пораждат сериозни спорове. Аз съм твърдо на мнение, че в спора (аргументирания спор) излиза истината, така че искам и аз да се подложа на това. Пък да видим какво ще стане
Купихме си парцел във Варна, изложения ЮГ, лека денивелация около 2 метра за 30 метра дължина на парцела.
Качвам снимки на идейния проект. Дано стане ясно, първия етаж е на две нива. така се избягва вкопаването на задната част на къщата + по-висок хол/кухня/трапезария за да не се получи като тунел. отбелязани са и колоните(вече има становище от конструктор).
Ще бъде на ивични основи, вкопани 1 метър. Покрива ще е плосък, използваем. Гледка към града и морето, идеална за барбекю и лятна тераса / банкетна. Като гледам какви пари се дават за скатни покриви, смятам, че ще успея да я изолирам достатъчно добре, да нямам проблеми (известно време).
Искам да се утоплявам с термопомпа и подово, защото във Варна вали сняг на 2 години - веднъж. Температурите са си височки....абе всички предпоставки за термопомпа
Очаквам най-жестоките ви критики, от които да извлека полза
Поздрави и респект към всички споделящи опита и знанията си!

