Здравейте. Разполагам с външно тяло на климатик General, което бих искал да го направя на термопомпа за подгряване на вода. С фреоновата част мисля, че ще се справя, но имам проблем с електрониката. Имам само външното тяло, електроникава във вътрешното тяло я нямам. Когато го взех климатика се надявах тъй като е стар и е конвекционален да не му е особено сложна платката, но уви...за мен е сложна. Надявам се вие да помогнете.
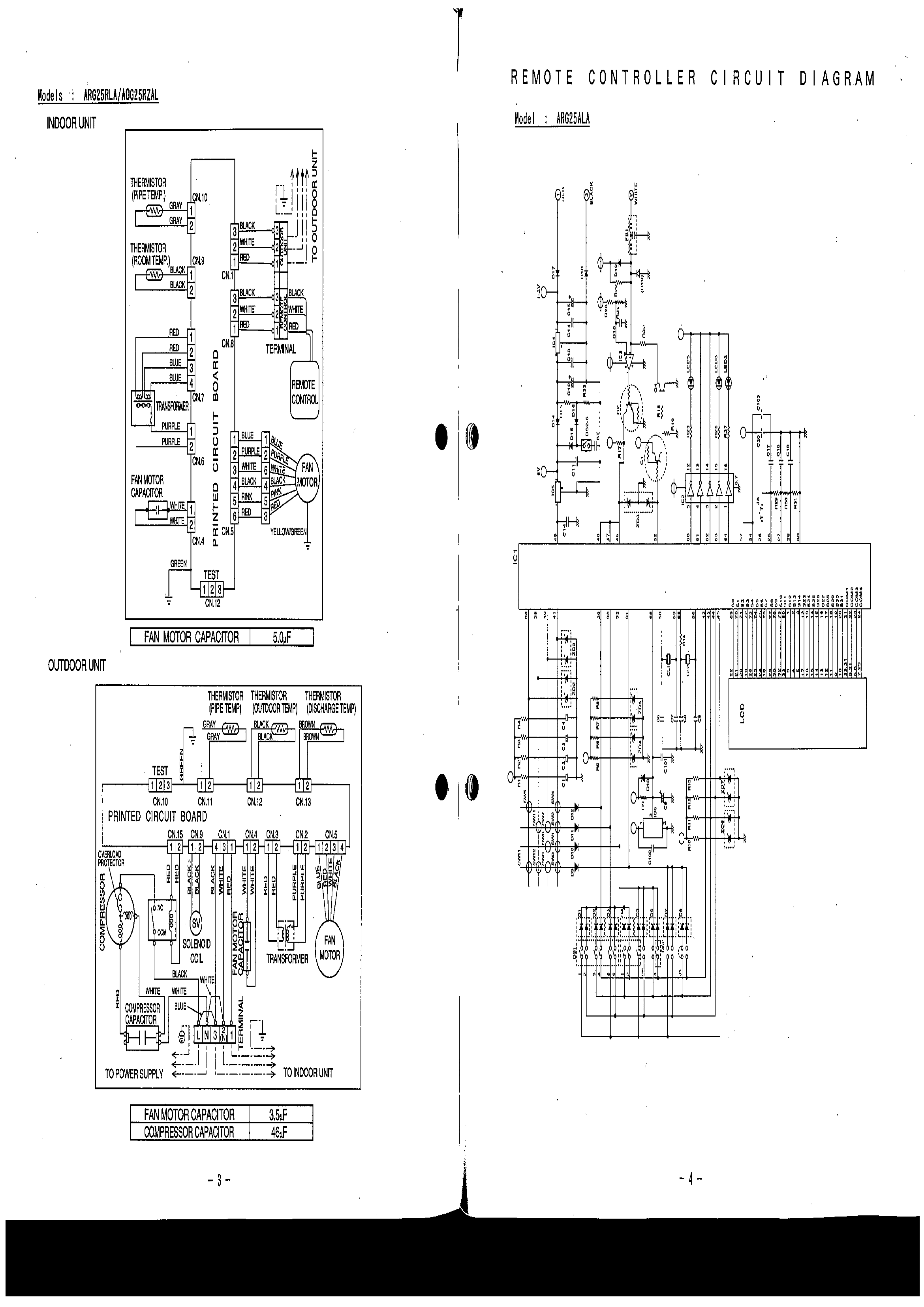
Климатика е модел AOG25RZAL. Надявам се да се вижда достатъчно ясно от схемите които успях да намеря. Втората схема е схемата на самата платка. Има ли как да се излъже, че е вързана към вътрешното тяло и да тръгне климатика да работи.
Климатика е модел AOG25RZAL. Надявам се да се вижда достатъчно ясно от схемите които успях да намеря. Втората схема е схемата на самата платка. Има ли как да се излъже, че е вързана към вътрешното тяло и да тръгне климатика да работи.

