Малко раздвижване по темата. Според вас добра идея ли е фурната да иде най - в ляво и по този начин да има две колони (за хладилника и за фурната) и от там нататък да започва плота. Идеята е да има по - голям работен плот. Минуса е, че така ще загубим целия килер, който бяхме предвидили в най - лявата част на кухнята и другото е че няма да може вратата на верандата и фурната да са отворени едновременно. Не знам кое е по - ценно в една кухня? Мястото за съхранение или голям работен плот. Предложих на жената фурната да е долу и котлоните над нея и голям плот до тях, но тя не ще и да чуе за фурна долу. Няма да имаме микровълнова и смята фурната да се използва много и за притопляне и за готвене.

Мечтата на всяка домакиня
boqnkov
- специалист
40 мнения в "Мнение за разчупена кухня"
swenstyle
- специалист
- Мнения: 67
кухнята поръчана ли е?
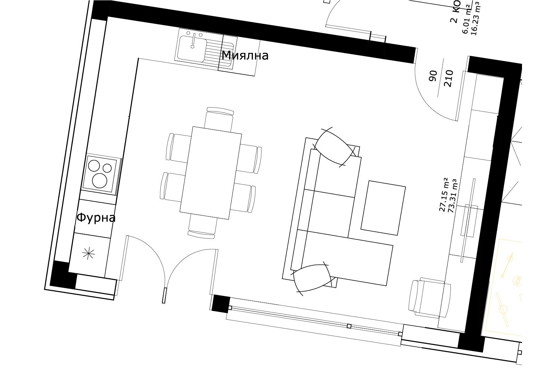
чета темата и гледам че нещата са се поизбистрили, но са изникнали някой компромиси, сега е момента за последно по генерално преподреждане, което или ще е по категорично по добро или категорично ще затвърди сегашното, та може ли картинка на която се вижда цялата стая, от къде се влиза и от къде минават водата и канала?, къде е ТВ и къде са прозорците?
чета темата и гледам че нещата са се поизбистрили, но са изникнали някой компромиси, сега е момента за последно по генерално преподреждане, което или ще е по категорично по добро или категорично ще затвърди сегашното, та може ли картинка на която се вижда цялата стая, от къде се влиза и от къде минават водата и канала?, къде е ТВ и къде са прозорците?
Тема "Мнение за разчупена кухня" | Включи се в дискусията:
Сподели форума:
Бъди информиран. Следвай "Направи сам" във Facebook:
Намери изпълнител и вдъхновения за дома. Следвай MaistorPlus във Facebook:
Имаш нужда от подходящ професионалист за дома?
- Преустройство, ремонт и реновиране
- ↳ Вашите ремонти
- ↳ Кухня
- ↳ Баня
- ↳ Дневна
- ↳ Спалня
- ↳ Детска
- ↳ Градина
- ↳ Коридор
- ↳ Тераса и балкон
- Направи сам
- ↳ Направи сам
- ↳ Ремонтирай сам
- ↳ Къде е по-евтино?
- ↳ Дърводелство
- ↳ Ел. инструменти
- ↳ Металообработване
- ↳ Конкурс "Направи сам 2012"
- Строителство
- ↳ Всичко за вилата
- ↳ Къщи
- ↳ Саниране
- ↳ Хидроизолация
- ↳ Пасивни и нискоенергийни сгради
- Сухо строителство
- ↳ Окачени тавани
- ↳ Преградни стени и предстенни обшивки
- ↳ Сухи и повдигнати подове
- ↳ Декоративни елементи - колони, трегери, сводове и др.
- ↳ Всичко за гипскартона и гипсфазера
- Въпроси и Отговори
- ↳ Полезни съвети
- ↳ Автомобили
- ↳ Партньори
- ↳ Боядисване и Декориране
- ↳ Вентилация, климатици и термопомпи
- ↳ Водоснабдяване и канализация.
- ↳ Всичко за ремонта
- ↳ Електротехника
- ↳ Отопление
- ↳ Газификация
- ↳ Електроника и Схеми
- ↳ Газобетон
- ↳ От всичко по малко
- ↳ Компютри и периферия
- ↳ Уеб дизайн, PHP, MySQL, JavaScript, HTML..
- ↳ Мобилни устройства, GSM-и
- ↳ Нека се запознаем
- ↳ Recycle Bin
- Статии
- ↳ Практични решения
- ↳ Качване на снимки
- ↳ Какви статии искате?
- ↳ Готварство, туршии и зимнина
- ↳ Отмора и шеги
- ↳ От нищо нещо
- ↳ Не е за вярване
- ↳ Литература
- ↳ Връзки към Интересни сайтове
- Магазин
- ↳ Препоръки и Мнения за он-лайн магазина
- ↳ Крадeни инструменти !!!
