Здравейте, нови сме във форума и ще се радваме на съвети от Вас.
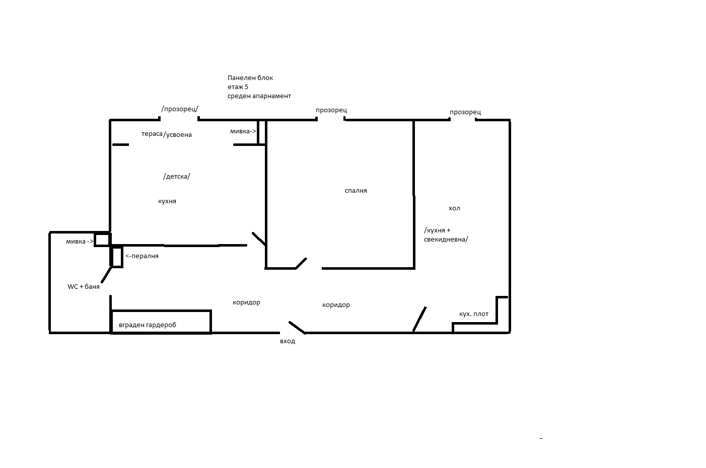
Предстои ни ремонт на апартамента, който е двустаен и искаме да преместим кухнята в хола. Изчетох доста статии, но в нито една не видях подобно разпределение като на нашия апартамент. Двустаен е на 5 етаж и е панел. прикачвам скица за да може по лесно да се дискутира. Идеята ни е да направим сегашната кухня детска стая, а хола да се преустрои на кухня + всекидневна, но веднага изникна най-големия поне за мен проблем, а именно прекарването на мръсен канал... Ще се радваме да помогнете с мнения и съвети. Благодарим предварително

скица
razpredelenie apartament.png (31.76 KиБ) Видяна 3871 пъти
Предстои ни ремонт на апартамента, който е двустаен и искаме да преместим кухнята в хола. Изчетох доста статии, но в нито една не видях подобно разпределение като на нашия апартамент. Двустаен е на 5 етаж и е панел. прикачвам скица за да може по лесно да се дискутира. Идеята ни е да направим сегашната кухня детска стая, а хола да се преустрои на кухня + всекидневна, но веднага изникна най-големия поне за мен проблем, а именно прекарването на мръсен канал... Ще се радваме да помогнете с мнения и съвети. Благодарим предварително
Прикачен файл:
скица
razpredelenie apartament.png (31.76 KиБ) Видяна 3871 пъти



