Привет, майстори!
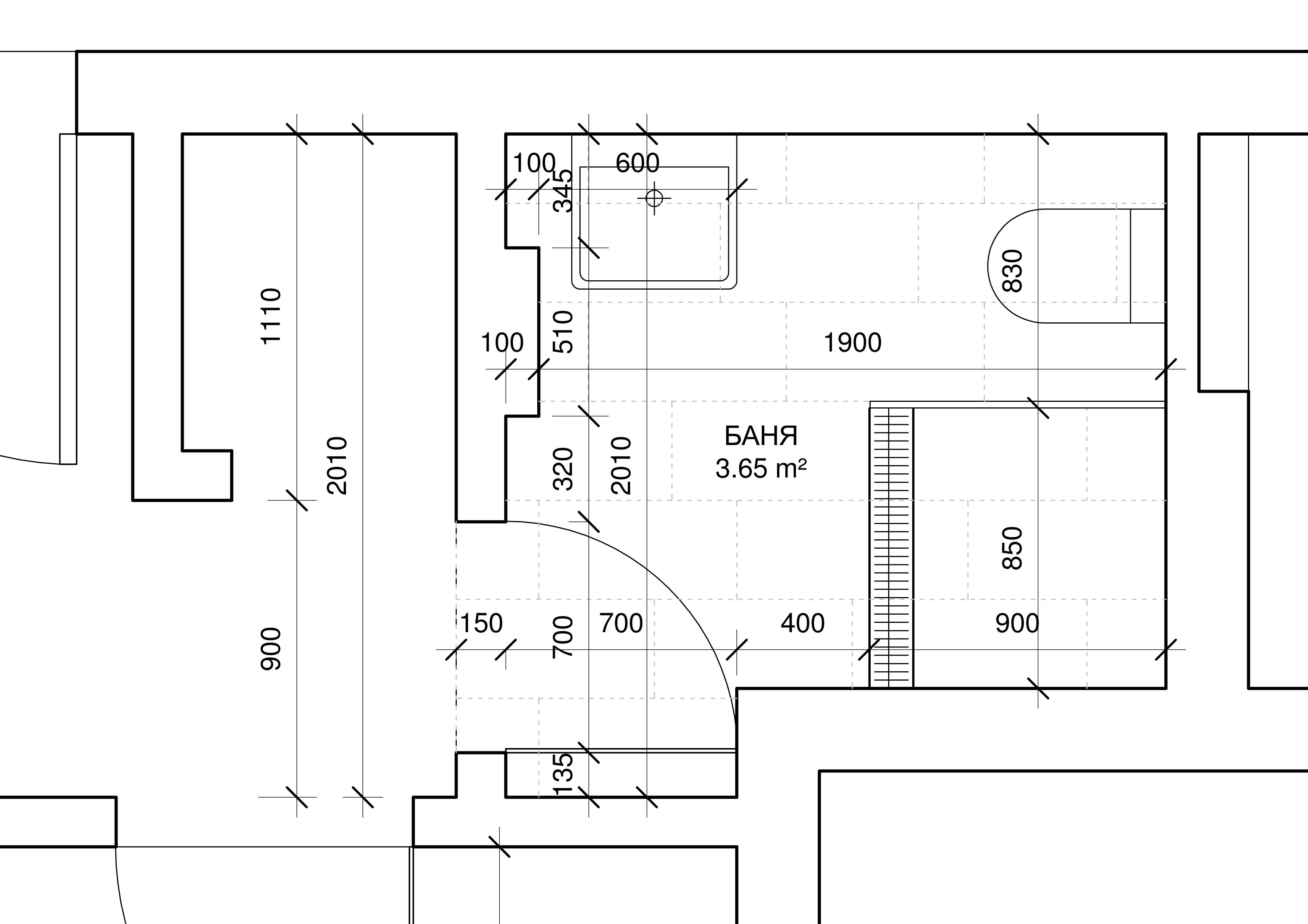
Предстои ми завършване на малка баня в нов апартамент. Сега проектирам и започваме, та имам нужда от няколко практически съвета.
Не съм голям фен на цялостното "оплочкване" на стените. Харесвам семпли и ефективни решения.
Пода е гранитогрес, зоната на душа е ограничена от две стени, стъклена преграда и линеен сифон от свободната страна. Въпросът е, няма ли сравнително лесен начин за третиране на тези две стени, така че да станат хидрофобни. Нещо като гладка циментова шпакловка, запечатана с нещо отгоре (няма да казвам "водно стъкло" за да не си изкарам боя : )
Естествено с хидроизолация отдолу и лента по ъглите. Даже си представях релефна повърхност на вертикални ивици (като изтеглено с гребен, но там съмненията са ми много - как ще се почиства и колко прецизно може да се изпълни)
Останалите стени извън зоната на душа (и тавана) - над цокъла шпакловка и влагоустойчива боя. Трябва ли шпакловката да е специална заради влагата?
Гледам, че хората берат големи ядове с венециански мазилки и т.н. Опасявам се да не стане уж за по-просто да си навлека белята.
За съжаление прозорец няма. За проветрение мисля як вентилатор, но вратата ще е стъклена, да не ми бълбука и на мен сифона 

сегашно положение
16754018_10212144674320652_1141072587_n.jpg (67.5 KиБ) Видяна 8526 пъти
Приемам всякакви конструктивни (и архитектурни:) мнения
Черпя с виртуална домашна бира
 
								
															
																															
																								
															Предстои ми завършване на малка баня в нов апартамент. Сега проектирам и започваме, та имам нужда от няколко практически съвета.
Не съм голям фен на цялостното "оплочкване" на стените. Харесвам семпли и ефективни решения.
Пода е гранитогрес, зоната на душа е ограничена от две стени, стъклена преграда и линеен сифон от свободната страна. Въпросът е, няма ли сравнително лесен начин за третиране на тези две стени, така че да станат хидрофобни. Нещо като гладка циментова шпакловка, запечатана с нещо отгоре (няма да казвам "водно стъкло" за да не си изкарам боя : )
Естествено с хидроизолация отдолу и лента по ъглите. Даже си представях релефна повърхност на вертикални ивици (като изтеглено с гребен, но там съмненията са ми много - как ще се почиства и колко прецизно може да се изпълни)
Останалите стени извън зоната на душа (и тавана) - над цокъла шпакловка и влагоустойчива боя. Трябва ли шпакловката да е специална заради влагата?
Гледам, че хората берат големи ядове с венециански мазилки и т.н. Опасявам се да не стане уж за по-просто да си навлека белята.
За съжаление прозорец няма. За проветрение мисля як вентилатор, но вратата ще е стъклена, да не ми бълбука и на мен сифона
 
Прикачен файл:
			
		
					сегашно положение
16754018_10212144674320652_1141072587_n.jpg (67.5 KиБ) Видяна 8526 пъти
Черпя с виртуална домашна бира

 
  
		
			
 топлата вода
  топлата вода 

 Ще се обърна към фирмата за подходящ продукт.
 Ще се обърна към фирмата за подходящ продукт.