Сезона върви към своя край  
  макар и бавно, нещата при мене отиват към 3,5т пелети, камината е Алфа плам коммо 21, за 70кв.м. без никаква изолация с 5камерна ПВЦ дограма 32мм двоен стъклопакет, на втория етаж съм като под мен няма никой/*пода ми е дюшаме със сгур и върху него ламинат, над мен не изолиран таван , къщата северно изложение и калкан на юг  
  
  
 . Мисля да по направя малко подобрение разбира съобразени със бюджета ми! Мисля да направя всичко тавани отвътре с картон и каменна вата /без банята че е след ремонт/ Тук искам да попитам понеже ремонта ми е скорошен може ли да изолирам плочата на тавана отгоре и да има някакъв ефект а вътрешната да е след година две!? Имам присвоена тераса която е гардеробна/там е най-студено нея предвиждам да я опаковам отвсякъде с 10см стериопор+фибран на плочата/таван и е изолиран/ както и външната стена на спалнята в съседство на нея /така 1 от 3 ми фасади ще и с външна. Цялата къща/етаж/ мисля да опаковам догодина!  Мисля да поставя Т глави на радиаторите за по добър баланс на системата и трипътен винтил отзад на камината. Дайте съвети добре ли съм се насочил и правилно ли разсъждавам. Пролетта мисля за основно почистване на камината и да сложа турболатори че сърбите са сложили май само някакви пружини от които ефекта не е голям 110-180гр на изгорелите газове. Мисля и да сменя комина , този който ползвах сега почва от мазето и стига до билото, като го ползвам само аз, но имам друг до него дето си почва от моя етаж ? 
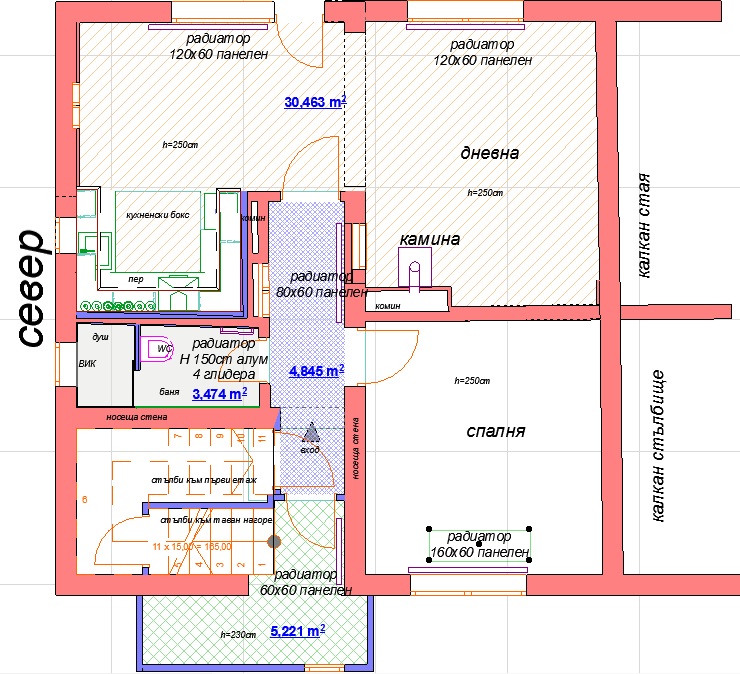
  Ще се радвам на една добра дискусия! Прилагам скица 
								
																	
									
															
																															
																								
															Ако таванът ти е бетонова плоча задължително постави изолационен материал. Едни 5 см стиропор, "фибран" или каменна минерална вата намаляват коефициента на топлопреминаване около 4 пъти. Има случаи на цялостна външна изолация, но без да е работено върху таваните. Ефект не особено голям. След завършването и на плочата вече ефектът се проявява в голяма степен. Прави си изводите.
Трипътен антикондензационен вентил може да вземеш с пряко действие на 55°. Ще можеш да задаваш температура на водата от 56-57 нагоре. Това ти е минимумът. Може да си вземеш и такъв на 50 градуса. Ще ти кажат малко е, трябва на 60 да е. Е, аз бих взел 50, като разбира се съобразя с това на каква температура на водата работя. Тогава ще може да се грееш и с 52-53 градуса вода.
Термостатични глави на радиаторите задължително. Аз ползвам хъниуел механични, модел тера 4 мисля че бяха. Много са точни - поддържат абсолютно постоянна зададената температура. Изцяло безшумни. Оставяш отворена точка, примерно бойлер и това е.
Иначе за изолирането и аз имам въпроси пък нямам опит и тук със сигурност не мога да съм полезен.
								
															
																															
																								
															