Здравейте и предварително се извинявам за темата, но ми предстой избор, а нищо не разбрам
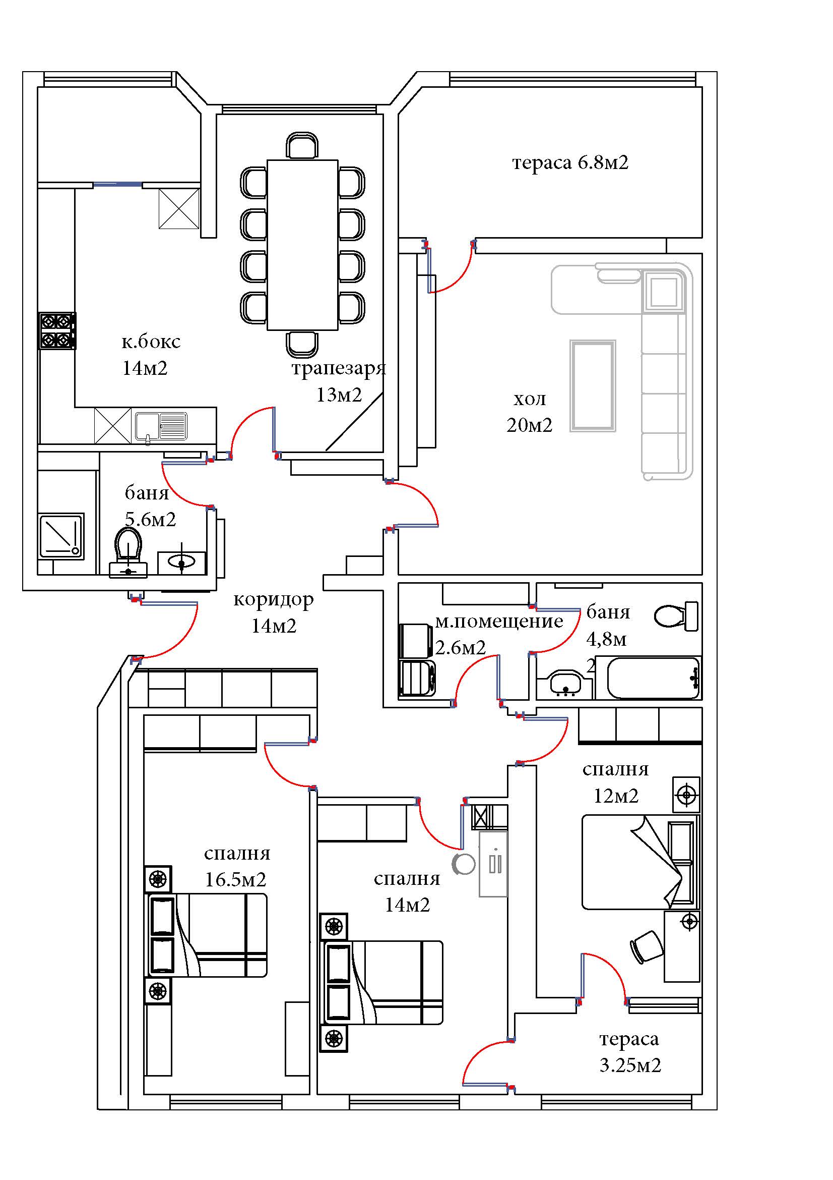
апартаментът е изток/запад около 130м2
1ви етаж в тухлена сграда, отвън е слагана изолация 7см стиропор на източното изложение, а на запад е 5см.
пода е с 5см фибран, а в момента се слага гипсокартон с 5см каменна вата навсякъде, дограмата е алуминиева слагана преди 10г.
Бих искал съвет за размери на радиаторите по колко ребра да са в стайте и какъв котел би бил подходящ като мощност и марка.
газта ще се използва както за отопление така и за готвене и топла вода
апартаментът е изток/запад около 130м2
1ви етаж в тухлена сграда, отвън е слагана изолация 7см стиропор на източното изложение, а на запад е 5см.
пода е с 5см фибран, а в момента се слага гипсокартон с 5см каменна вата навсякъде, дограмата е алуминиева слагана преди 10г.
Бих искал съвет за размери на радиаторите по колко ребра да са в стайте и какъв котел би бил подходящ като мощност и марка.
газта ще се използва както за отопление така и за готвене и топла вода
