• 1
  • 2
Място за идеи и желания за проектиране и изработка на готови проекти.
joro_tsanev - специалист
Здравейте,
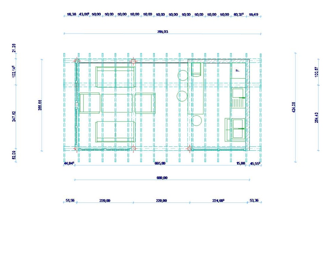
започвам изграждането на градинско барбекю. Направил съм си проект и ще действам по него. Първият въпрос ми е с какво е най-подходящо да направя захващането на отделните елементи един към друг, дали с планки, дали само с винтове, дали с нещо друго. Елементите ще са със следните размери:
колони,билна столица,подложни столици 15/15 (след рендосването ще са по-малки), ребрата са 10/5. Приемам и градивна критика естествено.

Прикачен файл

bbq new plan.jpg

Прикачен файл

bbq new.jpg
bbq new.jpg (95.5 KиБ) Видяна 3083 пъти
Вадим Владимиров - специалист
Няколко въпроса. С какво ще се покрива? Задната стена на границата на имота ли е? Питам, защото отводняването трябва да е във Вашия имот.
Относно крепежите. Винтове за дърво и пирони ще свършат перфектна работа. Имам доста снимков материал, но е хубаво да знам какво е покритието.
joro_tsanev - специалист
На границата на имота е, но водата ще е уловена с улук в резервоар, а ще е покрито с битумни керемиди.
Вадим Владимиров - специалист
Прикачен файл:
SAM_4621.jpg
Прикачен файл:
SAM_4628.jpg
Прикачен файл:
SAM_4631.jpg
Прикачен файл:
SAM_4633.jpg
Прикачен файл:
SAM_4638.jpg
Вадим Владимиров - специалист
Прикачен файл:
SAM_4639.jpg
SAM_4639.jpg (106.81 KиБ) Видяна 3009 пъти
Прикачен файл:
SAM_4650.jpg
Прикачен файл:
SAM_4655.jpg
Прикачен файл:
SAM_4657.jpg
Прикачен файл:
SAM_4661.jpg
SAM_4661.jpg (78.14 KиБ) Видяна 3009 пъти
Вадим Владимиров - специалист
Прикачен файл:
SAM_4665.jpg
SAM_4665.jpg (114.39 KиБ) Видяна 3008 пъти
Прикачен файл:
SAM_4669.jpg
SAM_4669.jpg (110.47 KиБ) Видяна 3008 пъти
Прикачен файл:
SAM_4675.jpg
Прикачен файл:
SAM_4676.jpg
Прикачен файл:
SAM_4679.jpg
Вадим Владимиров - специалист
Прикачен файл:
SAM_4682.jpg
Прикачен файл:
SAM_4683.jpg
Прикачен файл:
SAM_4709.jpg
Прикачен файл:
SAM_4713.jpg
Прикачен файл:
SAM_4716.jpg
Вадим Владимиров - специалист
Прикачен файл:
SAM_4717.jpg
Прикачен файл:
SAM_4810.jpg
Прикачен файл:
SAM_4811.jpg
Вадим Владимиров - специалист
Това е част от мой проект. Показал съм как да си направиш и вентилирано било.
joro_tsanev - специалист
Благодаря за снимките, перфолентата я имам на предвид. Не разбрах с какво точно захващаш ребрата към столиците, може би с пирони. Вентилирането на билото го мислих, но каква е тази бялата лента?
  • 1
  • 2

Тема "Изграждане на дървена конструкция" | Включи се в дискусията:


Сподели форума:

Бъди информиран. Следвай "Направи сам" във Facebook:

Намери изпълнител и вдъхновения за дома. Следвай MaistorPlus във Facebook: