Здравейте,моля за вашите забележки и съвети по новоизградената ми отоплителна инсталация.Става въпрос за къща на един етаж ,приблизително около 70 кв.Външна изолация 10см. на Baumit,pvc дограма с обикновен стъклопакет и частична вътрешна изолация.Котелно помещение в мазата.

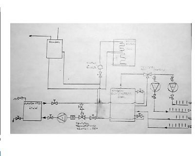
Схема къща 2_opt.jpg (36.75 KиБ) Видяна 2463 пъти
Това е схемата на инсталацията.
1_opt.jpg (15.34 KиБ) Видяна 2463 пъти
Мога да кача и реални снимки ако проявите интерес.Сигурен съм че не всичко е наред.Целта ми е за следващия отоплителен сезон с помощта на вашите съвети да изчистя грешките.Също така намеренията ми са да включа и газов котел към системата.Първият ми въпрос е за помпите.Какви трябва да бъдат.В момента помпа 1(котелната) е 25/4 работеща на 1 или 2 степен.Помпа 2 захранваща колектор 5а е 25/5 електронна(Mayer).Към колектор 5а са свързани 6 радиатора.Помпа 3 към колектор 4а захранва 4 преработени климатични тела.Тя е 25/6.На радиаторите ,без този в банята има термо глави.Има и два безжични стайни термостата съответно управляващи помпи 2 и 3.Котелната помпа се включва от термостат в момента нагласен на 50гр.Ако трябват още детайли ще дам.Очаквам вашите мнения.
Прикачен файл:
Схема къща 2_opt.jpg (36.75 KиБ) Видяна 2463 пъти
Това е схемата на инсталацията.
Прикачен файл:
1_opt.jpg (15.34 KиБ) Видяна 2463 пъти
