Здравейте! От доста време обмислям да пусна тема за строителството на къщата на село. Мястото го купих съвсем случайно през 2014 година, малко преди фалита на КТБ. Понеже фирмата, в която работих се обслужваше от въпросната банка, и сътресението, което се получи впоследствие, реших, че количество пари в банка няма да държа и започнах....Мястото беше около два декара, поляна с диви ягоди, на която последните 15-20 години са гледали картофи. Парцела е последен в селото с УПИ, без вода и ток.
Предимства, недостатъци, цени, материали, планове, пасивни къщи и т.н.
D103314
- специалист
106 мнения в "Строителство на нова къща на голя поляна - докъде стигнах."
D103314
- специалист
- Мнения: 240
Извадих си Виза за проектиране, предварителни договори с ВИК и ЕВН, и възложих направата на проекта. През това време извиках багер и почистих мястото - отне му два дни, като основния проблем бяха няколко големи дънера от круша и други видове по границата, отрязани преди години. Оставих само два ореха, защитен вид са 
D103314
- специалист
- Мнения: 240
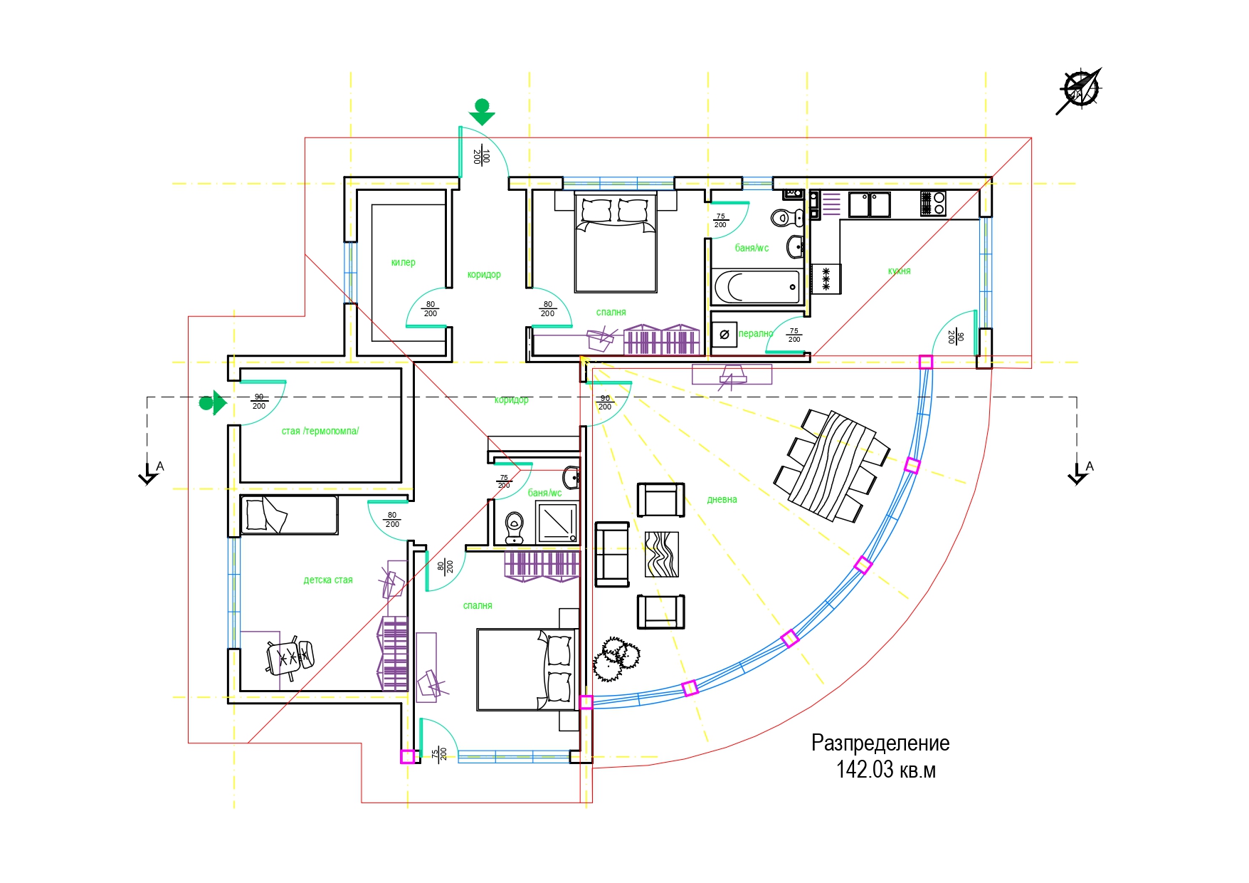
За модел на къщата взех готов проект, като малко го преобразувах съобразно парцела - промених входа, защото на готовия ми се падаше от североизток, а стария вход го затворих като стая за котелно помещение и събиране на инструменти, без да има вход към къщата.
Прикачен файл
phoca_thumb_l_plan.jpg (43.44 KиБ) Видяна 3622 пъти
Прикачен файл
phoca_thumb_l_main.jpg (24.06 KиБ) Видяна 3622 пъти
D103314
- специалист
- Мнения: 240
Понеже парцела беше гол, извиках фирма от Казанлък да ми направят едно барбекю 20кв, като първоначално го затворих цялото, за прибиране на инсртрументи и за поставяне на табло за тока.
Извиках и един местен, който търси вода...в горния десен ъгъл на парцела каза, че има вода на 45-50 метра....а там мислех да разположа къщата, за най-добра гледка от верандата към отсрещния хълм...цялото село оставаше под мен. През това време проекта се правеше, и реших, че ще го мисля със сондажа и мястото на къщата, ако изкарам вода точно там.
Извиках и един местен, който търси вода...в горния десен ъгъл на парцела каза, че има вода на 45-50 метра....а там мислех да разположа къщата, за най-добра гледка от верандата към отсрещния хълм...цялото село оставаше под мен. През това време проекта се правеше, и реших, че ще го мисля със сондажа и мястото на къщата, ако изкарам вода точно там.
BLUEPUPIL-2
- специалист
- Мнения: 948
Преди да доплатиш проектите, уточни абсолютно всичко, барабар с детайлите, в които дявола обича да се спотайва. 1..Ивични ст. бет. основи- най-вероятно, гредова скара. 2..Колони с точно прецизирано местоположение за да не пречат и възможно най-голямо разстояние между вътрешните колони и съответно между вътрешните и тези във външните стени. 3..Плоча (безгредова или с греди) или пък гредоред (стоманобетон, стомана, дърво или пък комбинация от тях)? 4..Покрива се очертава с високо ниво на сложност. Колоните ще трябва в идеалният случай да бъдат на точно определени места, което противоречи на горната точка-2. И най-вероятно пътят на товара от покрива до основите ще бъде удължен и усложнен, което не е много добър вариант. 5..Най-лекият и сравнително евтин начин за премостване на големи холове и всекидневни си остават 2бр. стоманени греди. Желая ти успех в начинанието и понеже сме български форум с много обиди и подхвърляния. Ето ти една форумна мъдрост от англоезичния свят- Срамни въпроси са само незададените въпроси. Затуй, питай и отсявай полезното от злободневното. Нека градежа бъде бърз, качествен и сравнително безпроблемен. И най-важното накрая да си доволен, което се случва сравнително рядко на хората въртели се в строителната центрофуга.
nikolov333
- майстор
- Мнения: 5423
Колегата май вече е на довършителния етап, ако съдя от другата му тема за завършване на гредите.. viewtopic.php?f=48&t=62043 По-скоро тук ще можем да видим фазите от реализацията на проекта му.. Аз за това си пуснах темата за имота още преди да го купя, понеже ми предстои да решавам за разположението на постройката, сондаж, кладенец или набита тръба, яма и т.н.
Чираче
- майстор
- Мнения: 3590
нед апр 28, 2019 4:33 pmBLUEPUPIL-2 написа: И най-важното накрая да си доволен, което се случва сравнително рядко на хората въртели се в строителната центрофуга.Най-важно е да получи Разрешение за ползване, и Нотариален акт.
D103314
- специалист
- Мнения: 240
нед апр 28, 2019 7:25 pmnikolov333 написа: Колегата май вече е на довършителен етап, ако съдя от другата му тема за гредите.. viewtopic.php?f=48&t=62043 По-скоро тук ще можем да видим фазите на реализация на проекта.. За това си пуснах тема за имота още преди да го купя, понеже ми предстои да решавам разположението на постройката, сондаж, кладенец или набита тръба, яма и т.н.Абсолютно си прав колега. Ще качвам поетапно нещата, дотук показаното е средата на 2014 година, строежа започна януари 2015, както по-горе казах малко след фалита на КТБ. Ще пиша на по-късен етап цени за етапите. Тук систематизирам грубо информацията, ако на някой би му било полезно.
Та да продължа...промених входа, а с него и местата на едната баня и килера - смених им местата, така, че родителската спалня да е със самостоятелна /с преходна врата/ баня, а другата остана на същото място. Дрешника сложих веднага вдясно до входната врата, като влезеш да се съблечеш - жената иска да е дрешник....
Къщата е на един етаж, с подпокривна плоча, като на всекидневната покрива исках да е изпълнен с гредоред така, че впоследствие да състаря и да се вижда. Наясно бях, че това кръглото с гредореда само по себе си е отделен покрив с много фира на керемиди, и това ще оскъпи самия строеж и последващите операции...но както казват кеф цена няма....
D103314
- специалист
- Мнения: 240
нед апр 28, 2019 7:53 pmЧираче написа:Така е , колега. Разрешението за ползване получих преди две седмици...нед апр 28, 2019 4:33 pmBLUEPUPIL-2 написа: И най-важното накрая да си доволен, което се случва сравнително рядко на хората въртели се в строителната центрофуга.Най-важно е да получи Разрешение за ползване, и Нотариален акт.
Тема "Строителство на нова къща на голя поляна - докъде стигнах." | Включи се в дискусията:
Сподели форума:
Бъди информиран. Следвай "Направи сам" във Facebook:
Намери изпълнител и вдъхновения за дома. Следвай MaistorPlus във Facebook:
Имаш нужда от подходящ професионалист за дома?
- Преустройство, ремонт и реновиране
- ↳ Вашите ремонти
- ↳ Кухня
- ↳ Баня
- ↳ Дневна
- ↳ Спалня
- ↳ Детска
- ↳ Градина
- ↳ Коридор
- ↳ Тераса и балкон
- Направи сам
- ↳ Направи сам
- ↳ Ремонтирай сам
- ↳ Къде е по-евтино?
- ↳ Дърводелство
- ↳ Ел. инструменти
- ↳ Металообработване
- ↳ Конкурс "Направи сам 2012"
- Строителство
- ↳ Всичко за вилата
- ↳ Къщи
- ↳ Саниране
- ↳ Хидроизолация
- ↳ Пасивни и нискоенергийни сгради
- Сухо строителство
- ↳ Окачени тавани
- ↳ Преградни стени и предстенни обшивки
- ↳ Сухи и повдигнати подове
- ↳ Декоративни елементи - колони, трегери, сводове и др.
- ↳ Всичко за гипскартона и гипсфазера
- Въпроси и Отговори
- ↳ Полезни съвети
- ↳ Автомобили
- ↳ Партньори
- ↳ Боядисване и Декориране
- ↳ Вентилация, климатици и термопомпи
- ↳ Водоснабдяване и канализация.
- ↳ Всичко за ремонта
- ↳ Електротехника
- ↳ Отопление
- ↳ Газификация
- ↳ Електроника и Схеми
- ↳ Газобетон
- ↳ От всичко по малко
- ↳ Компютри и периферия
- ↳ Уеб дизайн, PHP, MySQL, JavaScript, HTML..
- ↳ Мобилни устройства, GSM-и
- ↳ Нека се запознаем
- ↳ Recycle Bin
- Статии
- ↳ Практични решения
- ↳ Качване на снимки
- ↳ Какви статии искате?
- ↳ Готварство, туршии и зимнина
- ↳ Отмора и шеги
- ↳ От нищо нещо
- ↳ Не е за вярване
- ↳ Литература
- ↳ Връзки към Интересни сайтове
- Магазин
- ↳ Препоръки и Мнения за он-лайн магазина
- ↳ Крадeни инструменти !!!
