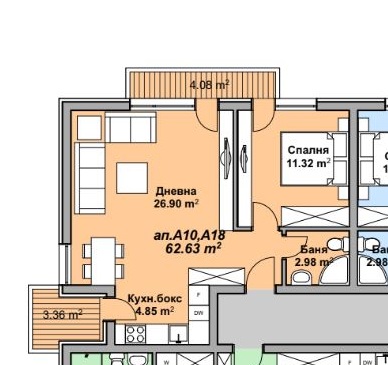
Здравейте. Купих апартамент на зелено и още преди една година се разбрахме преди да слагат дограмата да се свържат с мен и да слагат дограма по мой избор (троен стъклопакет, с две отварящи се крила) с доплащане отгоре. Дограмата, която слагат по принцип е петкамерна, двоен стъклопакет бяло - четири сезона, ако не се лъжа 4мм + 10 мм + 4 мм. Само че сега ми се обаждат и казват, че дограмата е вече сложена и ми предлaгат за 500-600 лева да го направят троен 32 мм (4-10-4-10-4) с вътрешно K-стъкло (2 прозорци + врати към терасите, врата към тераса, прозорец на спалня)? Тъй като не съм запознат с цените, толкова ли е разликата между двойния и тройния стъклопакет? Попитах дали може да са с две отварящи се крила и по-широк стъклопакет с различни по дебелина стъкла за по-добра шумоизолация и ми казаха, че цената ще набъбне до 1500 лева, трябвало да свалят дограмата и т.н., но то изобщо как ще го направят троен без да свалят дограмата? Изложението е север-запад. Какво да правя дали да дам още 500-600 лв или да оставя всичко, както си е?

2019-05-16 19_08_24-Greenshot.jpg (43.99 KиБ) Видяна 12649 пъти

2019-05-16 19_10_26-Greenshot.jpg (4.7 KиБ) Видяна 12649 пъти
Прикачен файл:
2019-05-16 19_08_24-Greenshot.jpg (43.99 KиБ) Видяна 12649 пъти
Прикачен файл:
2019-05-16 19_10_26-Greenshot.jpg (4.7 KиБ) Видяна 12649 пъти