Всичко свързано с тоците ми е слабост, опитайте се да ме затрудните.
PCL82 - майстор
Неправилно е това свързване с монофазните ДТЗ и трифазни консуматори. Сумата от токовете ще е различна от нула и веднага ще изключат.

Трифазната ДТЗ образува сумата на токовете от трите фази и нулата, когато тя е нула защитата не изключва. Незвисимо дали включваш монофазни и ли трифазни консуматори.

Монафазната ДТЗ сумира токовете от нейната си фаза и нула. Така с трите монофазни ДТЗ и трифазни консуматори токът който ще се върне по нулата е различен от този по фазите. Спомни си, че при симетричен трифазне консуматор ток през нулата не тече.
c5pro - специалист
Няма развитие по темата.
Къщата без ел.инсталация ли остана?
topurov - специалист
Ааа, няма да остане без инсталация.

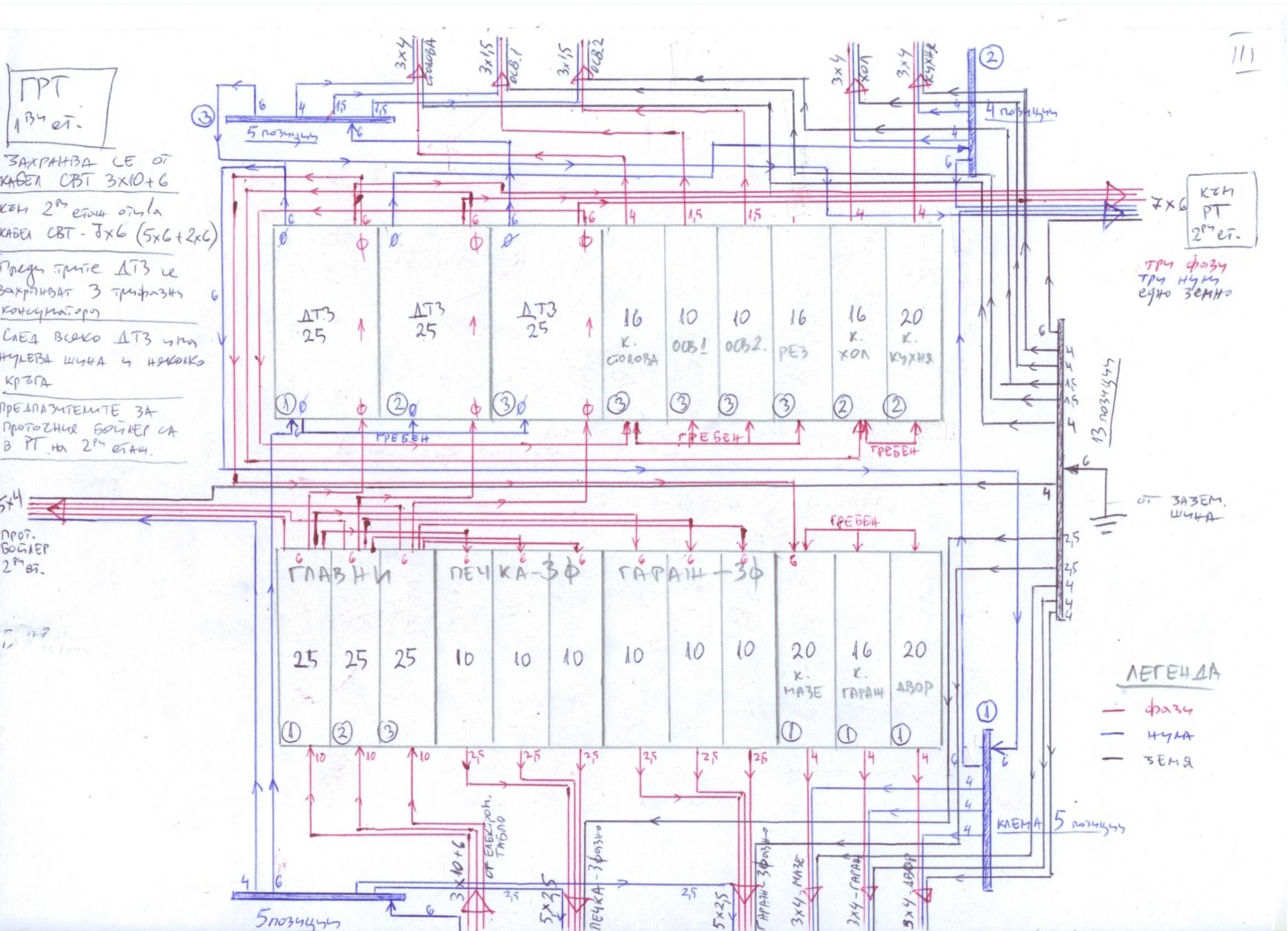
С ваша помощ стигнах до следната схема - Три главни АП по 25А, след тях трифазно захранване на печка, проточен бойлер (засега само ще положа кабелите, на следващ етап ще мисля дали да слагам бойлер), трифазен контакт в гаража. След това минавам на три монофази с по една обща ДТЗ 25 А за всяка. След тях отделните кръгове, като съм гледал да разпределя мощностите, така че трите фази да са равномерно натоварени. Смятам да защитя готварската печка и проточния бойлер с индивидуални трифазни ДТЗ преди самите уреди, така че не съм ги давал на схемата, понеже няма да са част от разпределителните табла (в тях и без това няма повече място). Трифазния контакт в гаража засега не смятам да защитавам с ДТЗ.

Вчера започнах и монтажа. Монтирах ГРТ на първия етаж и прекарах кабели до мазето. Целта ми е да електрифицирам първо него за да се сложи хидрофор. След това ще прекъсна малко работата по инсталацията и ще се концентрирам върху градината - фрезоване, почистване, подравняване, изграждане на автоматизирана поливна система (Hunter) и засяване на райграс. След това ще довърша ел. системата и ВиК-то. После измазване и т.н.

Та вчера светна първата крушка в мазето и никой не пострада! Продължавам смело напред.

Имам обаче един малък проблем. При полагането на главния захранващ кабел от таблото то къщата дължината му се оказа недостатъчна и сега достига на около 1.5 м. от пода. Аз монтирах таблото на височина 2 метра и сега трябва да удължа по някакъв начин кабела до него. Става въпрос за СВТ 3х10+6. Как е най правилно да се извърши снадката? Не ми се ще да прибягвам до кербоване защото нямам такива клещи, но ако така е най-добре ще извикам някого.

Прикачен файл

grt 4.jpg
grt 4.jpg (85.64 KиБ) Видяна 2744 пъти
topurov - специалист
Оказа се голяма главоблъсканица да се превъплъти горната схема плът и кръв (в ток и жици).

Какво ще кажете за тази схема на свързване на ГРТ?

Прикачен файл

ГРТ_1.jpg
c5pro - специалист
Евала за положения труд.Начертал си схемата перфектно.
Според мен трябва да я промениш изцяло,да не кажа,че е грешна.ДТЗ не се подвързват така [-X .Слагаш ДТЗ на осветлението(какво предпазваш не знам :? ).На бойлер,печка,контакт гараж - нямаш ДТЗ. :? или тях няма да ги предпазваш?Каква е тази печка?Пуснал си 5х2,5 - това е захранване за 7.2 KW.Главния АП си го ограничил на 3х25А - пускаш хидровора и той изключва.Климатици няма ли да има в тази къща?На трифазно напрежение се слага триполюсник,а не три отделни АП-ля :? - недопустима грешка.Изобщо имаш много съществени пропуски,да не кажа фатални.
topurov - специалист
Слагам три главни АП по 25А, защото в електромерното табло са ми сложили такива. Бойлера и печката ще се защитават с отделни ДТЗ-та преди самите уреди. Осветлението е зад ДТЗ-тата защото съм гледал така да разпределя консуматорите по фазите, че да са равномерно натоварени - на всяка има контакти и осветления. И какво лошо има да е защитено осветлението. Ако са само висящи фасунки няма къде да се върже земното, но има плафони и полюлеи със заземителна клема. Това за хидрофора не го разбирам - колко трябва да е мощен, че да изключи 25А главен. Климатици може и да има, може и да няма. Ако има - в някой от контактите (захранващите кабели за всички контактни кръгове са по 4 мм2 и са с АП-та 20А).
c5pro написа:
ДТЗ не се подвързват така!
Какво по-точно имаш в предвид?

Тема "Ел. инсталация на нова къща" | Включи се в дискусията:


Сподели форума:

Бъди информиран. Следвай "Направи сам" във Facebook:

Намери изпълнител и вдъхновения за дома. Следвай MaistorPlus във Facebook: