чет апр 30, 2020 11:53 amРуди написа: Ами, аз не бих си прекарал гостите през гаража вкъщи. Обикновено е натурия някаква там, мирише от бидона със зелето/джибрите, кал от мокрите гуми на колата, бензинови пари ... По-добре си остави един коридор 1.30 м, пък си предвиди голям отвор към дневната за едрите мебели.Съгласен съм с всичко казано и след обеда ще го мислим..
Пък може гаража ти да е като аптека? Виждам че къщата няма килер, сигурно там ще са ти резервните бири, шишета и консерви, лук и картофи, прахосмукачката, дъската за гладене и прочее.
Телевизор на прозореца не се връзва особено, бих му сменил мястото с дивана. Аз ползвам дивана за четене и искам да съм до светлината, но на други им харесва да е в тъмния ъгъл.
Предвиди си отдушник (комин) за ширма над печката, щото иначе трябва да изведеш миризмите от готвенето на верандата. Ако пратиш барбекюто на гърба на печката, може да изглеждат като един комин с две секции.
Добре е да има отдушник с вентилатор и за банята, прозореца към коридора/гаража не е пълноценно проветряване.
чет апр 30, 2020 12:21 pmn_a написа: Аз всеки път, като видя план за къща, настоявам за повече бани/тоалетниЗначи, излежавате си се във ваната и на детето му се допикава... Имате гости и да влизат в личната ви тоалетна... Все, избежими и неуместни неща.
Оценявам, че към гаража има такова, но все пак...
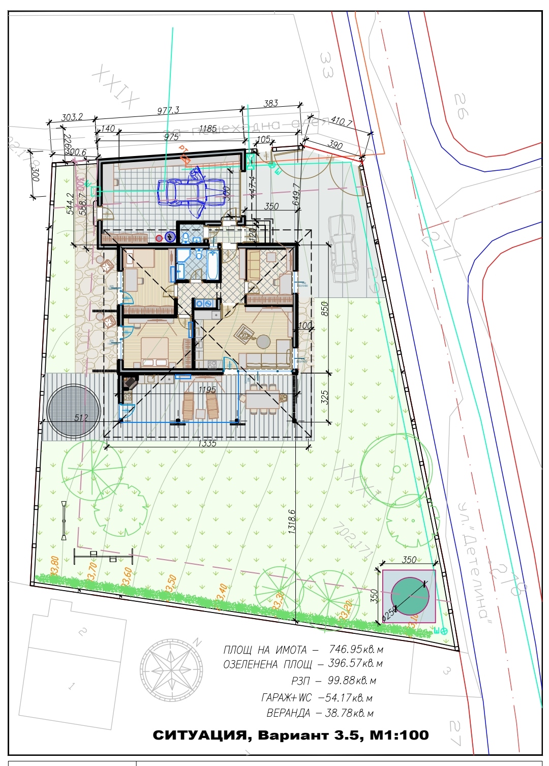
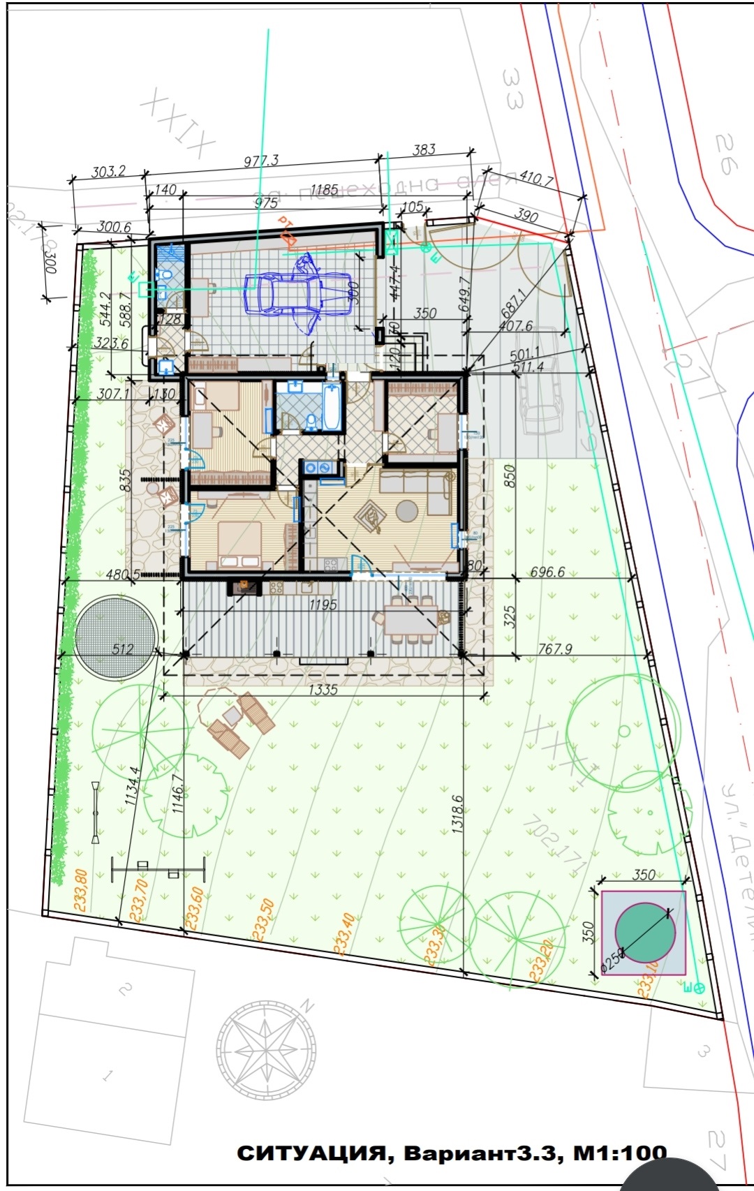
Баните бяха две в предишните версии на проекта, даже спалнята беше предвидена на мястото на детската със собствена баня, но едната отпадна заради промяната на входа при добавяне на гаража заради оформянето на гостната-кабинет.. Къща с двор без външна тоалетна е още по-зле, та за това я преместих в гаража като резервна за къщата, ако основната е заета, а и ще е много удобна за ползване от към двора за измиване след дворните дейности, когато си мръсен и окалян например.. Това в коридорчето в дясно на новия проект от към задния край на гаража е именно с тази цел..
Имаше и вариант с тоалетна до входа но не ми се струва по-удачен от последния понеже гаража става по къс и тесен, а той ще е с няколко функции и е важно да има обем..
