• 1
  • 8
  • 9
  • 10
  • 11
  • 12
  • 29
Предимства, недостатъци, цени, материали, планове, пасивни къщи и т.н.
BLUEPUPIL - майстор
нед май 03, 2020 10:11 amnikolov333 написа:
Многото вода също може да е проблем, понеже до мен минава дере с голям водосбор и за това правих задигането от долния край, улична дъждовна канализация, подпорна стена и дренаж за да пренасоча повърхностните води, че иначе големите дъждове заливаха ниската част на парцела. За това и основите на къщата ще са с рандбалки на стъпки заради насипа.

При такива „водни“ условия стъпките трябва да са с по-голяма площ от обикновено необходимата. Ако има макар и малка вероятност водното ниво, да се покачи макар и за кратко над долното ниво на стъпката и ако (както често се случва) това покачване и понижаване (суфозия) е динамично, бих препоръчал, ако почвите са сравнително здрави, да се слезе до натоварване от 1кг на см2; Ако са ситни глини, аз лично бих слязъл до 0.75кг на см2.

Ако опростим до голяма степен работите и допуснем, че една стъпка носи товар от общо 15000кг х 1.3=20000кг
В първият вариант мин. е стъпка 140х140см; във вторият 165х165см;

Друго важно нещо, ако наблизо има сеизмично огнище, тези рандбалки да не са със символичната височина от 40-50см, а да могат да „превържат“ основите. Това може да стане, ако са с h поне 70см.

Та накрая, трябва да се сметне с колко ивичните основи ще излязат по-скъпи и ако е с малко отгоре, няма ли да бъде по-добре по отношение на дилемата цена-функционалност, да се мине на тях при наличните неблагоприятни условия.

:arrow: Иначе единичните стъпки и плитките рандбалки много обичат едноетажните къщи с гредореди над кота цокъл и се мръщят на плочите, защото им развалят кефа и рахатлъка, като ги карат ги да слягат равномерно и при земетръс да не си повдигат много единия край. :axe:
nikolov333 - майстор
Съгласен съм, че ивичните също са вариант, но ако се получат с височина 1.5/2 метра и приемем, че може да "забентят" някой подпочвен дамар или високи подпочвени води напролет с ниво около метър под повърхността и съпътстващото го цялостно дрениране по периметъра на основите , стъпките няма ли да са за предпочитане..? В момента денивелацията на парцела спрямо дерето е около 50-60см и вероятно, няма да ме залее директно, но подпочвените води са проблем.. Би трябвало конструктора да прецени най-правилно, след геологията..:?
BLUEPUPIL - майстор
То хубавото геоложко проучване, може да се окаже по-скъпо от разликата в цената между стъпки и ивични основи.

Ето ти хипотетична ситуация:
Геоложкият доклад, на когото може да се разчита, дава зелена светлина за стъпки.
Цената за геоложкия долад е равна на допълнителната цена за преминаване от стъпки към ивични основи.

Кое би предпочел? :shock: :?: 8-[
nikolov333 - майстор
Съгласен съм, понеже и моя конструктор ми дава подобни насоки и явно сте на същото мнение по въпроса, но за дренажа на ивичните не питах, а и ти нищо не казваш по тоя въпрос, та да не се изненадам накрая.. :-D :partyman:

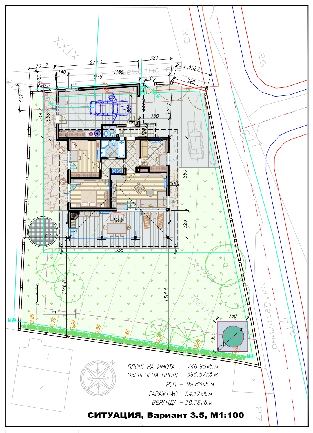
Последните промени от днес са прозорци в гаража към улицата и двора и няколко дребни размествания и разширяване на вратите и прозорците към верандата . Следва фиксирането на кота нула и разрезите, но имам дилема с нивото на нулата, понеже верандата е дълга, а искам никъде да нямам стъпала към пътеките и двора и ще трябва да я избираме много внимателно, за да може прехода от верандата към моравата да стане без да се задига много терена на североизток от към оградата.

Прикачен файл

IMG_20200504_230410.jpg

Прикачен файл

IMG_20200504_230633.jpg
BLUEPUPIL - майстор
пон май 04, 2020 9:52 pmnikolov333 написа:
Съгласен съм, понеже и моя конструктор ми дава подобни насоки и явно сте на същото мнение по въпроса, но за дренажа на ивичните не питах, а и ти нищо не казваш по тоя въпрос, та да не се изненадам накрая.
Доколкото разбирам си мислиш, че между единичните фундаменти, водата ще си преминава свободно и няма да имаш проблеми с нейното оттичане.
Тава е сигурна рецепта за компрометиране на стъпките, напред във времето. Освен, ако те не влязат дълбоко в склона, да речем на мин. 2м, като сложиш и насипа, току виж станали 3м. И цената ще приближи тази за изливни микро пилоти.


Прикачен файл:
1.jpg
1.jpg (76.91 KиБ) Видяна 1913 пъти
Прикачен файл:
2.jpg
Прикачен файл:
3.jpg
Прикачен файл:
4.jpg
4.jpg (44.35 KиБ) Видяна 1913 пъти
Прикачен файл:
5.jpg
5.jpg (24.11 KиБ) Видяна 1913 пъти

При такива неблагоприятни условия ивичният фундамент е цар, като изключим ф. плоча и пилотите. При условие обаче, че ще трябва да се влезе на 1м в земята, плюс 1м насип стават 2м, което си е също скъпо.

Като най-добро и евтино решение бих ти препоръчал:
1..Малък брой големи стъпки, да речем 6 или 8бр. с голямо разстояние между тях да кажем 6м, да слязат на 2м под терена, без да включваш насипа в тази височина;
2..70см рандбалки;
3..Трамбован чакъл поне 70см, хидро и топлоизолация, плюс армирана замазка. Целта е пода и неговият полезен товар, доколкото е възможно да не тежат върху стъпките;
4..Ст. бетонни колони;
5..Ст. бетонни греди с Н=45-50см, да направят една хубава рамкова конструкция да поеме земетръса.
6..Образуваните от ст. бет. греди квадрати ги делиш на 3 и слагаш по 2бр. ст. греди през 2м.
7..Отгоре дървени греди и дървен покрив, може и с керемиди.
8..Добре е да няма вътрешни стъпки и колони, така, че всички да са в периферията. Това ограничава ширината до към 6м, „Г“ образната форма обаче решава този въпрос давайки площ от 108м2, които можеш да редуцираш до 99.
Така ще може на сравнително приемлива цена да се укрепят основите, ако след няколко десетилетия се появят проблеми. Още една причина зетьовете да те споменават с добро. :partyman: :heart:
Руди - майстор
Blue си изпя фантастичната песен отново :) Този път гарнирана със снимки
от руски сайтове, пак добре че не са хамерикански или канадски...
Аз се обзалагам, че няма да омешат материалите толкова, колкото
манджата на Blue, и по-добре. Все пак ако се придържаме към
традициите и възможностите на българските строители, резултатът
ще е по-предвидим.
Идеите на проектанта не трябва да надвишават възможностите
на строителите и технологиите в мястото на строежа.
nikolov333 - майстор
Забележката на Руди е много уместна, понеже майсторите ми ще са от старото поколение и като им показвах проекта твърдят, че до сега не са правили покрив на къща с един поп.. :-D :lol: :lol:
BLUEPUPIL - майстор
Покрай пандемията изпадна една машина за изливни микропилоти (150-250мм). Последно работи с пилоти с дълбочина 7м, диаметър 200мм и тестовете показаха носимоспособност средно от около 360kN на пилот, което си е 36тона.

Ама клиента е цар, щом не ще такива модерни работи, няма да я вземаме; ще чакаме да узрее и да му се ъпдейтне мисленето и най-вече да се повиши брутният му вътрешен продукт.

Още от сега се обзалагам, че проектирането на основи при гореспоменатите условия, които да издържат проектен живот от 50 години с минимални слягания ще е скъпа задача независимо по-кой от възможните пътища ще се поеме.

Преди години твърдях, че основите трябва да са от по-як бетон, отколкото връхната конструкция, почти всички останали ревяха, че бетона в основите трябва да е един клас надолу, ръгаха железа в основите и се осланяха на постулати от времето, когато основите бяха само от бетон. Сега нещата се изравниха. Бъдещето обаче продължава да е на страната на BLUE, прилагането на водоплътни бетони за основите се разширява и аз лично не виждам икономическа логика от спестяването на 20лв на кубик бетон при положение, че армировката се поставя в условията на вариращ риск от корозия. За капилярното покачване в бетона да не говорим. И понеже водоплътния бетон е традиционно един клас над „обикновения“, предсказанието на BLUE започна осезаемо да се материализира. И това е така, не толкова за това, че той има пророчески дарби, колкото поради факта, че това е изгодно за строящите.

Такава ще бъде и „процедурата“ по ревизия на „традиционните“ методи за фундиране на малки къщи. Като гледам възможностите на строителите и технологиите в някой конкретни „райони“ и какви основи са наблъскали на някой къщи ми се иска тази технологична промяна да се движи по-бързо.

Архитекта какво е правил не знам, ама имаше издумкана една голяма „Т“ образна шайба, която за да поеме всичките тези хоризонтални сили трябваше да има дълбоки основи; и понеже е хубаво всички основи да са на едно ниво и тези дето не трябваше и те станаха по-дълбоки, красота във вид на антисеизмичен шедьовър.
Последна промяна от BLUEPUPIL на ср май 06, 2020 2:46 am, променено общо 1 път.
BLUEPUPIL - майстор
вт май 05, 2020 4:36 pmРуди написа:
Blue си изпя фантастичната песен отново :) Този път гарнирана със снимки от руски сайтове, пак добре че не са хамерикански или канадски...
Ама кажи, не ти ли харесват стоманените рандбалки върху бетонните стъпки?

Няма влага на ниска цена!

Жалко, че не са направили отгоре ст. бет. колони със стоманени греди „омешването“ щеше да е вдъхновяващо.
nikolov333 - майстор
Сигурен съм, че около 1.5-2м от нивото на терена има много здрава глина, защото когато копахме основите на оградата, която е и подпорна стена към дерето миналата есен, на 2м от горната и кота кофата на багера вадеше искри в изкопа, така че разчитам че на тази дълбочина няма да имам проблеми с носимостта.. Освен това в горния край на терена плодородния слой от около 80-90см е отнет вече, а под него има бяла глинеста пръст, така че там и с ивични става. Притеснява ме само долната половина от парцела, понеже е насип.. Не знам дали само там да заложим колони със стъпки и възможна ли е комбинация от двата метода..? :?
Прикачен файл:
IMG_20200506_075245.jpg
Прикачен файл:
IMG-0687af5951cec5597464cea1dc25c591-V.jpg
  • 1
  • 8
  • 9
  • 10
  • 11
  • 12
  • 29

Тема "Въпроси за статута и строежа..овреме!" | Включи се в дискусията:


Сподели форума:

Бъди информиран. Следвай "Направи сам" във Facebook:

Намери изпълнител и вдъхновения за дома. Следвай MaistorPlus във Facebook: