• 1
  • 12
  • 13
  • 14
  • 15
  • 16
  • 50
Предимства, недостатъци, цени, материали, планове, пасивни къщи и т.н.
schuldiner - майстор
E, баш по тая картнка се кьорах и не видях ТИ на сутеренните стени. Ама вече правилно се ориентира, та е без значение.
Ако ти се калкулира, проводимостта на уплътнена пръст при 25 градуса е 0,6-2,5 W/mK от суха до съвсем влажна. Твоята заради дренажа я приеми за суха.
skostadinov - специалист
вт яну 10, 2023 2:36 pmschuldiner написа:
E, баш по тая картнка се кьорах и не видях ТИ на сутеренните стени. Ама вече правилно се ориентира, та е без значение.
Ако ти се калкулира, проводимостта на уплътнена пръст при 25 градуса е 0,6-2,5 W/mK от суха до съвсем влажна. Твоята заради дренажа я приеми за суха.
Да, да ще си има ТИ и на фундаментите поне от външна страна. Не знам от вътрешната им страна дали и там не трябва да се сложи. Макар, че те самите фундаменти ще са на -3.5 или -4м ако решим да увеличим височината на сутерена и както каза ти на таз дълбочина темп. трябва да е постоянна и доста над 0.
kanevg - специалист
вт яну 10, 2023 1:24 amskostadinov написа:
Като се стигна до там с проектирането, че ще имам сутерен и след като се примирих с това. Изрично казах на архитектката, че искам това мазе да е поне 2.3м чисто в готов вид. Разбира се отсреща да, да няма проблем. И накрая като си видях разреза и чертежите пак гледам чисто излиза 2м :x Вярно, че ние с жена ми сме ниски и няма да си удряме главите, но все пак...

2023-01-10_01h16_39.png
Без да давам излишни съвети, но си направете сутерена с нормална височина, поне 2.50м.
Не знам това колко ще промени конструкцията, но си струва да се опита.
Може да решите една кинозала да направите, ще пуснете един окачен таван за осветление и някакви комуникации, и ще слезете на височина под 2м - пълен абсурд е това.
Моето мазе по проект го направих 2.6м височина, след замазка и плочки.
Последна промяна от kanevg на вт яну 10, 2023 4:59 pm, променено общо 1 път.
skostadinov - специалист
вт яну 10, 2023 4:45 pmkanevg написа:
вт яну 10, 2023 1:24 amskostadinov написа:
Като се стигна до там с проектирането, че ще имам сутерен и след като се примирих с това. Изрично казах на архитектката, че искам това мазе да е поне 2.3м чисто в готов вид. Разбира се отсреща да, да няма проблем. И накрая като си видях разреза и чертежите пак гледам чисто излиза 2м :x Вярно, че ние с жена ми сме ниски и няма да си удряме главите, но все пак...

2023-01-10_01h16_39.png
Без да давам излишни съвети, но си направете сутерена с нормална височина, поне 2.50м.
Не знам това колко ще промени конструкцията, но си струва да се опита.
Може да решите една кинозала да направите, ще пуснете един окачен таван за осветление и някакви комуникации, и ще слезете на височина под 2м - пълен абсурд е това.
Моето мазе по проект го направих 2.6м височина, след замазка и плочки.
Ами съгласен съм. Ще видим какво ще каже строителя и конструктора и ще бутам да стане поне 2.3м чисто пък ако може повече и не започва да ми става неоправдано скъпо, ще го направим и повече.
BLUEPUPIL - майстор
Пръстта не е хубаво да стига до основите.
:arrow: Отдалечи я с подпорна стена на около 1.5м от основите и хваната за къщата на нивото на кота 0 с гредички през няколко метра (където са колоните).
Бонус- конструктора да си седне на Д-то и да отвори прозорци в сутерена, че дори и външна врата (двукрила за бъчви и пр.) + външно стълбище.
Ще стане „муцка“ работилница, ателие, склад, котелно, мокро помещение,
фитнес и т.н.
Сега е момента да превърнеш минусите в плюсове.
Идеята за хидро+топло на една стена, заедно е :vom:

Блъскай бетон вместо скъпа хироизол. и само за 20
години ще си на кяр. :wink:
Не се набутвай в ръчичките на хидровците. :cry:
:idea: Н светло на сутерена след замазки, окач. тавани и изолоации мин. 2.50м.
Последна промяна от BLUEPUPIL на вт яну 10, 2023 5:03 pm, променено общо 1 път.
kanevg - специалист
вт яну 10, 2023 4:48 pmskostadinov написа:
Ами съгласен съм. Ще видим какво ще каже строителя и конструктора и ще бутам да стане поне 2.3м чисто пък ако може повече и не започва да ми става неоправдано скъпо, ще го направим и повече.
[/quote]

Където 2.30, там 2.50, не вярвам това да доведе до някакво умопомрачително оскъпяване.
BLUEPUPIL - майстор
вт яну 10, 2023 4:58 pmkanevg написа:
Където 2.30, там 2.50, не вярвам това да доведе до някакво умопомрачително оскъпяване.
от Н=230 на Н=270; +40см
60м х 0.4м х 0.4м= 10м3 х 150лв= 1500лв;
10м3 бетон х 100кг армировка = 1000кг х 1.7лв= 1700лв;
Общо 3200лв; с труда и кофража 4000лв, нищо разход за такава „хубавиня“.
:wink:
skostadinov - специалист
вт яну 10, 2023 4:54 pmBLUEPUPIL написа:
Пръстта не е хубаво да стига до основите.
:arrow: Отдалечи я с подпорна стена на около 1.5м от основите и хваната за къщата на нивото на кота 0 с гредички през няколко метра (където са колоните).
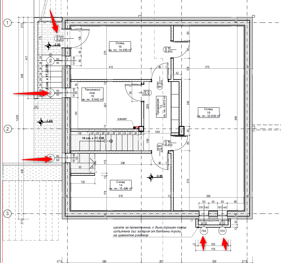
Ами аз не разбирам много, но така като гледам чертежите не виждам никъде да има допир на пръста до основите. Отвън ще има хидро и топлоизолация от подложния бетон до кота 0 (и нагоре също де, но това не важно в този контекст) и след това дренажи и обратен насип с трошляк или скална маса 0-63. Под фундаментите има подложен бетон и хидроизолация. От вътрешна страна фундаментите ако разбирам правилно пак ще е запълнено със скална маса а не с земни маси. А и може би ще сложим XPS и там ако има как. Тъй че може и да бъркам но не виждам къде може да има допир на почва със самите фундаменти или сутеренната плоча.

Прикачен файл:
2023-01-10_17h07_39.png
Прикачен файл:
2023-01-10_18h00_46.png
Прикачен файл:
2023-01-10_17h44_44.png
вт яну 10, 2023 4:54 pmBLUEPUPIL написа:
Бонус- конструктора да си седне на Д-то и да отвори прозорци в сутерена, че дори и външна врата (двукрила за бъчви и пр.) + външно стълбище.
Ще стане „муцка“ работилница, ателие, склад, котелно, мокро помещение,
фитнес и т.н.
Сега е момента да превърнеш минусите в плюсове.
Иначе може би не си забелязал, но в сутерена има прозорци. Има си и врата откъм двора и такава от антрето на къщата. В момента в който стана ясно, че ще имам голям сутерен и казах на арх. че няма вариант да нямам прозорци и врата откъм двора и те добавиха.
вт яну 10, 2023 4:54 pmBLUEPUPIL написа:
Идеята за хидро+топло на една стена, заедно е :vom:

Блъскай бетон вместо скъпа хироизол. и само за 20
години ще си на кяр. :wink:
Не се набутвай в ръчичките на хидровците. :cry:
Какъв е проблема на комбинацията хидро и топло на една стена? Не се ли прави точно така. Ако не се сложи хидро, може ли да се разчита само на дренаж и на водоплътен бетон?
вт яну 10, 2023 4:54 pmBLUEPUPIL написа:
:idea: Н светло на сутерена след замазки, окач. тавани и изолоации мин. 2.50м.
Ами ще натискам в тази посока. Дано ми се получи защото и на мен ми е точно идеята това голямо мазе да се оползотвори добре в един момент. Има достатъчно място за техническо помещение, за багажно, за градински инвентар и пак остава едно сравнително голямо помещение, което може да се ползва за различни неща.


вт яну 10, 2023 4:58 pmkanevg написа:
Където 2.30, там 2.50, не вярвам това да доведе до някакво умопомрачително оскъпяване.
По принцип е така, но ще видим накрая какво ще покажат сметките :)

вт яну 10, 2023 5:40 pmBLUEPUPIL написа:
от Н=230 на Н=270; +40см
60м х 0.4м х 0.4м= 10м3 х 150лв= 1500лв;
10м3 бетон х 100кг армировка = 1000кг х 1.7лв= 1700лв;
Общо 3200лв; с труда и кофража 4000лв, нищо разход за такава „хубавиня“.
:wink:
Ако е така както казваш, бих ги прежалил с удоволствие едни 4-5К Но предполагам няма да е само толкова. Ще има повече изкоп и насип, ще се увеличат и стълбищата, ще ми се промени канализацията и водоотвеждането и ще се наложа да мина на вариант шахта с принудително изпомпване защото ще слезнем под нивото на канализацията на пътя. Ще се увеличат и изкопите за пречиствателна станция и всички останали свързани неща тъй като котата ще падне доста по ниско и т.н.
Но съм навит. Ще го помислим, ще го изговорим и ако няма да е голяма драма съм с 2 ръце и 2 крака ЗА.
kanevg - специалист
вт яну 10, 2023 5:40 pmBLUEPUPIL написа:
вт яну 10, 2023 4:58 pmkanevg написа:
Където 2.30, там 2.50, не вярвам това да доведе до някакво умопомрачително оскъпяване.
от Н=230 на Н=270; +40см
60м х 0.4м х 0.4м= 10м3 х 150лв= 1500лв;
10м3 бетон х 100кг армировка = 1000кг х 1.7лв= 1700лв;
Общо 3200лв; с труда и кофража 4000лв, нищо разход за такава „хубавиня“.
:wink:
На фона на стотиците хиляди които ще глътне проекта, наистина е нищо.
Но пък ще спести на инвеститора след години размисли от рода - абе защо оставих сутерена с височина 210см... :?:
skostadinov - специалист
вт яну 10, 2023 6:24 pmkanevg написа:

На фона на стотиците хиляди които ще глътне проекта, наистина е нищо.
Но пък ще спести на инвеститора след години размисли от рода - абе защо оставих сутерена с височина 210см... :?:
По принцип сте напълно прави всички. В повечето ситуации, аз също разсъждавам така. Ще бутам в тази посока, та да видим какво ще излезне.
  • 1
  • 12
  • 13
  • 14
  • 15
  • 16
  • 50

Тема "Мисия Нов Дом - от А до Я" | Включи се в дискусията:


Сподели форума:

Бъди информиран. Следвай "Направи сам" във Facebook:

Намери изпълнител и вдъхновения за дома. Следвай MaistorPlus във Facebook: