• 1
  • 32
  • 33
  • 34
  • 35
  • 36
  • 60
Всичко свързано с тоците ми е слабост, опитайте се да ме затрудните.
Детето - специалист
пет дек 15, 2023 1:11 pmТрифон П.Трифонов написа:
За сведение, на она тъп хейтър, който не се свени да клевети без срам и страх от Шефа, имам поне десетина случая, при които съм гасил под напрежение. Ако някой се съмнява все още, нека си представи пожар в гетото! Колегите дори се шегуват, че така се рефрешвам, а ако някъде има съмнение за обект, в който захранването е .........дублирано небрежно, казват "Имаме си "Фазомер" в смяната".
Бих могъл да съм смел поради глупост и незнание, а дали е така, може да поумуват още малко лайнометите.
По принцип такива работи не са за хвалба, но аз също мога да кажа, че доста пъти ми е "търняло" от допир с някоя фаза, като го приемам съвсем спокойно защото така го усещам. Но всичко зависи от самият човек и заобикалящата го среда. Защото съм виждал как при токов удар човек направо става на "кокал" целият или как ръцете му изгарят до лактите. По същият начин и как бягат по 20 метра от страх след като ги е ударило.
В моите ръце фазомер не свети, на човека до мен му свети в ръцете. Аз пипам и нищо, човека до мен пипа и вика УРА.
Точно затова си има техника на безопасност и всякакви такива от този сорт. Затова се премахват стандарти и навлизат нови.
Затова и всеки който е решил да си връзва генератор или каквото и да било, трябва да е наясно с рисковете и как да се предпази до макс.
Защото лошите неща стават за секунда.
gogo7777 - майстор
hidrazin написа:
Масово нямат алтернатор. Имат отделна намотка в самия генератор + изправител.
Нищо не вдянах.
С колко полюса е ротора и с колко намотки статора.. :?
hidrazin - майстор
пет дек 15, 2023 1:34 pmB0bi написа:
При променливо на напрежение казваме само "потенциал", без значение кой от двата е заземен.
НО! Нито един от двата няма потенциал спрямо земята ако никой от двата края не е зазмен. За който и от двата да се пипне, хване човек стъпил бос на мокра земя нищо няма да му се случи. Също като птичка на жицата. Да, човекът ще има (условно) потенциал. През него земята "ще получи" неговия потенциал, но ток няма да протече. Нали това няма да го отречете?
Също - ако пробие към корпус намотката на монофазния генератор и корпусът не е свързан със земята (даже специално е изолиран с тампони), на него ще има потенциал, но не към земя. Ако бос човек се докосне до корпуса му, нищо няма да му се случи. Това така ли е или не е?
Още по-зле става ситуацията ако някой с къща/жилище със занулена система/контакти се върже на брътвежите на Бобчо и не си заземи единия край на монофазния генератор.
При пробив/утечка/дефект на бившия фазов проводник ВСИЧКИ уреди които са били занулени (например бойлер, готварска печка..) както и контактите ще "светнат".
В този вариант е достатъчно да влезете в банята и бойлера ви да е с полипропиленови тръби. На 100% сте изпържени.
:partyman:
P.S. НИКОЙ ДА НЕ СЕ ВРЪЗВА на ОПАСНИТЕ и ВРЕДНИ брътвежи на Бобчо.
Те са ОПАСНИ както за него (което не е голяма загуба), така и за всички вас!

Според Бобчо трябва да се върнем към руската система за електрозахранване от 60-те години и белгийската у нас пак от тези години.
У вас влизат две жици и няма фаза, няма нула, няма защитно заземяване, няма защитно зануляване.
Според него трябва да си изхвърлим сегашните контакти и да си купим такива. :lol:

Прикачен файл:
Легранд.jpg
Легранд.jpg (42.28 KиБ) Видяна 756 пъти
hidrazin - майстор
пет дек 15, 2023 2:54 pmgogo7777 написа:
hidrazin написа:
Масово нямат алтернатор. Имат отделна намотка в самия генератор + изправител.
Нищо не вдянах.
С колко полюса е ротора и с колко намотки статора.. :?
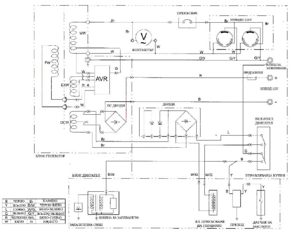
Аз пък явно не съм разбрал за какво питаш. Дай са да видим - питаш това дето зарежда акумулатора или за самия генератор който прави АС напрежението ли?
Ако е за АС-то - генератора е монофазен. Една намотка на ротора - възбудителната.
На статора са няколко - една за АС-то, една за регулатора(възбудителната намотка) и една за заряда на акумулатора.

Прикачен файл:
Схема монофазен генератор.jpg

:partyman:
Последна промяна от hidrazin на пет дек 15, 2023 3:30 pm, променено общо 1 път.
gogo7777 - майстор
пет дек 15, 2023 3:05 pmhidrazin написа:
.....
Аз пък явно не съм разбрал за какво питаш. Дай са да видим - питаш това дето зарежда акумулатора или за самия генератор който прави АС напрежението ли?
Ако е за АС-то - генератора е монофазен.


:partyman:
Да за АС-то. Значи има дефазиране на 180° тъй ли? Т.е. две намотки, а полюсите според честотата и оборотите

:partyman:
пет дек 15, 2023 3:06 pmhidrazin написа:



:partyman:
Далечната вече 19........23стр.
viewtopic.php?f=11&t=70793&start=220#p1149373
hidrazin - майстор
пет дек 15, 2023 3:59 pmТрифон П.Трифонов написа:
Далечната вече 19........23стр.
viewtopic.php?f=11&t=70793&start=220#p1149373
Ще ме извиняваш - кой да помни цели ТРИ дена? :-D
Важното е че е показано какво задължително трябва да се направи. Да се заземи/занули единия край на намотката.
Много ми е интересно как ще го направи Бобчо ако трябва да захрани къща с трифазен генератор по неговата "ВЕЛИКА" схема IT ?
С какво ли ще захрани уредите/консуматорите различни от трифазни генератори и други трифазни машини?
Че той НИКЪДЕ няма да има 230V а само 400V ... :lol:

Прикачен файл:
IT system.jpg
IT system.jpg (58.9 KиБ) Видяна 699 пъти

:partyman:
B0bi - специалист
Ц - ц - ц ... да се смее ли човек, да плаче ли. Все си виках, няма да пиша! И няма да влизам. Много съжалявам, че прочетох и това. Спирам, щото ми е неописуемо трудно да се въздържам ...
Влюбен в земята :lol:
hidrazin - майстор
пет дек 15, 2023 3:56 pmgogo7777 написа:
Да за АС-то. Значи има дефазиране на 180° тъй ли? Т.е. две намотки, а полюсите според честотата и оборотите
Имаш въртящ се магнит - в случая е електромагнит с два полюса. Виждат се двата колекторни пръстена които го захранват.
Тока през тоя електромагнит се регулира от AVR-a (регулатора на напрежение) и така на изхода винаги имаш колкото ти трябва.
Ако го натовариш, AVR-a пуска повече ток през ротора за да се вдигне падналото заради товара напрежение.

Прикачен файл:
HONDA 2.jpg

От статора зависи дали ще е трифазен или монофазен. Една намотка - монофазен, три дефазирани на 120 градуса.
НО намотките на статора са разпределени в много канали и това зависи от оборотите на въртене на генератора.
Демек при монофазен генератор имаме една статорна намотка но разпределена на много полюси.
Ето например този има много канал на статора, което са и много полюси.
При сметките се взимат двойка полюси за да се пресметне брой обороти/честота/брой канали...

Прикачен файл:
HONDA 1.jpg

Демек с тока през ротора се регулира напрежението а с оборотите на двигателя - честотата.
Какво ти се върти из акъла? :-D
:partyman:
  • 1
  • 32
  • 33
  • 34
  • 35
  • 36
  • 60

Тема "Употреба на занулени контакти с генератор" | Включи се в дискусията:


Сподели форума:

Бъди информиран. Следвай "Направи сам" във Facebook:

Намери изпълнител и вдъхновения за дома. Следвай MaistorPlus във Facebook: