Привет,
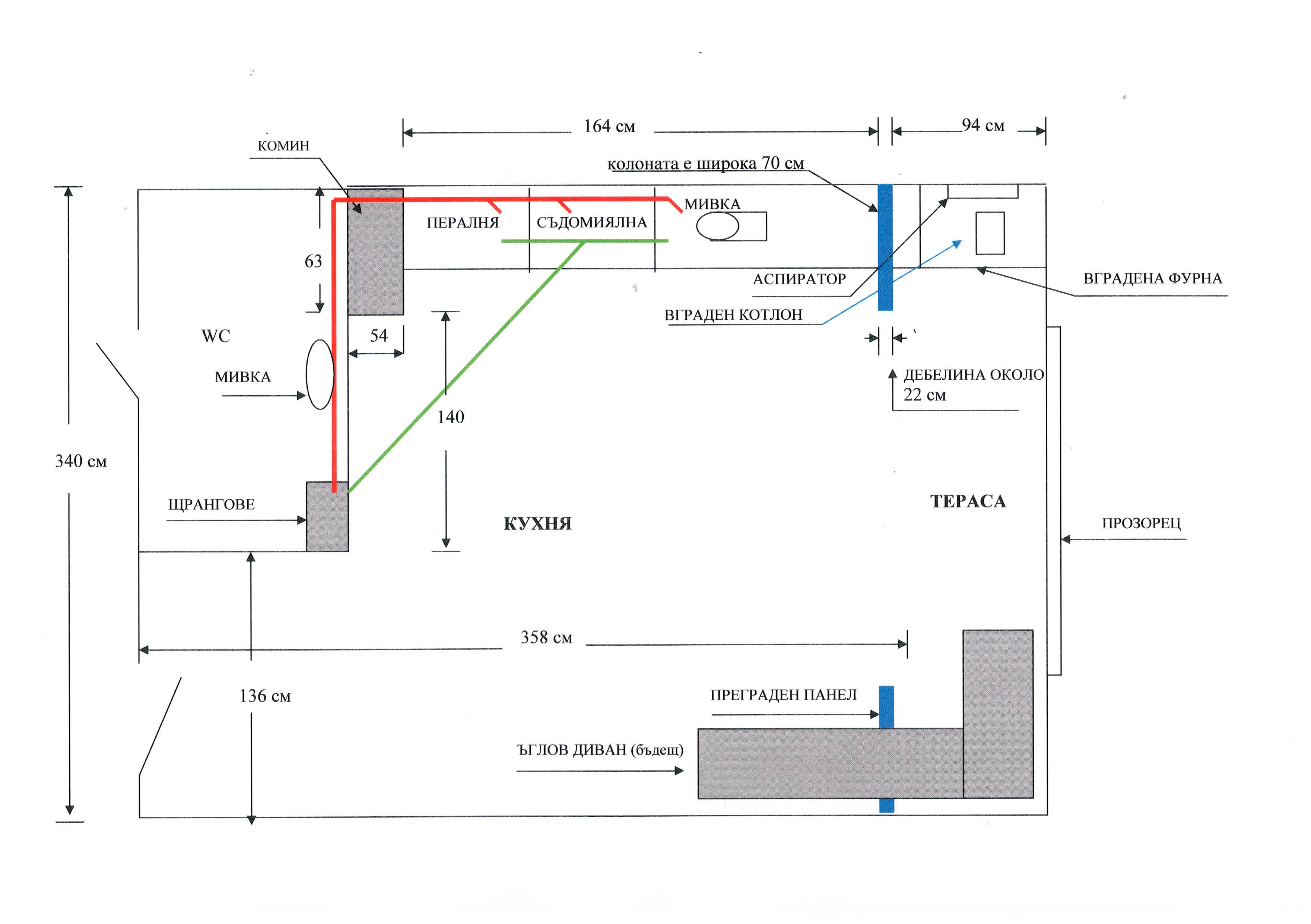
То се е видяло, че и аз ще търся помощ. Дано да съм на правилното място. Прочетох мисля не малко, но все пак не стигнах до решение, защото колкото постове във форума – толкова и различни мнения. Все пак ще съм благодарен ако някой си изкаже мнението, като по този начин ще ми помогне. Първо ви казвам че става въпрос за двустайно (две еднакви стаи) и кухня, 5 етаж в панелен – прилагам схема на апартамента.
Искам да приобщя терасата към кухнята, като за целта ще си отворя доста работа, но какво да правя, нали ги знаете жените. Пък после надявам се и на мен да ми е приятно. За целта голямото ми желание е да премахна нацяло панела между кухнята и терасата (в син цвят) – Вариант 1.
Доста от приятелите ми казват да го махна нацяло, други не.Ако оставя страничните колони а премахна само подпрозоречната, то те ще ми пречат много, и ефекта се губи. Четох и мнения да се оставят по 10 – 15 см от колоните.Срещу електроуредите искам да поставя ъглов диван който да отиде до прозореца, но по този начин трябва да съм на 20 см от стената. Губи се пространство. На стената пък където са уредите виждате колко ми е разстоянието, като не мога да премахна комина по ред причини. Аз много се съмнявам дали този фасаден панел е носещ, тъй като мисля се закрепва отстрани към трегера. За пипане на трегера дума не може да става. Интересно ми е вашето мнение за положението на фасадния панел спраямо трегера. Затова съм го дал тук с три различни варианта, в напречен разрез. Кой според вас е правилния монтаж, защото и за това има различни мнения, а от там зависи кое какво държи. Варианти за трегера
Към жените по-специално /а защ оне и към мъжете/ ми е въпроса за разположението на уредите. Дали могат да ми предложат нещо по-различно и практично. В тая връзка искам само да кажа, че за фурната и микровълновата мисля да изградя цял, висок шкаф, като фурната ще е на някаква средна височина, под нея и над микровълновата - шкафчета. Пералнята няма да е вградена.
Ако стане така, че да не мога да премахна вертикалните стени (панела) то няма да имам и възможност да изкарам аспирацията навън от терасата, и ще трябва май подредбата да е такава: Вариант 2.
А за микровълновата ще търся място, може би над пералнята.
Хората които се занимават с водопроводи и ел. инсталации искам да помоля да ми кажат кое е най-удачния начин за прокарване на тръбата за отпадна вода, Аз се сещам само за един начин – това което съм оцветил в червено. Но за целта трябва да се вкопава в стената, защото доколкото разбрах от мебелистите, отзад има само 2 см фуга, а тръбата няма да е по малко от Ф50. Плюс това ще е трудно да я прекарам между комина и стената. По пода директно (в зеления цвят) мисля, че няма да е удачно, защото няма да има наклон. За чистата студена и топла вода мисля не е проблем да е по пода. Или напротив? Ще искам помощ и за някакво малко по-разчупено осветление и в стаята и на терасата, или на самите кухненски шкафове.
Май много взех да искам, но ще черпя.
И последно, от къде евентуално мога да намеря плана на блока за да се види дали панела е носещ, или да искам разрешение за всичко това.
БЛАГОДАРЯ ВИ !!!
То се е видяло, че и аз ще търся помощ. Дано да съм на правилното място. Прочетох мисля не малко, но все пак не стигнах до решение, защото колкото постове във форума – толкова и различни мнения. Все пак ще съм благодарен ако някой си изкаже мнението, като по този начин ще ми помогне. Първо ви казвам че става въпрос за двустайно (две еднакви стаи) и кухня, 5 етаж в панелен – прилагам схема на апартамента.
Искам да приобщя терасата към кухнята, като за целта ще си отворя доста работа, но какво да правя, нали ги знаете жените. Пък после надявам се и на мен да ми е приятно. За целта голямото ми желание е да премахна нацяло панела между кухнята и терасата (в син цвят) – Вариант 1.
Доста от приятелите ми казват да го махна нацяло, други не.Ако оставя страничните колони а премахна само подпрозоречната, то те ще ми пречат много, и ефекта се губи. Четох и мнения да се оставят по 10 – 15 см от колоните.Срещу електроуредите искам да поставя ъглов диван който да отиде до прозореца, но по този начин трябва да съм на 20 см от стената. Губи се пространство. На стената пък където са уредите виждате колко ми е разстоянието, като не мога да премахна комина по ред причини. Аз много се съмнявам дали този фасаден панел е носещ, тъй като мисля се закрепва отстрани към трегера. За пипане на трегера дума не може да става. Интересно ми е вашето мнение за положението на фасадния панел спраямо трегера. Затова съм го дал тук с три различни варианта, в напречен разрез. Кой според вас е правилния монтаж, защото и за това има различни мнения, а от там зависи кое какво държи. Варианти за трегера
Към жените по-специално /а защ оне и към мъжете/ ми е въпроса за разположението на уредите. Дали могат да ми предложат нещо по-различно и практично. В тая връзка искам само да кажа, че за фурната и микровълновата мисля да изградя цял, висок шкаф, като фурната ще е на някаква средна височина, под нея и над микровълновата - шкафчета. Пералнята няма да е вградена.
Ако стане така, че да не мога да премахна вертикалните стени (панела) то няма да имам и възможност да изкарам аспирацията навън от терасата, и ще трябва май подредбата да е такава: Вариант 2.
А за микровълновата ще търся място, може би над пералнята.
Хората които се занимават с водопроводи и ел. инсталации искам да помоля да ми кажат кое е най-удачния начин за прокарване на тръбата за отпадна вода, Аз се сещам само за един начин – това което съм оцветил в червено. Но за целта трябва да се вкопава в стената, защото доколкото разбрах от мебелистите, отзад има само 2 см фуга, а тръбата няма да е по малко от Ф50. Плюс това ще е трудно да я прекарам между комина и стената. По пода директно (в зеления цвят) мисля, че няма да е удачно, защото няма да има наклон. За чистата студена и топла вода мисля не е проблем да е по пода. Или напротив? Ще искам помощ и за някакво малко по-разчупено осветление и в стаята и на терасата, или на самите кухненски шкафове.
Май много взех да искам, но ще черпя.
И последно, от къде евентуално мога да намеря плана на блока за да се види дали панела е носещ, или да искам разрешение за всичко това.
БЛАГОДАРЯ ВИ !!!
