Здравейте,
Купих си нов апартамент и си бях наумил да наема електричар, който да ми сложи дефектнотокова защита.
Каква бе изненадата ми като видях, че такава е монтирана...
Ето снимка на таблото:
el_tablo.JPG (31.22 KиБ) Видяна 3922 пъти
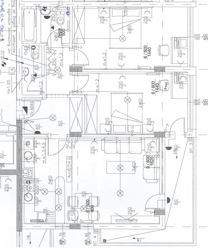
А това е схема на силнотоковата инсталация:

el_instalaciq.JPG (105.22 KиБ) Видяна 3922 пъти
Та...
1. Има 2 дефектнотокови защити : Chint NL1-63 40 A това достатъчно ли е за 7 токови кръга?
2. Chint - читава марка ли е?
3. Като подобренмие на ел инсталцията мислех да си предвидя кабели за климатиците. 2.5 м2 като сечение ОК ли е?
Благодаря за мненията и съветите.
Иван
Купих си нов апартамент и си бях наумил да наема електричар, който да ми сложи дефектнотокова защита.
Каква бе изненадата ми като видях, че такава е монтирана...
Ето снимка на таблото:
Прикачен файл:
el_tablo.JPG (31.22 KиБ) Видяна 3922 пъти
Прикачен файл:
el_instalaciq.JPG (105.22 KиБ) Видяна 3922 пъти
1. Има 2 дефектнотокови защити : Chint NL1-63 40 A това достатъчно ли е за 7 токови кръга?
2. Chint - читава марка ли е?
3. Като подобренмие на ел инсталцията мислех да си предвидя кабели за климатиците. 2.5 м2 като сечение ОК ли е?
Благодаря за мненията и съветите.
Иван

