Чакаме вашите въпроси за банята, ваната и т..н.
chapara
- майстор
36 мнения в "Под на баня от правоъгълни плочки"
boqnkov
- специалист
- Мнения: 402
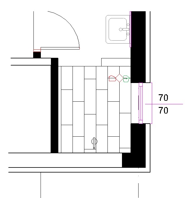
Chapara, много ми харесва как е станало. По - конкретно питам за тази фуга. Не виждам добре как си я направил. Трябва ли да се оставя фуга като останалите фуги или трябва да са максимално слепени плочките за изглежда все едно няма фуга. ... Или въобще плочката там трябва да е цяла? 
Прикачен файл
shema.jpg (38.14 KиБ) Видяна 2720 пъти
chapara
- майстор
- Мнения: 9596
Грешен ти е растера, при червеното е естествената фуга, а при зеленото трябва да е рязаното, така ще се губи ориентацията. Аз бих заложил на оставяне на разстоянието което ще имат като фуга останалите плочки конкретно в твоята ситуация.

shema.jpg (37.9 KиБ) Видяна 2713 пъти
И все пак ако аз го правех щях да изтикам сифона в самият ъгъл.
Прикачен файл:
shema.jpg (37.9 KиБ) Видяна 2713 пъти
И все пак ако аз го правех щях да изтикам сифона в самият ъгъл.
Прикачен файл
shema.jpg (37.9 KиБ) Видяна 2713 пъти
jekasus
- майстор
- Мнения: 7830
chapara написа:Грешен ти е растера, при червеното е естествената фуга, а при зеленото трябва да е рязаното, така ще се губи ориентацията.Без значение, все едно на третия ред ще се надига точно над тази чупка.
Като цяло, не е страшно и не се вижда отгоре...
Но ако обърне посоката на нареждането на "паркета" ще изглежда по-добре.
Гост
- специалист
- Мнения: 779
chapara написа:Груба грешка е допуснал този, който го е правил, щото не го е доизмислил.Гост написа:Точно при този сифон, заврян в ъгъла- фугата не трябва ли да е изместена малко? Не, че е фатално, но бие на очи...Груба гршка в мисленето
То не, че има какво да се мисли- има си принципи, които всеки уважаващ се майстор трябва да спази. Тръгва се от сифона и се прави както трябва, а не както се получи...
Иначе схемата при сифона на пусналия темата щеше да е такава.
Прикачен файл
shema.jpg (36.83 KиБ) Видяна 2684 пъти
boqnkov
- специалист
- Мнения: 402
Благодаря на включилите се с полезни мнения и снимки. В общи линии ми стана ясно как трябва да стане. За плочката в ъгъла ще кажа на майстора да я долепи до другата възможно най - плътно за се запази шарката и визията за цяла плочка.
Прикачен файл
Untitled.jpg (106.35 KиБ) Видяна 2674 пъти
Тема "Под на баня от правоъгълни плочки" | Включи се в дискусията:
Сподели форума:
Бъди информиран. Следвай "Направи сам" във Facebook:
Намери изпълнител и вдъхновения за дома. Следвай MaistorPlus във Facebook:
Имаш нужда от подходящ професионалист за дома?
- Преустройство, ремонт и реновиране
- ↳ Вашите ремонти
- ↳ Кухня
- ↳ Баня
- ↳ Дневна
- ↳ Спалня
- ↳ Детска
- ↳ Градина
- ↳ Коридор
- ↳ Тераса и балкон
- Направи сам
- ↳ Направи сам
- ↳ Ремонтирай сам
- ↳ Къде е по-евтино?
- ↳ Дърводелство
- ↳ Ел. инструменти
- ↳ Металообработване
- ↳ Конкурс "Направи сам 2012"
- Строителство
- ↳ Всичко за вилата
- ↳ Къщи
- ↳ Саниране
- ↳ Хидроизолация
- ↳ Пасивни и нискоенергийни сгради
- Сухо строителство
- ↳ Окачени тавани
- ↳ Преградни стени и предстенни обшивки
- ↳ Сухи и повдигнати подове
- ↳ Декоративни елементи - колони, трегери, сводове и др.
- ↳ Всичко за гипскартона и гипсфазера
- Въпроси и Отговори
- ↳ Полезни съвети
- ↳ Автомобили
- ↳ Партньори
- ↳ Боядисване и Декориране
- ↳ Вентилация, климатици и термопомпи
- ↳ Водоснабдяване и канализация.
- ↳ Всичко за ремонта
- ↳ Електротехника
- ↳ Отопление
- ↳ Газификация
- ↳ Електроника и Схеми
- ↳ Газобетон
- ↳ От всичко по малко
- ↳ Компютри и периферия
- ↳ Уеб дизайн, PHP, MySQL, JavaScript, HTML..
- ↳ Мобилни устройства, GSM-и
- ↳ Нека се запознаем
- ↳ Recycle Bin
- Статии
- ↳ Практични решения
- ↳ Качване на снимки
- ↳ Какви статии искате?
- ↳ Готварство, туршии и зимнина
- ↳ Отмора и шеги
- ↳ От нищо нещо
- ↳ Не е за вярване
- ↳ Литература
- ↳ Връзки към Интересни сайтове
- Магазин
- ↳ Препоръки и Мнения за он-лайн магазина
- ↳ Крадeни инструменти !!!
