• 1
  • 15
  • 16
  • 17
  • 18
  • 19
  • 34
Всичко свързано с тоците ми е слабост, опитайте се да ме затрудните.
arxd129 - специалист
kozl написа:
Ама не ми харесва да се повтарям. Писал съм кого да търсиш. Ако там ти откажат тогава ще го :?
Дааа. Пропуснал съм препоръката за това, кого да търся.

И се зачетох отново в темата
Предполагам това си имал предвид
kozl написа:
Има в София фирми де обслужват ЧЕЗ. В информационните центрове бяха написани. Въпроса е дали ще искат да се занимават с подобен случай и ако да срещу какво заплащане.
Така.... Заплащането не е проблем.

Проблем е следното:
Да приемем, че в ел.шкафа го има въпросния клеморед. Вътре в шафа го има, приемаме!!!
Който клеморед, казвате, трябва да е СЛЕД електромера.
Тогава, първо - от шкафа не излизат ЖЗ проводници.... Което е доста смущаващо (защото в моя апартамент влиза ЖЗ проводник 10 кв. милиметра - за "НУЛА").
Второ - Ако има максима, че задълженията и правомощията на ЧЕЗ са "до електромера", тогава защо да търся ЧЕЗ, ако максимата е валидна? А ако не е валидна - тогава задълженията и правомощията на ЧЕЗ до къде се разпростират? Къде е границата, след която ЧЕЗ няма да се отзоват дори и след заплащане?
Трето - ЧЕЗ предоставят ли "земно" на абонатите си? Или заземяването на абонатите им е извън асортимента на ЧЕЗ? :shock:
Благодаря.

PS.
Питам, за да знам за какво конкретно да се обърна към ЧЕЗ. :?
... То че ще ги търся ЧЕЗ е ясно.
Какво конкретно да искам от тях.
Благодаря за компетентните ви препоръки.

PPS.
Да помоля всички за още нещо: Бихте ли споделили с мен имена, адреси и/или телефони на въпросните фирми, обслужващи ЧЕЗ. На сайта им - няма инфо. Или поне не видях.
nikolov333 - майстор
arxd129..Съвета ми е да предприемеш някакви действия.. Има прекалено много идеи, които ти дадохме и разсъжденията по-темата са излишни от тука нататък. Необходимо е да се мери и огледа инсталацията до апартамента ти, така че действай в тази посока. Ако не забравиш и решиш да уважиш хората, които ти дават съвети, пиши какъв е проблема, когато го установят.. :partyman:
kozl - майстор
Не знам какъв е случаят при автора, защото той не отговаря на всички въпроси. Да провери при предприемача дали има договор за изкупуване на съоръженията. Ако има може да се счита , че ГРТ ще станат собственост на ЧЕЗ и те трябва да ги поддържат. Сменят електромери, предпазители към електромерите, часовници. Вътрешната инсталация не е техен ангажимент. И като отчитам, че не могат да се справят дори с техните ангажименти най-вероятно ще откажат намеса във вътр.инсталация дори срещу заплащане.
Препоръчах фирмите, с които ЧЕЗ работи, защото те имат достъп в ГРТ. Ако се довериш на други специалисти, вероятно ще трябва да уведомиш и ЧЕЗ за присъствие.
arxd129 - специалист
Получих следните файлове:
Прикачен файл:
1.jpg
Прикачен файл:
2.jpg
Прикачен файл:
3.jpg
Прикачен файл:
4.jpg
Прикачен файл:
5.jpg
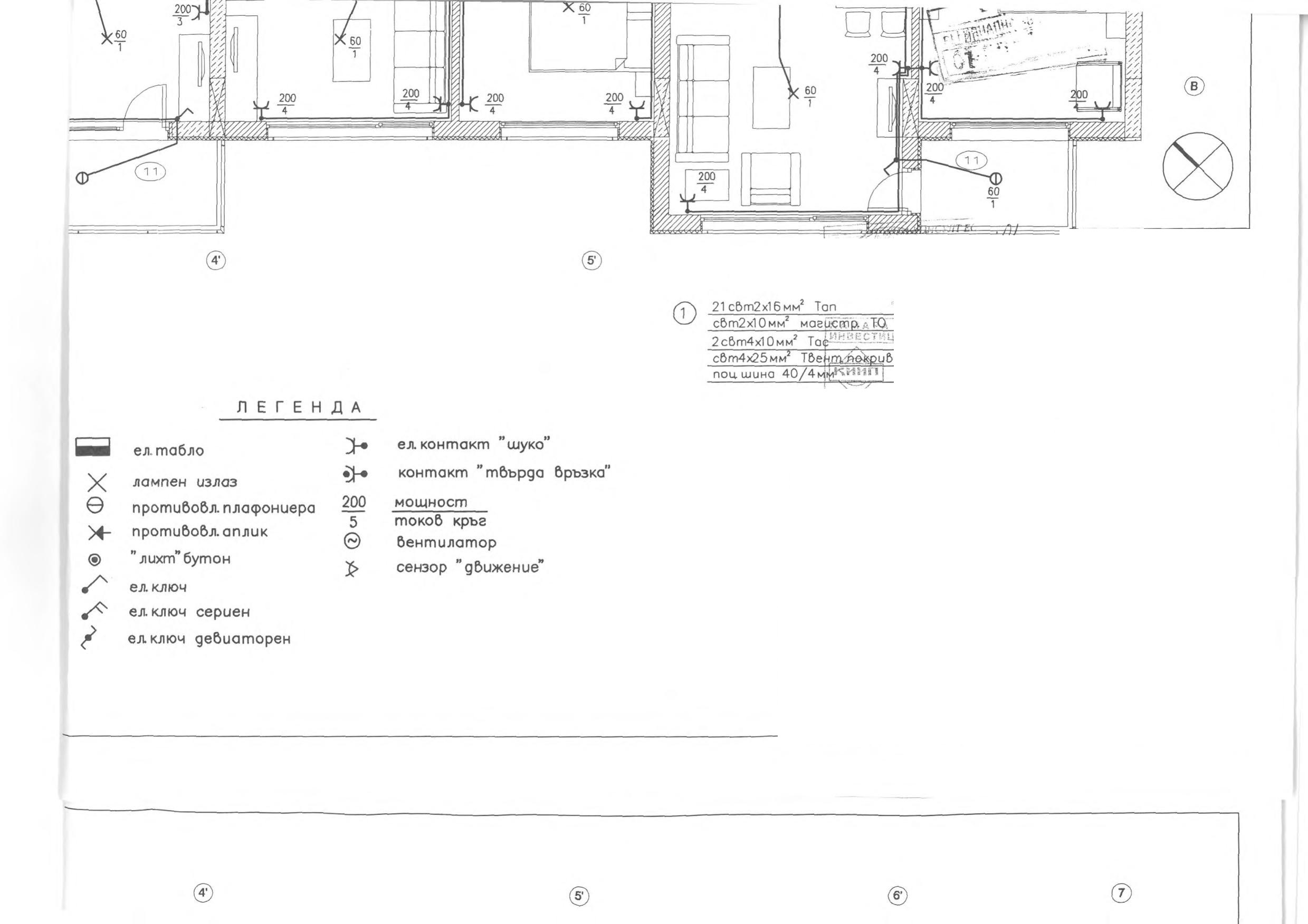
На мен нищо не ми говорят.
Моля, бихте ли ми обяснили с какво може да са ми полезни тези файлове. Вероятно, тези файлове означават много. Какво показват?
Коментирахме за ел.шкафа с електромерите в предишни постинги.... Тези файлове може ли да ми помогнат да видя къде е PE-проводника в шкафа с електромерите
Бихте ли ми помогнали. Благодаря.
arxd129 - специалист
Ето още един файл:
Прикачен файл:
6.jpg
Нямам засега други файлове.

Къде в електромерния шкаф, който шкаф е на партерния етаж на стълбищната клетка, е заземен PE-кабела? Благодаря,
hidrazin - майстор
Тоя последния файл вече си го качил...
Според тези неща дето си сложил виждам разминаване. Не е съществено.
Според този последния файл на главното табло, до апартаментното би трябвало да идва кабел СВТ3х1о квадрата.
Обаче според обяснителната записка би трябвало да си захранен с проводник ПВ (единични проводници) положени в гофре.
Но така или иначе до твоето табло би трябвало да идват три проводника - фаза, нула и защитен.
И престани да търсиш проблема в главното табло след като не ясно какво точно става в твоето табло.
Аз тая тема не я следа от 5-6-7 страници и май наистина няма смисъл.
Още на 7-ма страница попитах някои неща (и не само яз де) но няма кой да отговори.
Какво е свързано от долна страна на ДТЗ-то ??????
На смотаните снимки се вижда само шината на фазата.
От дясната дупка, от долу на ДТЗ-то свързано ли е нещо???
Ми вземи и направи някоя снимка бе. Семнайсе страници за едно тъпо табло!!!
С ченгел ли трябва да ти вадим информацията???
:partyman:
P.S. Аааа... Сега по качените файлове ми стана ясно колко ти е партидата - много икономична е. :-D
Веднага забравяш за проточен бойлер.
Може да си позволиш само нещо от сорта на онези нагреватели от сорта на Делимано ама ако си правиш сметката какво друго си включил...
kozl - майстор
В схемата на ГРТ, която наричат "линейна схема" авт.предпазители са по 40А. Обаче на тези чертежи няма печат от ЧЕЗ. Не разполагам със съгласуван такъв чертеж, на който са нанесени корекции и предпазителите с намалени стойностти. Но в ГРТ трябва да имате достъп до предпазителите и може да се провери дали отговарят на чертежа. Няма да се учудя ако са заменени с 63А. Масова практика е в Циганария да се ъпгрейтват предпазителите без разрешение на ЕРП.
Е до тука, повтарям Хидразин, че на схемата е предвиден защитен проводник. Освен тази схема на ГРТ може и да има, а може и без нея, монтажна схема, която служи за изработка на таблото. Но явно в прикачените снимки нема такава.
И така по чертеж кабела до ап.табло е СВТ 3х10 мм2, а в твоята снимка е многожелен единичин проводник. По-лесно се изтеглят многожилните проводници :? Вероятно е станала замяна. До тук притеснително няма. Требе да се "копа още на длибоко".
Не е ясно какво излиза от ГРТ. Това де си видял през процепите вероятно са кабелите свързващи електромерите.
Последна промяна от kozl на пет дек 22, 2017 12:05 pm, променено общо 1 път.
nikolov333 - майстор
arxd129 написа:
Ето още един файл:
..Къде в електромерния шкаф, който шкаф е на партерния етаж на стълбищната клетка, е заземен PE-кабела? Благодаря,
Според проекта, вероятно целия електромерен шкаф е заземен със собствено повторно заземяване със съпротивление към земя <10 Ома.
Може да видиш заземителната шина някаде отвън на шкафа, ако е закрепена с болтове. Вероятно е обединена с PEN проводника на входящото захранване на обща шина, а до апартамента ти тръгва 3 проводна инсталация с отделен PE и N..
С две думи търси проблема в главното електромерно табло или по трасето до тебе.. :idea:
Прикачен файл:
6.jpg
arxd129 - специалист
hidrazin написа:
Тоя последния файл вече си го качил...
Не е така! Файловете са различни.
hidrazin написа:

... Семнайсе страници за едно тъпо табло!!!
...
Проблемът не е в самото табло като табло. А че няма действащ PE.

A във файловете с чертежите на стълбищната клетка няма ли нещо, което да ми помогне? Благодаря.
  • 1
  • 15
  • 16
  • 17
  • 18
  • 19
  • 34

Тема "Грешка /проблем/ в една диференциалнотокова защита" | Включи се в дискусията:


Сподели форума:

Бъди информиран. Следвай "Направи сам" във Facebook:

Намери изпълнител и вдъхновения за дома. Следвай MaistorPlus във Facebook: