Добавих 4 х 2.6 кв.м колектора към съществуващата система с буфер без налягане със серпентина. Те са на дрейнбек, като входа е през стратифицираща тръба.
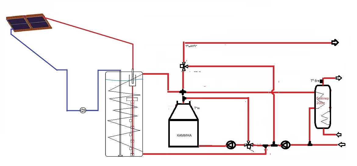
Ето пълната схема:

New_Solar.jpg (78.98 KиБ) Видяна 2188 пъти
Ето и "фотоотчет" как са направени нещата:
Стратификационната тръба - изплзвах Ф110"ППР за канализации" - работна температура - 80-90 градуса. Не е ПВЦ.
От приемащия съд горе тръгва тръба Ф32 надолу до дъното му. Там е разпробита с много отвори за да се издига нагоре входящата вода.
Тръбата, която влиза в приемащия съд, влиза под нивото на водата , за да не бълбука много, но е разпробита в горния край за да засмуква въздух за изпразването
Клапите, от тънка алуминиева ламарина за плаки:
Ето пълната схема:
Прикачен файл:
New_Solar.jpg (78.98 KиБ) Видяна 2188 пъти
Ето и "фотоотчет" как са направени нещата:
Стратификационната тръба - изплзвах Ф110"ППР за канализации" - работна температура - 80-90 градуса. Не е ПВЦ.
От приемащия съд горе тръгва тръба Ф32 надолу до дъното му. Там е разпробита с много отвори за да се издига нагоре входящата вода.
Тръбата, която влиза в приемащия съд, влиза под нивото на водата , за да не бълбука много, но е разпробита в горния край за да засмуква въздух за изпразването
Клапите, от тънка алуминиева ламарина за плаки:
