пет май 02, 2025 6:02 amenviro написа:Аз бих направил равна бетонова част, и върху нея метални колове и пана, не бих се вкарал в цирка с бетонови колони само защото имам хартисала арматура.
не са само бигли, но и прътове ако не се лъжа ф10, ф12 както и по дебели, което мога ще го ползвам, което ми трябва допълнително ще закупя, но ще спестя някакви средства предполагам от арматурата евентуално или поне се надявам.
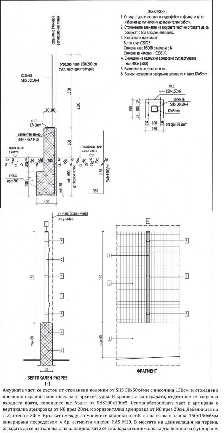
Надвечер като се прибера ще пусна една примерна картинка за армировка на лека ограда.
